龙华@【联发臻著雅居】(售楼中心)南北通透3房2卫!双地铁上盖!得房率接近100%!联发臻著雅居欢迎您!(内附户型图)
扫描到手机,新闻随时看
扫一扫,用手机看文章
更加方便分享给朋友
【开发商】: 联发集团有限公司
【物业类型】: 商品住宅
【产品面积】:约81/91㎡3房2卫
【占地面积】: 约8973.71㎡
【建筑面积】:约64166.2㎡
【可售套数】:约354户
【产权年限】: 70年
【交付时间】:2026年3月
【车位数】:480个
【总层高】:31F/32F
【梯户比】:2梯6户
【容积率】:5.0
【绿化率】:40%
【项目地址】:深圳龙华红山民塘路与上塘路交汇处
4/6号线双地铁环绕,1站到深圳北
项目位于龙华“第五大道"民塘路,直连深圳最大的铁路权纽--深圳北站,串联深圳北CBD,连通龙胜-红山人口密度最大的中央生活区。新区大道、福龙路、布龙路三条主干道快速通达深圳各区
双地铁线环绕,近4号线、6号线红山站,1站到深圳北站,通过高铁1站直达香港西九龙
龙华区实验学校在侧,成长就在眼前
项目教育资源丰富,距离龙华前三的龙华区实验学校(70班九年一贯制)仅600米,周边2公里范围内民顺小学、民治中学、未来小学、红山中学等优质学府环绕,成长就在眼前。
项目除大量的社区底商支持日常生活购物外,就近还有天虹、星河COCO Garden等中型商业体,可以满足更全面的日常生活购物需求;
周边还有6979商业中心、Costco开市客等大型商圈,支持多元化购物、聚餐、文娱等需求。

人文配套四馆一体:项目周边汇聚国际级人文配套,深圳市美术馆新馆(预计今年投入使用)、深圳图书馆北馆(预计今年投入使用)以及已投入使用的演艺中心、龙华城市客厅和简上体育综合体等。

81㎡的3房2厅2卫,设计的是竖厅南北通透格局,客厅3.4米开间,3个卧室分别是3米/2.6米/2.2米的宽度,L型厨房,得房率:94.35%(包含赠送),阳台西北或东北朝向。
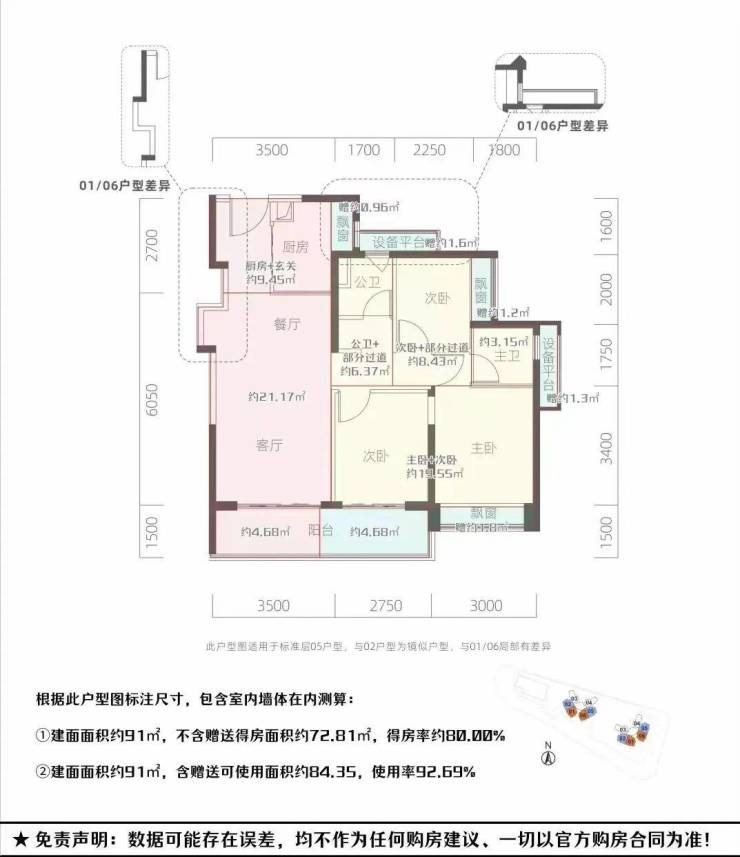
91㎡的3房2厅2卫,设计的是经典竖厅格局,客厅3.5米开间,三开间朝南,3个卧室分别是3米/2.75米/2.25米的宽度,U型厨房,公卫三段式分离设计,得房率:92.69%(包含赠送),阳台西北或东北朝向。
免责声明:
1、文章部分文字、图片、视频来源于网络。
2、我们所转载的文章、图片、音频视频文件等资料版权归版权所有人所有,因非原创文章及图片等内容无法和版权者联系
3.本网页如无意中侵犯了媒体或个人的知识产权,请留言或来电告知我们删除。
声明:本文由入驻焦点开放平台的作者撰写,除焦点官方账号外,观点仅代表作者本人,不代表焦点立场。
