名居·山河里(售楼处)首页网站-名居·山河里销售中心(营销中心)-名居·山河里楼盘欢迎您-小区环境-户型-价格-地址-楼盘详情-周边配套
扫描到手机,新闻随时看
扫一扫,用手机看文章
更加方便分享给朋友
深圳【名居·山河里】
开发商售楼处电话咨询/预约热线:400-088-3336【售楼中心】24小时热线
深圳【名居·山河里】售楼处电话:400-088-3336【营销中心】中介勿扰
深圳名居·山河里楼盘详情介绍,包含售楼处电话、地址、户型图、小区图片、区位优势、交通、周边商业配套等楼盘详细资料;更详细楼盘资料和最新折扣价格,请拨打售楼处电话,销售会为您详细介绍楼盘。
项 目 简 介
【项目名称】名居·山河里;
【开发商】深圳市银科投资有限公司;
【物业管理】中海物业;
【占地面积】约6.4万㎡;
【建筑面积】约48万㎡(具体以实测为准);
【推售产品】约75-141㎡2-4房住宅;
【产权年限】70年;
【房产性质】住宅;
【交楼标准】毛坯(01地块);
【总户数】2200户(一期760户,二期1440户);
【停车位】1936(一期645,二期1291);
【容积率】5.83(01地块);
【绿化率】40%;
【梯户比】三梯五户;
【项目地址】深圳·龙岗·永湖地铁站A口南侧约200米;
【交楼时间】预计2024年下半年;
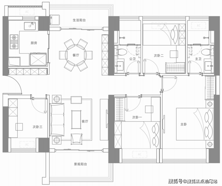
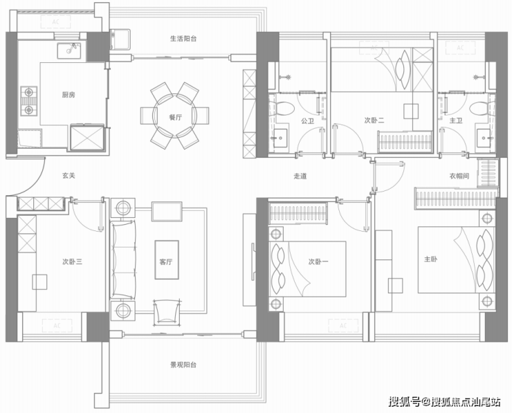
户 型 剖 析
本次推出2200户住宅房源,75㎡两室两厅一卫,96㎡三室两厅两卫,95-98㎡三室两厅两卫,99-102㎡三室两厅两卫,120㎡四室两厅两卫,141㎡四室两厅两卫。

深圳【名居·山河里】售楼处电话:400-088-3336【营销中心】中介勿扰

深圳【名居·山河里】售楼处电话:400-088-3336【营销中心】中介勿扰

深圳【名居·山河里】售楼处电话:400-088-3336【营销中心】中介勿扰

深圳【名居·山河里】售楼处电话:400-088-3336【营销中心】中介勿扰

深圳【名居·山河里】售楼处电话:400-088-3336【营销中心】中介勿扰

深圳【名居·山河里】售楼处电话:400-088-3336【营销中心】中介勿扰
项 目 配 套
交通配套:
l “三地铁”自由出行
3号线:约200m即永湖地铁口,两站到大运,8站到罗湖
14号线:两站达大运,7站抵达布吉,10站即达岗厦北
16号线:一站达大运中心,速联园山街道,抵达阿波罗未来产业园
l “三横五纵”多维路网
三横:水官高速、南坪快速、沈海高速
五纵:龙岗大道、丹平快速、盐排高速、惠盐路(部分已建成)、东部过境高速(在建中)

深圳【名居·山河里】售楼处电话:400-088-3336【营销中心】中介勿扰
商业配套:
生活圈内尽享丰盛配套,深圳找房选杨帆,新世界188项目商业、约4.4万㎡星河盛境商业、约3.6万㎡卓弘星辰商业、约7.9万㎡星河COCO Park商业等繁华商圈簇拥。本项目自带约3万㎡配套商业,醇熟生活即刻兑现。
深圳【名居·山河里】售楼处电话:400-088-3336【营销中心】中介勿扰
教育配套:
>>紧邻54班九年一贯制学校——香港中文大学(深圳)附属时进学校(规划中),孩子教育邻距离,成长就在眼前。
>>楼下优质幼儿园,目送孩子上学——自带约4800㎡18班幼儿园,深圳找房选杨帆,一出家门即入校门,孩子上学更安心。
深圳【名居·山河里】售楼处电话:400-088-3336【营销中心】中介勿扰
亮 点 总 结
『名居地产』 品质人居缔造者
二十一年砥砺奋进,名居地产深耕鹏城,致力成为深圳本土品质住宅的“示范者”,用心精筑了绿海名都、绿海名居、绿海湾花园等高端住宅项目;2017年顺势东进龙岗中心城,深圳找房选杨帆,名居广场综合体项目成为区域新封面。名居地产秉承“名居缔造·缔造名居”的初心使命,“名居山河里”项目在大运片区破图动工,一座总建面约48万㎡的山河大城即将精彩绽放。
『东进桥头堡』 执掌大运中心门户
名居·山河里地处深圳东部中心重点区域横岗,占位深圳东进战略桥头堡,是连接龙岗东西部的中间点,被誉为龙岗的“腰杆子”,执掌大运新城中心门户。横岗将打造“科技智造城,创意生活谷”,优势产业与大运新城协同发展,深圳找房选杨帆,周边19个旧改项目,体量超300万㎡,未来生活全面升级。
深圳【名居·山河里】售楼处电话:400-088-3336【营销中心】中介勿扰
『千亿科创』 前瞻未来广阔价值
科创产业巨擘阿波罗未来产业园,实力媲美华为科技城,年产值将达约2000亿元,吸引约3000家创新型企业入驻,目前光启、邦彦绿谷工厂、无人直升机研制等产业项目已抢滩登陆。约20万高精尖人才汇聚,前景广阔可期。

『自然天赋』 水岸臻境触目可及
名居·山河里紧邻梧桐山河碧道,建设长度约2.4公里,建面约15.66万㎡,环山亲水,串联街心公园与滨河绿廊,打造慢行系统,深圳找房选杨帆,匠心创著专属绿海水岸IP,成就城市奢适自然主场。

深圳【名居·山河里】售楼处电话:400-088-3336【营销中心】中介勿扰
『多元乐享』 定制全龄全时园林
>>活力康养——活力健身主场,畅享阳光泳池、篮球场、多功能场地、慢行系统
>>睦邻社区——阳光草坪、架空层会所,邻里洽谈、户外晨练、老年颐养,分享邻里欢乐
>>童真乐园——儿童乐园、四点半学堂,深圳找房选杨帆,以梦幻开启孩子们探索世界的第一步
『水岸生活』 建面约75-141㎡ 精质舒居
总建面约48万㎡山河大城崛起,匠筑城市封面级立面,毫米级精工雕琢空间。室内设计以人为本,s型冰箱位、LDK+G一体化设计更显奢阔,户型方正,户户朝南,大面积采光,带IMAX宽景阳台,俯瞰山河,诠释生活的至臻格调。
深圳【名居·山河里】售楼处电话:400-088-3336【营销中心】中介勿扰
『尊崇礼遇』 中海物业倾心服务
中海物业,享誉全国的知名物业品牌。铂金管家360°高端定制服务,奉行人性化管理、精细化服务、个性化定制三大服务理念,星级酒店管理服务模式,并采用大数据管理平台,提供全天候、全方位服务
深圳【名居·山河里】
开发商售楼处电话咨询/预约热线:400-088-3336【售楼中心】24小时热线
深圳【名居·山河里】售楼处电话:400-088-3336【营销中心】中介勿扰
深圳名居·山河里楼盘详情介绍,包含售楼处电话、地址、户型图、小区图片、区位优势、交通、周边商业配套等楼盘详细资料;更详细楼盘资料和最新折扣价格,请拨打售楼处电话,销售会为您详细介绍楼盘。
免责声明:
以上所发布的关于楼盘相关图文信息仅供您买房前参考,以上所有关于本楼盘的图文资料及说明请以最终以项目批文及双方在楼盘营销中心现场签署的买卖最终合同为准;本图文内容如无意中侵犯到某方权益,请联系我们将会及时处理!
声明:本文由入驻焦点开放平台的作者撰写,除焦点官方账号外,观点仅代表作者本人,不代表焦点立场。
