中粮悦章凤凰里售楼处电话|中粮悦章凤凰里欢迎您|中粮悦章凤凰里配套_户型详情
扫描到手机,新闻随时看
扫一扫,用手机看文章
更加方便分享给朋友
深圳「中粮悦章凤凰里」
中粮悦章凤凰里售楼处电话:400-088-3336【中介勿扰】
欢迎来电咨询,一对一专业服务
物业中心暂不接受临时到访客户,请提前预约!
宝安沙井片区「中粮悦章凤凰里」即 中粮凤凰里二期,又传来新消息了,上次是效果图曝光,这次是 户型图曝光了!目前项目正在建设中,临时展厅已开放,即将开放样板间,预计 7月中下旬入市。
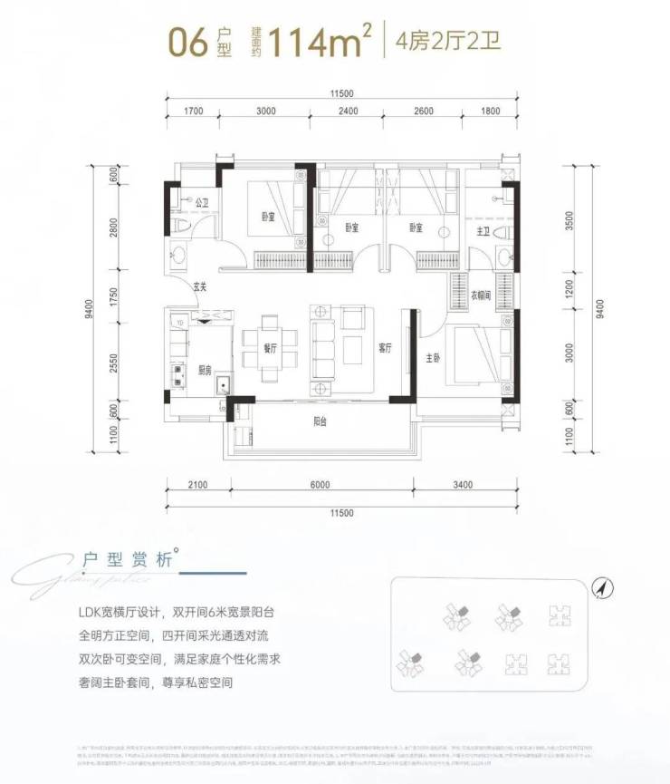
悦章凤凰里项目本次将推出 84-98-114-128㎡3-5房,共有4种户型。
区位展望
悦章凤凰里位于深圳西部—— 宝安区,据上个月深圳规自局公示了《宝安区国土空间分区规划(2021-2035年)》草案,规划宝安作为 西部综合性服务中心,未来将推动搭建 “两心三特、四轴两带” 的空间格局,大力发展 智能制造、国际会展业、临空经济 和 海洋产业。并计划在2035年建成 现代化国际化创新型城区,2050年全面建设成为 世界一流滨海城区,各项发展指标达到 国际一流水平。
区域内汇聚 环立新湖科创总部区、大族激光智能制造产业基地、平安高科技城、深港先进制造业合作区 四大千亿产业集群,未来将虹吸全市高智人才。
项目概况
悦章凤凰里项目位于宝安大洋路与塘新路交汇处西侧,用地类型为 教育用地+公共绿地+R2二类居住用地。距离 地铁11号线 “桥头站” 约800米,“塘尾站” 约1.2公里。
总体来说,项目附近 有公园、地铁,位置还是很不错的。
悦章凤凰里项目由 “中粮集团” 开发,一路之隔为一期 中粮凤凰里,全南向7栋围合布局,包括 住宅、特色社区商业 及 12班幼儿园 配套,容积率为 2.69,主力产品为 78-144㎡ 3-5房。
一期于2015年底首推(目前已售罄),现二手房指导价为 4.77万/㎡。
悦章凤凰里项目占地约 3.3万㎡,总建面约 21.2万㎡,共规划有 7栋住宅,4栋商品房、3栋保障房,33-34层。总体体量属中等,不算太小。
项目总户数 1426户,其中 可售商品房758套、保障房668套,车位 1564个,容积率 4.98,还算偏低,居家舒适。此外,项目 自带一所12班幼儿园 和 一所36班九年制学校,教育资源还算不错。
自然轻奢的品质感归家入口、深圳第一座 “花园” 主题泳池、全季节会客廊架、自然友好型儿童活动天地、共享休闲运动场地、四大主题架空层、独立的宠物花园等节点空间,为业主营造 “下楼即度假” 的全新生活体验,结合酒店品质的景观感受,让业主在家即可实现 “酒店理想”。
周边配套
【交通】: 悦章凤凰里邻近 地铁11号线 “桥头站”,3站 “国际机场”、6站 “前海湾”、8站 “后海”、11站 “福田中心区”,工作与生活优雅转换。接驳 宝安大道、广深公路 等城市主动脉,可自驾前往深圳各区,交通非常便利。
【教育】: 悦章凤凰里项目 配建有一所12班幼儿园 和 一所36班九年一贯制学校,家门口的馥郁书香。周边有 塘尾万里学校、桥头学校、福桥小学 等优质学府环伺,助力成才之路。(注:学区以教育局当年公布为准)
【商业】: 悦章凤凰里项目 自带1.2万㎡商业,吃喝玩乐全业态,满足生活日常所需。北侧有30万㎡ 鸿荣源奥特莱斯商业、18万㎡ 万丰海岸城购物中心,万千繁华近在咫尺。
【文娱】: 悦章凤凰里项目周边有 “深圳西部最美的公园” ——立新湖公园,水域面积1.2平方公里。3公里范围内有 凤凰山森林公园、万丰湖湿地公园 等绿境环绕,开启生活诗篇。
深圳「中粮悦章凤凰里」
中粮悦章凤凰里售楼处电话:400-088-3336【中介勿扰】
欢迎来电咨询,一对一专业服务
物业中心暂不接受临时到访客户,请提前预约!
免责声明:部分图片来源网络,如有侵权请联系后台,我们会第一时间删除。本文资料仅为要约邀请,部分图片为示意性图片,一切图文资料、规划设计仅供参考识别或分享交流之用,不构成合同内容,具体内容均以政府最终批准文件及双方签订的买卖合同为准。
声明:本文由入驻焦点开放平台的作者撰写,除焦点官方账号外,观点仅代表作者本人,不代表焦点立场。
