满京华·金硕悦府(营销中心)首页网站-深圳满京华·金硕悦府-欢迎您-楼盘详情@售楼中心地址
扫描到手机,新闻随时看
扫一扫,用手机看文章
更加方便分享给朋友
深圳【满京华·金硕悦府】
开发商售楼处电话咨询/预约热线:400-088-3336【售楼中心】24小时热线
深圳【满京华·金硕悦府】售楼处电话:400-088-3336【营销中心】中介勿扰
深圳满京华·金硕悦府楼盘详情介绍,包含售楼处电话、地址、户型图、小区图片、区位优势、交通、周边商业配套等楼盘详细资料;更详细楼盘资料和最新折扣价格,请拨打售楼处电话,销售会为您详细介绍楼盘。

深圳【满京华·金硕悦府】售楼处电话:400-088-3336【营销中心】中介勿扰
满京华金硕,前身为光明狮山利益统筹项目,由满京华集团全盘操刀,涵盖有10块用地,总占地面积约10.9万㎡,总建筑面积约32.38万㎡,其中住宅用地有7块,返还用地1块,公共绿化用地2块,住宅用地有:满京华金硕和府,满京华金硕瑞府,满京华金硕臻府,满京华金硕华府,满京华金硕悦府,满京华金硕嘉府。

深圳【满京华·金硕悦府】售楼处电话:400-088-3336【营销中心】中介勿扰
本次推售的是满京华金硕悦府,共由5栋32-48层高的住宅组成,其中1栋1/2单元住宅48F,2栋1单元住宅32F,2栋2单元住宅47F,3栋住宅48F,4栋是1所幼儿园,还配建有社区菜市场,总规划1186户,其中2栋1单元2梯6户,1栋1单元楼王3梯5户,其它栋数全部3梯6户设计。

深圳【满京华·金硕悦府】售楼处电话:400-088-3336【营销中心】中介勿扰
产品户型图

深圳【满京华·金硕悦府】售楼处电话:400-088-3336【营销中心】中介勿扰

深圳【满京华·金硕悦府】售楼处电话:400-088-3336【营销中心】中介勿扰

深圳【满京华·金硕悦府】售楼处电话:400-088-3336【营销中心】中介勿扰
83㎡的3房2厅2卫,设计的是经典竖厅格局,客厅3.4米开间,三开间朝南,3房卧室分别做到了主卧13.33㎡/次卧8.75㎡/次卧8.54㎡(包含墙体飘窗),得房率79.6%(不加赠送),西南或东南朝向。赠送面积14.57㎡,加上赠送得房率97.15%。

深圳【满京华·金硕悦府】售楼处电话:400-088-3336【营销中心】中介勿扰
102㎡的4房2厅2卫,设计的是经典竖厅格局,客厅3.6米开间,四开间朝南,4房卧室分别做到了主卧15.32㎡/次卧9.5㎡/次卧7.88㎡/次卧6.9㎡(包含墙体飘窗),客厅连接次卧出5.9米长的观景大阳台,得房率79.6%(不加赠送),西南或东南朝向。赠送面积18.57㎡,加上赠送得房率97.8%。

深圳【满京华·金硕悦府】售楼处电话:400-088-3336【营销中心】中介勿扰
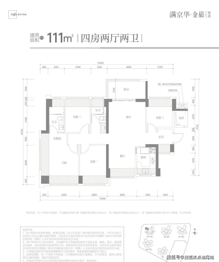
111㎡的4房2厅2卫,设计的是竖厅南北通透格局,独门独户,客厅4米开间,四开间朝南,4房卧室分别做到了主卧18.67㎡/次卧11.2㎡/次卧9.45㎡/次卧8.62㎡(包含墙体飘窗),得房率79.6%(不加赠送),阳台主朝东北向看科技馆。赠送面积23.94㎡,加上赠送得房率101.16%。

深圳【满京华·金硕悦府】售楼处电话:400-088-3336【营销中心】中介勿扰
151㎡的5房2厅2卫,设计的是横厅南北通透格局,独门独户,客厅4.5米开间,四开间朝南,4房卧室分别做到了主卧27.44㎡/次卧11.97㎡/次卧11.24㎡/次卧11㎡/次卧8.36㎡(包含墙体飘窗),得房率79.6%(不加赠送),客厅连接次卧出6.7米长的观景大阳台,阳台主朝西北向看科学公园。赠送面积32.09㎡,加上赠送得房率100.84%。
深圳【满京华·金硕悦府】售楼处电话:400-088-3336【营销中心】中介勿扰

深圳【满京华·金硕悦府】售楼处电话:400-088-3336【营销中心】中介勿扰
项目基础信息
【项目名称】满京华金硕悦府
【占地面积】约2.61万/㎡
【建筑面积】约21.8万/㎡
【推售产品】建面约83-150㎡3-5房
【交付标准】精装
【交房时间】2027年10月31日
【产权年限】70年
【房产性质】住宅
【总户数】1186户
【楼层高】32-48层
【车位比】1335个
【容积率】5.95
【绿化率】30.01%
【梯户比】2梯6户/3梯5户/3梯6户
【管理费】4.3元/㎡
【开发商】深圳市满京华置业投资有限公司
【物业公司】深圳市满京华物业管理有限公司
【项目地址】位于光明区光明中心区光辉大道与狮山三街交汇处
深圳【满京华·金硕悦府】售楼处电话:400-088-3336【营销中心】中介勿扰
远见中心价值级核
占据湾区战略节点 引领世界科创
地处粤港澳大湾区重要战略节点,对标国际科创标杆,打造世界一流科学城,形成深圳北部新中心。

深圳【满京华·金硕悦府】售楼处电话:400-088-3336【营销中心】中介勿扰
8大战略性新兴产业集群,5大未来产业集群,打造科创先行地、创新人才汇聚地。
深圳【满京华·金硕悦府】售楼处电话:400-088-3336【营销中心】中介勿扰
演绎繁华生活级核
光明中心区作为光明城市“会客厅”,将打造成光明科学城国际化高品质优质公共服务配套区,深圳北部中心的“城市心脏”。

深圳【满京华·金硕悦府】售楼处电话:400-088-3336【营销中心】中介勿扰
交通配套
项目距离地铁6号线“光明站”仅400米,步行5分钟即达,2站到凤凰城站,可快速换乘13号地铁线,4站到光明城站,这里可以换乘光明城高铁站,6站到宝安上屋站,11站到南山西丽留仙洞,14站南山高新园,18站到后海。

深圳【满京华·金硕悦府】售楼处电话:400-088-3336【营销中心】中介勿扰
周边还有龙大高速、南光高速、深圳外环高速等交通要道,快速通达各大区域。
教育配套
项目自带1所幼儿园,满京华金硕悦府属于楼村社区,根据2024年光明区教育局最新的学区划分:
小学学区划分在华南师范大学附属光明星河小学(距离约550米),深圳小学光明曙光学校(距离约500米),修远小学(距离约700米),南科大荔园学校小学部(家楼下),中科实验教育集团光明楼村第二学校,深圳市教育科学研究院实验学校(光明),中山大学深圳附属学校小学部,楼村小学。
初中学区划分在华夏中学,深圳实验光明学校,光明高级中学,科韵学校,中山大学深圳附属学校初中部,中科实验教育集团光明楼村第二学校初中部,南科大荔园学校初中部,深圳市教育科学研究院实验学校(光明)初中部,公明中学。
另外深圳外国语学校楼村第四学校,距离约800米,已经对外官宣,深圳四大名校之一,计划是在2025年首次招生,该校也是在学区范围内,是1所九年制公办学校,规划45个班,有2100个学位。

深圳【满京华·金硕悦府】售楼处电话:400-088-3336【营销中心】中介勿扰
商业配套
项目自带约3.19万平方米创意商业街区,满足日常购物需求;1公里范围内有星河COCO City(即将开业),规划招商引进180个品牌进驻,内有星巴克、盒马鲜生、寰映IMAX影城,海底捞,九毛九,苏宁易购等知名品牌,约2.8公里内有蓝鲸世界(13万㎡)、万达广场(4.5万㎡)等大型商圈。
深圳【满京华·金硕悦府】售楼处电话:400-088-3336【营销中心】中介勿扰
生态配套
科学公园占地面积约208万平方米,大小相当于两个深圳湾公园。北接公常路,南临光辉大道,西至楼环路,东临光明大道、光侨路。
生态环境得天独厚,囊括马鞍山、柴山及两山之间的山坳地,坐拥楼村水、新陂头河两条水系,打造有科学芯、日之湖、环湖岸线、林霄栈道等标志性景观。
公园拟建为集生态、科普、健康、娱乐、运动、休闲、游览等功能为一体的大型综合性城市公园,体现“科学+公园”主题。

深圳【满京华·金硕悦府】售楼处电话:400-088-3336【营销中心】中介勿扰

深圳【满京华·金硕悦府】
开发商售楼处电话咨询/预约热线:400-088-3336【售楼中心】24小时热线
深圳【满京华·金硕悦府】售楼处电话:400-088-3336【营销中心】中介勿扰
深圳满京华·金硕悦府楼盘详情介绍,包含售楼处电话、地址、户型图、小区图片、区位优势、交通、周边商业配套等楼盘详细资料;更详细楼盘资料和最新折扣价格,请拨打售楼处电话,销售会为您详细介绍楼盘。
免责声明:
以上所发布的关于楼盘相关图文信息仅供您买房前参考,以上所有关于本楼盘的图文资料及说明请以最终以项目批文及双方在楼盘营销中心现场签署的买卖最终合同为准;本图文内容如无意中侵犯到某方权益,请联系我们将会及时处理!
声明:本文由入驻焦点开放平台的作者撰写,除焦点官方账号外,观点仅代表作者本人,不代表焦点立场。
