深圳绿景白石洲欢迎您_绿景白石洲售楼处电话_绿景白石洲楼盘详情/地址/价格
扫描到手机,新闻随时看
扫一扫,用手机看文章
更加方便分享给朋友
深圳【绿景白石洲】
开发商售楼处电话咨询/预约热线:400-088-3336【售楼中心】24小时热线
深圳【绿景白石洲】售楼处电话:400-088-3336【营销中心】中介勿扰
深圳绿景白石洲楼盘详情介绍,包含售楼处电话、地址、户型图、小区图片、区位优势、交通、周边商业配套等楼盘详细资料;更详细楼盘资料和最新折扣价格,请拨打售楼处电话,销售会为您详细介绍楼盘。

深圳【绿景白石洲】售楼处电话:400-088-3336【营销中心】中介勿扰
项目基本信息
总栋数:3栋住宅(1栋3、4、5单元)+2栋公寓
楼层层高:住宅三栋都为74F
梯户比:1-3/1-4栋低区4T7,高区3T6;1-5栋高低都是3T6(PS:48F以上为高区)
车位比:1983个(1383个优先满足住宅使用)
交房时间:2025年底
交房标准:精装交付(赠送,不额外收费)
物业公司:绿景物业
小区配置:9000㎡园林,5200㎡泛会所
车位比:1:0.73 (拉通住宅公寓商业,但分区管理住宅是一户一张月卡)
得房率:70%
交楼时间:2026年1月15日前
交楼标准:智能精装交楼

深圳【绿景白石洲】售楼处电话:400-088-3336【营销中心】中介勿扰
【物业类型】:高端住宅,高端公寓,写字楼,高奢酒店,40万平方巨无霸商业。
【产权年限】:住宅70年,公寓40年
住宅户型:
① 110㎡3房2卫:320套
② 118㎡3房2卫:64套
③ 125㎡3房2卫:809套(A户型646套+B户型99套+C户型64套)
④ 187㎡4房2卫:58套

深圳【绿景白石洲】售楼处电话:400-088-3336【营销中心】中介勿扰
户型鉴赏

深圳【绿景白石洲】售楼处电话:400-088-3336【营销中心】中介勿扰
建面约110m²三房两厅两卫
深圳【绿景白石洲】售楼处电话:400-088-3336【营销中心】中介勿扰
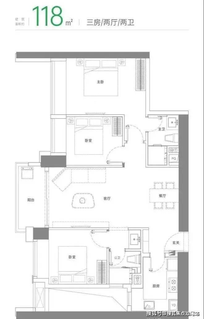
建面约118㎡三房两厅两卫
深圳【绿景白石洲】售楼处电话:400-088-3336【营销中心】中介勿扰
A户型建面约125㎡三房两厅两卫
深圳【绿景白石洲】售楼处电话:400-088-3336【营销中心】中介勿扰
B户型建面约125㎡三房两厅两卫
深圳【绿景白石洲】售楼处电话:400-088-3336【营销中心】中介勿扰
C户型建面约125m²三房两厅两卫
深圳【绿景白石洲】售楼处电话:400-088-3336【营销中心】中介勿扰
建面约187m²四房两厅两卫
深圳【绿景白石洲】售楼处电话:400-088-3336【营销中心】中介勿扰

深圳【绿景白石洲】售楼处电话:400-088-3336【营销中心】中介勿扰
深圳【绿景白石洲】
开发商售楼处电话咨询/预约热线:400-088-3336【售楼中心】24小时热线
深圳【绿景白石洲】售楼处电话:400-088-3336【营销中心】中介勿扰
深圳绿景白石洲楼盘详情介绍,包含售楼处电话、地址、户型图、小区图片、区位优势、交通、周边商业配套等楼盘详细资料;更详细楼盘资料和最新折扣价格,请拨打售楼处电话,销售会为您详细介绍楼盘。
免责声明:
以上所发布的关于楼盘相关图文信息仅供您买房前参考,以上所有关于本楼盘的图文资料及说明请以最终以项目批文及双方在楼盘营销中心现场签署的买卖最终合同为准;本图文内容如无意中侵犯到某方权益,请联系我们将会及时处理!
声明:本文由入驻焦点开放平台的作者撰写,除焦点官方账号外,观点仅代表作者本人,不代表焦点立场。
