金光华凤凰九里售楼处(售楼中心)24小时电话 金光华凤凰九里楼盘最新详情_户型_价格
扫描到手机,新闻随时看
扫一扫,用手机看文章
更加方便分享给朋友
深圳【金光华凤凰九里】楼盘最新详细信息,图文解析
金光华凤凰九里售楼处热线:400-088-3336(售楼中心)
★★售楼中心——欢迎来电咨询〢——匠心钜制恭迎品鉴!
◆◆营销中心——欢迎来电咨询〢———匠心钜制恭迎品鉴!
2:项目区位及基础信息一览
金光华凤凰九里:项目位于龙岗区平湖街道,凤凰大道和鹅岭路交汇处西侧,项目主打约70万平米人文运动大城,龙高集团统筹12年优质教育,同时项目自带约6000平米全龄运动设施
开发商:深圳大承企业管理有限公司(金光华集团)
物业公司:深圳市光华物业管理有限公司
物业管理费:4.2元/㎡
总占地面积:1.41万/㎡
总建筑面积:13.78万/㎡
容积率:6.92
绿化率:40%
产权年限:2023年8月9日-2093年8月8日(70年)
总户数:944户
总栋数及楼高:4栋,32-48层
梯户比:3梯6户
车位数:1541个
车位占比:1:1.02
交楼时间:2026年3月
交楼标准: 精装
金光华凤凰九里:共分7个地块开发,总占地面积约11万㎡,其中开发建设用地面积约8.18万㎡,总建筑面积约48.95万㎡,容积率6.0,共由20栋超高层住宅+1栋办公楼组成,预估总房源量超4700套!项目目前在售67平-106平两至三房户型
金光华凤凰九里:这次推出的是03地块,凤凰九里慧苑,总占地面积约1.41万㎡,总建筑面积约13.78万㎡,计容建筑面积约9.75万㎡,容积率6.92,绿化率40%,共由4栋32-48层住宅组成,其中1栋1/4单元住宅48层,1栋2单元住宅47层,1栋3单元住宅32层。
金光华凤凰九里:总规划944户,全部都是商品房,3梯6户设计,地下室有3层,规划停车位1541个,其中充电桩车位有493个,(跟凤凰九里恒苑共享停车库,2个小区加起来总共1992户,有2035个车位,车位比约1:1.02)。
3:项目在售户型及平面图一览
在售户型一:67平米两房一卫:总价区间在216万至240万左右
在售户型二:106平米四房两万:总价区间在340-430万左右
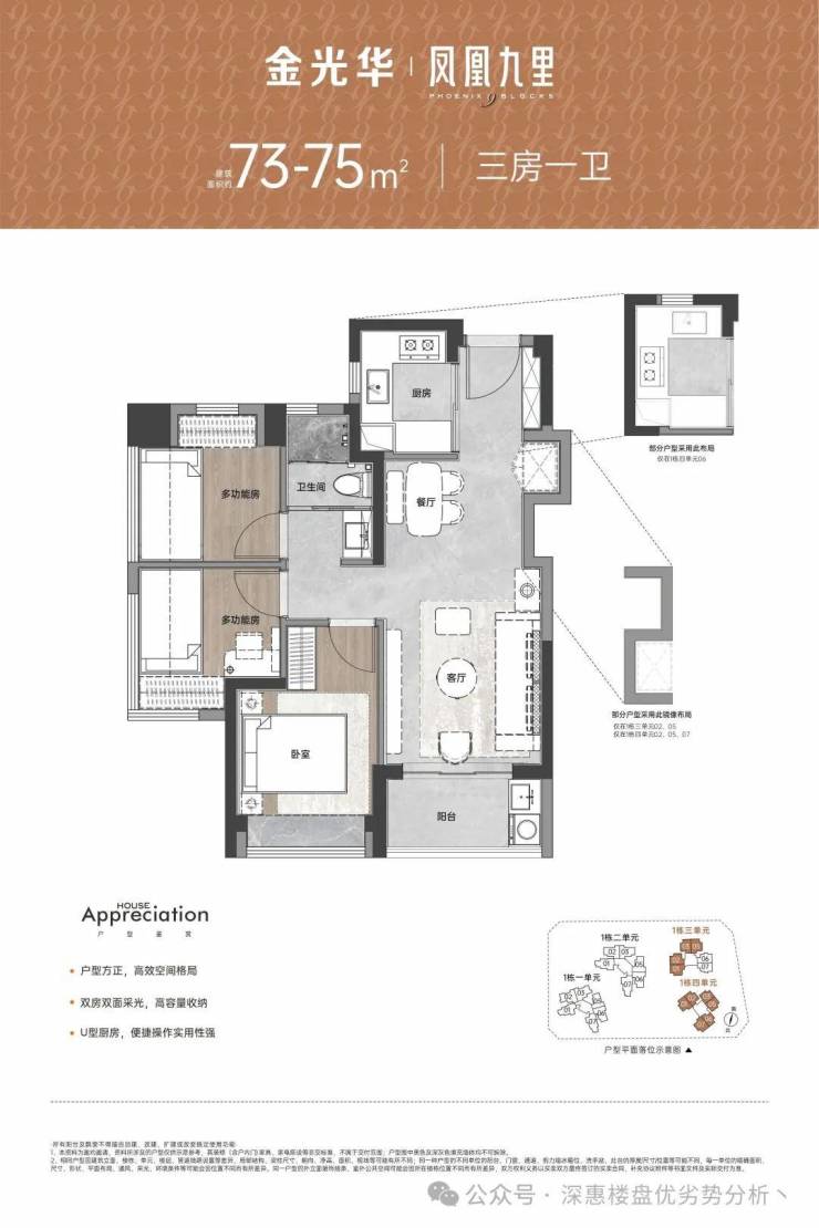
在售户型三:73-74平米三房一卫:总价区间在240-270万左右
在售户型四:83-85平米三房两卫:总价区间在280万-320万左右
户型得房率:项目整体户型得房率在百分之九十左右
4:项目各类配套一览
交通配套:目前地铁出行主要依靠地铁十号线双拥街站,距离在三公里左右,电动车大概十分钟可以到,同时项目规划了有17号线鹅公岭站,大概在一公里左右,不过要2028年通车,同时项目紧邻凤凰大道,平湖大街等主干道,和丹平快速无缝衔接
教育配套:项目自身配建1所9班幼儿园,1所12班幼儿园,旁边规划有1所九年制学校,已经确定为龙高教育集团平湖学校,规划有81个教学班,不过要等到明年才能投入使用,不过今年买房是没影响的,另外根据2024年最新的学区划分,小学学区划分在鹅溪小学,平湖实验学校小学部,中学学区划分在平湖实验学校初中部。
商业配套:万达广场直线距离约1.5公里,体量达30.5万㎡,项目规划约1.8万㎡开放式商业街区“Mini Mall”,以深圳版“The Commons”为蓝本,涵盖零售、餐饮、娱乐等多元业态
生态配套:坐拥城市难得生态资源,项目周边环绕约88万㎡凤凰山国家矿山公园、约300万㎡平湖生态园、凤凰山高尔夫球场、雁湖公园、雁田水库等自然生态,亦有鹅公岭社区公园近在咫尺,给予便捷的盎然绿意生活体验。
小区环境:项目规划约500米大城的立体城市连廊系统,无缝串联全龄教育、精致商业、品质人居、活力运动、公园休闲等功能板块,缔造畅享多元化大城新生活。
项目重点规划约6000㎡有氧体育活动场地,通过双层立体化集中布置,以天桥串联起运动社区的各个场地与专属社区,给予更多大城美好体验。
游泳馆、篮球场、mini足球场、儿童游乐场地、健身活动场地等活力功能区;花园会客厅、主题书吧等社区无界泛会所,满足业主游泳、球赛、健身、童乐及兴趣社交等乐活需求。
5:项目综合测评(优缺点分析)
1、首先从区位来看,金光华凤凰九里所处的板块靠近东莞凤岗,仅一路之隔,在平湖而言也不算中心的位置,周边都是工业园区居多,不过该楼盘规模较大,待后期全部建成后,周边跟学校、信城缙学府连成一片,整体的城市界面感还是可以的。
2、从买房必备3件套来分析,金光华凤凰九里家门口有幼儿园跟龙高集团平湖学校,可以做到12年目送式教育,学校师资不会差,目前周边地铁稍微有点距离,包括远程规划地铁也是在1公里以上,需要公交或者电动车辅助出行,商业方面日常楼下社区底商可以满足,大的商业体也能去到奥特莱斯,万达广场等地方,总体来说评分一般。
3、金光华凤凰九里居住人群比较纯粹,这次推出的凤凰九里慧苑,总共944户,全部都是商品房,没有安居房、公租房、回迁房等掺和。
4、金光华凤凰九里作为小区来说,配套建设的功能区不少,比如篮球场、足球场、公园、书吧、游泳池、社康等都是一应俱全,对比当下多数新盘在这方面还是很占优势的。
5、金光华凤凰九里虽然是旧改建设的楼盘,但是得房率不算低,不加赠送得房率就有78-80%区间,加上赠送后得房率在88-93%。
6、金光华凤凰九里可以今年买今年交房,虽然合同约定的是在2026年3月交付,但是现在已经明确了会在2025年年底之前交付,小孩到2026年在旁边龙岗集团平湖学校读书的时候,加上装修期去甲醛时间,可以完美住进来。
7、金光华凤凰九里这次给到的优惠力度也很大,并且还能做到首付8万起就可以上车,月供也是在普通阶层能够承受得起的范围内,在深圳新盘来说也是极为少见的。
8、金光华凤凰九里,周边还有好几个小区地块要动工,在后期住进来后可能会有一定周期内的工程噪音影响。
深圳【金光华凤凰九里】楼盘最新详细信息,图文解析
金光华凤凰九里售楼处热线:400-088-3336(售楼中心)
★★售楼中心——欢迎来电咨询〢——匠心钜制恭迎品鉴!
◆◆营销中心——欢迎来电咨询〢———匠心钜制恭迎品鉴!
免责声明:我们致力于保护作者版权,转载或引用仅为传播楼盘更多信息,本文部分图片可能来源于网络,无法核实其真实出处,如涉及侵权请联系我们并及时配合处理。
声明:本文由入驻焦点开放平台的作者撰写,除焦点官方账号外,观点仅代表作者本人,不代表焦点立场。
