利金城中心大厦写字楼租赁招商电话(利金城中心售楼处)首页网站-利金城中心营销中心-利金城中心欢迎您-楼盘详情-2025年最新价格-户型图-容积率@最新售楼处
扫描到手机,新闻随时看
扫一扫,用手机看文章
更加方便分享给朋友
利金城中心 位居深圳几何中心、湾区中轴的龙华CBD、坂雪岗科技城核心区域共享北站、坂田两大数字经济总部经济集聚区产业优势借助中央活力区、超级商圈、科创引擎三大功能区资源红利更有华为、富士康、康冠、航嘉等高端智造产业集群赋能上下游产业全链整合,数字产业生态恢弘成型。

#利金城中心写字楼租赁 #龙华办公室出租
租赁面积:150-2200㎡+灵活办公空间 现楼租赁
租金报价:70-80元/㎡
利金城中心招商中心电话:400-088-3336【☎☎已认证】
合同年限:3年起;递增:第三年递增6%
总占地面积:7.6万㎡
总建筑面积:34万㎡
容积率:4.03
物业管理费:8元/㎡·月
电梯品牌:迅达
交付标准:精装/毛坯
停车位:1440,充电桩335台

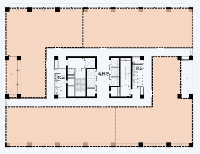
T1栋平面图

T1栋楼体高度:99.9m/21层
标准层面积:2209.37㎡/层
标准层高:4.5m
电梯数量:8台客梯,1台消防梯
电梯承载量:客梯(1150KG),货梯(2000KG)
使用率:70-76%

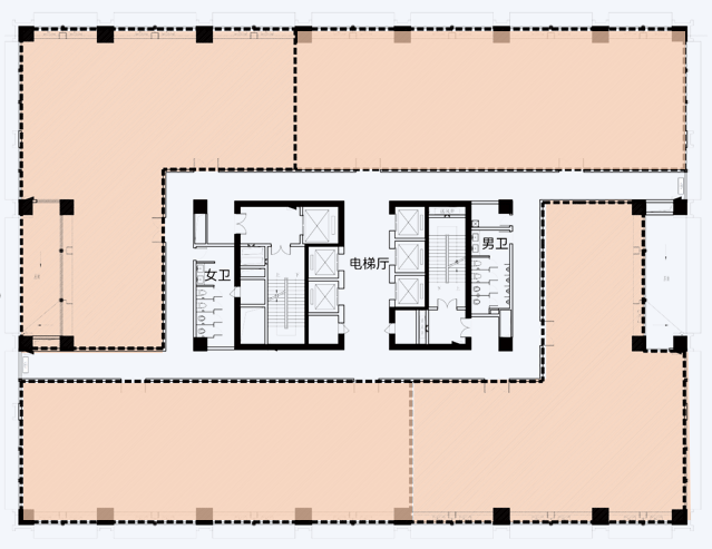
T2栋平面图

T2栋楼体高度:99.9m/21层
标准层面积:1705㎡/层
标准层高:4.5m
电梯数量:5台客梯,1台消防梯
电梯承载量:客梯(1150KG),货梯(2000KG)
使用率:70-82%
区位交通图▼
地铁:距离5号线五和站(约1000米)、10号线坂田北站(约700米)
高速:梅观大道,沈海高速高效通达湾区,连接福田,罗湖,南山
高铁:距离深圳北站直线距离4公里、车行时长约10分钟
公车:项目下楼即利金城工业园公车站首末站
奢阔大堂 舒适接待▼

品质电梯 高效商务▼

一站式企服中心▼

园区资源即取即用,悦享8大服务体系▼

免责声明:本文内容非物业及开发商,内容仅供参考,如有错误内容感谢您及时联系告知我们,谢谢!
声明:本文由入驻焦点开放平台的作者撰写,除焦点官方账号外,观点仅代表作者本人,不代表焦点立场。
