深圳2025金光华溪山君樾(售楼处)首页网站-金光华溪山君樾营销中心-金光华溪山君樾欢迎您-楼盘详情-最新价格-户型图-容积率@售楼处
扫描到手机,新闻随时看
扫一扫,用手机看文章
更加方便分享给朋友
✅金光华·溪山君樾别墅
✅金光华·溪山君樾别墅售楼处电话:400-088-3336【☎☎首页已认证】✨✨
✅金光华·溪山君樾别墅营销中心电话:400-088-3336【☎☎首页已认证】✨✨
温馨提示:本项目采用预约制,过来营销中心参观样板间请记得提前拨打开发商楼盘售楼处400热线电话在线预约,感谢您的配合!
金光华·溪山君樾别墅(深圳龙华)
开发商背景
金光华集团,立足于中国深圳,致力于成为粤港澳湾区高品质城市综合运营商。
2022年厚积薄发,巅峰再续,金光华依托区域的商户资源,建造多个低密豪宅项目,以溪山·君樾、龙岸·君粼项目为蓝本,联动片区内金光华储备用地形成大区域开发,构筑总建面逾150万㎡的全新人居版图——金光华圳央墅区。
十年底蕴沉淀,无需等待
金光华圳央墅区,历经十年沉淀,金光华墅区已成规模,圈层素质稳定,城市配套完备,山湖资源优越,同时,一手新墅现楼发售,0等待,0风险。已售别墅产品超90%的入住率,所形成的“都市别墅生活圈”更是全市别墅项目的典范
项目位于龙华新区民治街道办梅坂大道南侧,共分三期开发,一二期共14栋高层、15栋双拼和叠加别墅。溪山君越 售楼处电话:400 006 8087。共用一个中央大花园,有游泳池、篮球场、网球场、小区幼儿园等配套,别墅区有独立花园,高层的户型方正实用,通风采光好,视野开阔,朝东、南、北都能看湖景,东面紧邻坂田星河雅宝综合性科技园。
【溪山君樾 · 必买理由】
必买理由一:不可复制的无价山湖景观
必买理由二:龙脉加持的风水宝地
必买理由三:五万平大师社区园林
必买理由四:双CBD间,仅有的低密墅区
必买理由五:近享城市中心的全能配套
必买理由六:从容不迫的立体交通
【宽怀壮阔·无价湖山景观】
比肩世界湖区的优越资源:地处深圳“中心湖区”,周边环伺4大自然生态湖泊,湖岸微澜风光无限,滋养健康涵养心境,孕育都会生活于家族贵雅之道。
背靠独一无二银湖山:享受原生山区,一面退守山水宁静,一面执掌城央繁华,唯此溪山。
【上风上水·龙脉加持】
风水讲究以“藏风聚气,山环水抱为吉”,溪山君樾就是一个上乘的风水宝地。外由塘朗山和银湖山两座山峦左右立势,周边还有四大水库环绕聚集;内部布局更是巧妙绝伦,园林入口设置了风水圆环,有风生水起、吸财纳气之意。园林内有活水溪流,有入水为财,聚气八方的寓意;所以溪山君樾从整体来讲,是把外面龙脉的气场和能量借进来,同时通过内部的布局通过水把财气聚集起来。
【大师定制·5万平精筑园林】
溪山行旅,城央如入画境,以一溪一山五道打造深圳唯一“画境”园林。
一溪:1000米溪岸,沿着台地蜿蜒,活水点染此间大美;
一山:保留了一处高度约25米的自然山丘,通过登山步道、林地塑造、休闲场所设置来打造一处私家观景平台,圳央隐奢高阔山居;
五道:溪山道、涵山道、涟山道、溯溪道、藏溪道,五重拾溪道,久居不厌的时光道。
【执守双CBD·于中心自成一派】
深圳“正”中心,产业规划核心区位:
位于北站CBD,福田CBD内,是深圳政治、经济、文化、商业、人文的核心版图与城市客厅双利好区域,于深圳稀缺的土地中,“抢占出”仅有的一片低密墅区。
【难得一见·咫尺漫步繁华】
墅区周边商业丰富,配套齐全,配合内部静谧的自然环境,做到繁华与宁静随心切换
交通配套
项目最近地铁为10号线雅宝站,步行约5分钟左右即可到达,约270米。小区周边已有交通网络四通八达,梅坂大道、梅龙路、福龙路、新区大道、民治大道、梅观高速及南坪快速等主干道临近项目周边,从小区出行至福田区、南山区、龙华、布吉等区域十分便利。
商业配套
项目自带商业配套,北侧就是星河WORLD·COCO Park,星河WORLD·COCO Park集办公楼、商业、住宅为一体的综合体,周边还有上河坊购物乐园、星河COCO City(民治店)丨上河坊购物乐园丨Coco City丨红山商圈丨福田CBD商圈
教育配套
项目自带一所幼儿园,周边有华南师范附属中小学,九年一贯制丹堤实验学校。
生态配套
银湖山公园
最靠近市中心的原始生态林,有一条宛如世外桃源的治愈系森林绿道,抬眼满目葱郁,安静得让人很放松。
塘朗山公园
满足城市山海的所有幻想,三个区的城市风光尽收眼底,山上野生动物保护得很好,上山途中能看见吗喽。
【无忧出行·大人物从容不迫】
湾区级交通网格:近拥深圳北站—五和双枢纽,一小时大湾区各城从容出行,畅达全国
地铁网格黄金交叉点:深圳地铁10号线雅宝站,可快速切换8条地铁线。溪山君越 售楼处电话:400 006 8087。1站速达福田,将时间留给都市沉浸享受。
南坪快速无缝接驳:项目东侧快速接驳干道直连南坪快速,无阻碍接驳南坪快速,通达全城。
房号:21栋B户型(双拼)
建筑面积:约292.28㎡
户型鉴赏:
房号:22栋A户型(双拼)
建筑面积:约332.18㎡
户型鉴赏:
房号:29栋A户型(联排端口)
建筑面积:约214㎡
户型鉴赏:
房号:29栋A户型(联排中间样板房)
建筑面积:约196㎡
户型鉴赏:
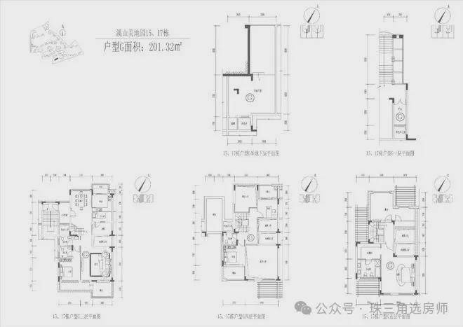
房号:15栋G户型(上叠样板房)
建筑面积:约201㎡
户型鉴赏:
房号:16栋F户型(上叠)
建筑面积:约201㎡
户型鉴赏:
✅金光华·溪山君樾别墅
✅金光华·溪山君樾别墅售楼处电话:400-088-3336【☎☎首页已认证】✨✨
✅金光华·溪山君樾别墅营销中心电话:400-088-3336【☎☎首页已认证】✨✨
温馨提示:本项目采用预约制,过来营销中心参观样板间请记得提前拨打开发商楼盘售楼处400热线电话在线预约,感谢您的配合!
免责声明:部分图片来源网络,如有侵权请联系后台,我们会第一时间删除。本文资料仅为要约邀请,部分图片为示意性图片,一切图文资料、规划设计仅供参考识别或分享交流之用,不构成合同内容,具体内容均以政府最终批准文件及双方签订的买卖合同为准。
声明:本文由入驻焦点开放平台的作者撰写,除焦点官方账号外,观点仅代表作者本人,不代表焦点立场。
