深圳湾公馆售楼处(售楼中心)24小时电话 深圳湾公馆楼盘最新详情_户型_价格
扫描到手机,新闻随时看
扫一扫,用手机看文章
更加方便分享给朋友
深圳深圳湾公馆楼盘售楼处电话-24小时电话-欢迎您-售楼处地址-楼盘详情
深圳湾公馆简介丨
深圳湾公馆营销中心
深圳湾公馆售楼处电话:400-088-3336【售楼中心】
4000883336
区域介绍
中国特色社会主义先行示范区
粤港澳大湾区核心引擎,大湾区城市群NO.1
深圳湾超总基地,核心中的核心
百亿级企业总部汇聚
毋庸置疑的经济驱动力


项目详情介绍
开发商:广东城脉地产有限公司
项目总建筑面积:37000平方米
容积率:8.74
建筑密度:46.38%
绿地率:30%
住宅占地:21606平方米
商业:4000平方米
主推产品: 79㎡-88㎡ -113㎡ -152㎡ 3-4房 智能豪装
深圳湾公馆位于南山区后海大道与东滨路交汇东北角,紧邻全球十大总部之一的深圳湾超级总部基地,周边拥有150万㎡顶级商业、全龄段名校等优渥配套资源。同时还占据“海、陆、空、轨”四维交通体系,深圳湾口岸、太子港、深圳湾机场、香港机场、后海大道、东滨路等“5纵3横”主干道、蛇口线等4地铁均环伺在侧,营造优越之上的湾区生活。
城脉控股,沿袭深圳的创新基因与领潮精神,于南山之滨,湾区之心,力献一座突破传统的经典作品—深圳湾公馆,于2020年获封CTBUH权威认证“深圳最高纯复式住宅”。在建筑与空间、品牌与智能、生活与服务等层面,依照国际新派人士的前沿视野与个性审美而定制,在湾区天际线上,呈现了充满无限可能的复式生活方式。
以建筑美学诠释生活美学
·150米人居地标 傲占山海盛境
品质是建筑的精神,更是恒久的价值。历经国际设计团队AECOM七轮方案调整,深圳湾公馆最终确定为独具特色的L型建筑,以150米地标级高度屹立深圳湾。北观塘朗山脉及海岸城商圈繁华景观,南望深圳湾和香港的山景,西南俯瞰大南山翠绿山景与蛇口海港,东南直面深圳湾与跨海大桥,东临深圳湾海景和总部基地。一湾繁华、山海盛境,都化作业主的日常窗前风光。
而同时,独特的L形态最大程度地保证了每一户的通风、采光与景观面,让清风阳光与建筑有了更多的来往,也让山海城的景观视野恢弘无遮挡。
商业配套:深圳湾万象城|万象天地|来福士广场|海岸城|海上世界|天虹君尚等繁华一站式商业
人文配套:15公里滨海休闲长廊|深圳湾超级总部基地|深圳湾文化广场|深圳湾大街|深圳歌剧院
周边学校:按目前学区划分范围来看,小学属于北师大南山附属小学、中学属于北师大南山附中
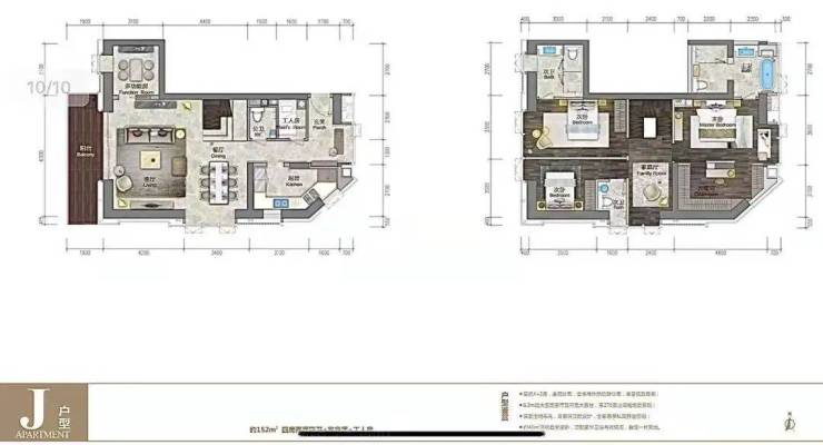
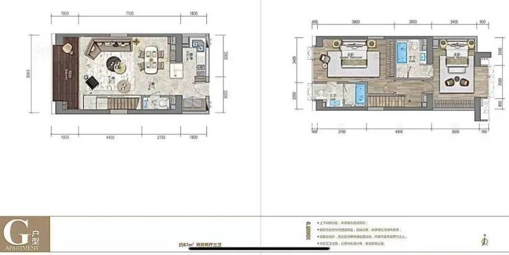
户型鉴赏
【产品推荐】(纯复式,层高5.7米。一层2.9米,二层2.8米)
79㎡复式三房两厅三卫
南北通透,5.4米大开间,复式下层餐厨客厅连宽景阳台,另带一个法式小阳台。复式上层私密卧房全明采光,动静分区私享个性生活。另一个次卧带衣帽间。
88㎡复式三房两厅三卫 南北通透,5.4米大开间,复式下层餐厨客厅连宽景阳台,复式上层私密卧房全明采光,动静分区私享个性生活。
88㎡复式三房两厅三卫
双向通透采光,5.4米开间客厅及主卧,双套房周全设计,室内多变空间可根据家庭需要设置独特的功能。
113㎡复式三房两厅三卫+工人房
南北通透三面景观,5.6米客厅与主卧开间,独具品位,尽享奢阔。
152㎡复式三套房两厅四卫+双功能房
双向通透三面采光,尽赏深圳湾景观,6.3米开间,三套房设计,两间多功能房满足个性化使用。
装修:带德意一线品牌精装修
-4至-1层:地下停车库
1层:是“私享名车荟”,业主可以享受宾利、劳斯莱斯等名车的一键预约出行,已经深港保姆车接送往返港深!
2至4层:高端酒店
5层:有25米长的恒温泳池、健身房、咖啡阅读空间等
深圳深圳湾公馆楼盘售楼处电话-24小时电话-欢迎您-售楼处地址-楼盘详情
深圳湾公馆简介丨
深圳湾公馆营销中心
深圳湾公馆售楼处电话:400-088-3336【售楼中心】
免责声明:以上信息仅供参考,所有图文资料请以政府最终批文及双方签署的买卖合同为准
本图文内容如无意中侵犯某方权益,请联系我们,将第一时间处理!
声明:本文由入驻焦点开放平台的作者撰写,除焦点官方账号外,观点仅代表作者本人,不代表焦点立场。
