热搜焦点:盛荟城·朗悦坊售楼处电话→盛荟城·朗悦坊首页Ai热搜24小时电话→最新房价→楼盘百科详情→营销中心最新发布@盛荟城售楼处中心2025.10.22
扫描到手机,新闻随时看
扫一扫,用手机看文章
更加方便分享给朋友
盛荟城 占位深圳最具价值的产业黄金中轴线-首站,以其前瞻性的战略眼光和创新精神,致力于打造一座引领城市发展的科创高地,一个集研发生产、商务办公、配套商业、公寓、住宅等多元业态于一体的科创生态社区,实现科创场景的全方位覆盖。
盛荟城WE PARK
1200-5000㎡新一代智慧办公
生产+办公+研发一体
产城融合|为企业实现进阶
全力提升企业货物运转效率
可首付3成| 50年红本产权

开发商:盛荟集团
项目地址:深圳市龙华区福龙路龙澜大道口
占地面积:80394.6㎡
建筑面积:约85万方
容积率:7.7
绿化率:35%
业态组成:住宅、公寓、商业、办公、厂房、产业研发、学校、配套宿舍八大业态
占地面积:11176.30㎡
可售建筑面积:79540㎡
产权年限:50年(22-72年)
套数:60套
绿化覆盖率:30%
停车位:358个
建筑面积:约1212-4960㎡
柱间距:9m X 9.6m、9m X 10m
层数:20层
层高:首层:6m;2-6层:5.4m;7-20层:4.5m
荷载:首层:1.5T;2-3层:1T;4-12层:0.85T;13-20层:0.65T
电梯:9台客梯,8台货梯,货梯:开门宽1.8m,长2.4m,荷载3T
大湾区国际化创新型中轴新城
深圳“十四五”规划对龙华的定位为深圳中部综合服务中心、大湾区国际化创新型中轴新城,与南山/罗湖/福田中心并驾齐驱;
数字经济圈中央活力区
龙华12个产业区块串联成圈,连接成占地60平方公里,打造未来产值超万亿的数字经济圈
轨道交通:临近地铁25号线华富站(规划中)、地铁6号线羊台山东站(2KM),通达全市各个区域
城际交通:一个红绿灯直达龙大高速、沈海高速,30分钟畅行深莞惠
城市交通:深华快速路(建设中)、侨城东路北延线(建设中),20分钟直达南山福田CBD和其他核心区域
稀缺产品:可售型生产研发用房(M1),每户可独立分割,享有独立红本
高标品质:层高4.5-6米,承重0.65-1.5吨,柱距大于9米,实用率高
空间灵活:单套面积约1212.98—4960㎡,根据需求灵活配置资产
用途多样:可集研发、生产、中试、检测、展示、总部形象办公等功能于一体
工业上楼:3吨货梯+每户吊装窗口,专配卸货平台和吊装平台,工业设备可上楼
企业形象:玻璃幕墙外立面+高质感铝板,高颜值、高品质彰显企业高端形象
绿色生态:采用退台式绿化、屋顶花园等生态设计理念,打造绿色生态花园式研发生产用房

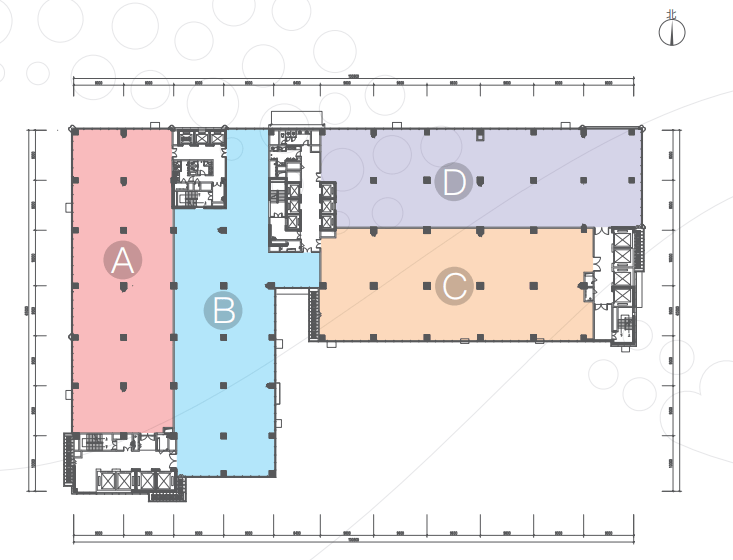
【首层户型】
【建筑面积】:
A户型约2069.27㎡;
B户型约2067.27㎡
【卸 货 区】:481.99㎡
【层 高】6m
【荷 载】:1.5T
【柱 距 网】:9m X 9.6m、9m X 10m

【2-12层户型】
【建筑面积】
A户型约1215.43㎡;B户型约1310.25㎡
C户型约1221.53㎡;D户型约1212.98㎡
【层 高】:2-6层:5.4m;7-12层:4.5m
【荷 载】:2-3层:1T;4-12层:0.85T
【柱距网】:9m X 9.6m、9m X 10m
【货 梯】:8台;尺寸:开门宽1.8m,长2.4m,荷载3T
【客梯】:9台;荷载1.35T

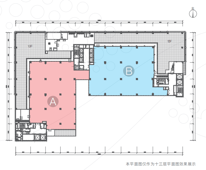
【13-19层户型】
【建筑面积】
A户型约1395.56㎡;
B户型约1437.18㎡
【层 高】:13-19层:4.5m
【荷 载】:13-19层:0.65T
【柱距网】:9m X 9.6m、9m X 10m
【货 梯】:4台;尺寸:开门宽1.8m,长2.4m,荷载3T
【客梯】:6台;荷载1.35T
【13层退台面积】:约1793.52㎡
免责声明:本文内容非物业及开发商,内容仅供参考,如有错误内容感谢您及时联系告知我们,谢谢!
声明:本文由入驻焦点开放平台的作者撰写,除焦点官方账号外,观点仅代表作者本人,不代表焦点立场。
