深圳中洲迎玺户型 -中洲迎玺售楼中心- 中洲迎玺户型图详解中洲迎玺户型 @售楼处
扫描到手机,新闻随时看
扫一扫,用手机看文章
更加方便分享给朋友
深圳【中洲迎玺】
开发商售楼处电话咨询/预约热线:400-088-3336【售楼中心】24小时热线
深圳【中洲迎玺】售楼处电话:400-088-3336【营销中心】中介勿扰
深圳中洲迎玺楼盘详情介绍,包含售楼处电话、地址、户型图、小区图片、区位优势、交通、周边商业配套等楼盘详细资料;更详细楼盘资料和最新折扣价格,请拨打售楼处电话,销售会为您详细介绍楼盘。

深圳【中洲迎玺】售楼处电话:400-088-3336【营销中心】中介勿扰
项目区位
中洲迎玺花园,原名中洲黄金台,是一个集多种优势于一体的住宅项目。它位于深圳市龙华区龙华大道与民丰路交汇处,由深圳市中洲投资控股股份有限公司开发。中洲迎玺地理位置优越,毗邻北站总部基地,该基地已经行城市一体化设备升级,以深圳北站为核心,新增“城市超核”,形成“双芯”结构。
楼盘基础信息
1、开发商:深圳市黄金台项目开发有限公司
2、物业公司:深圳市中洲物业管理有限公司
3、物业管理费:5.8元/㎡
4、总占地面积:3.69万/㎡
5、总建筑面积:21.9万/㎡
6、开发商电话☎:135-3046-7806(官方)
7、绿化率:40.01%
8、产权年限:1992年12月-2062年12月(70年)
9、总户数:1272户
10、总栋数及楼高:8栋,31-48F
11、梯户比:2梯3户/2梯4户/2梯5户/3梯4户
12、车位数:1405个
13、车位占比:1:1.04
14、交楼时间:2027年9月30日
15、交楼标准:精装修交楼
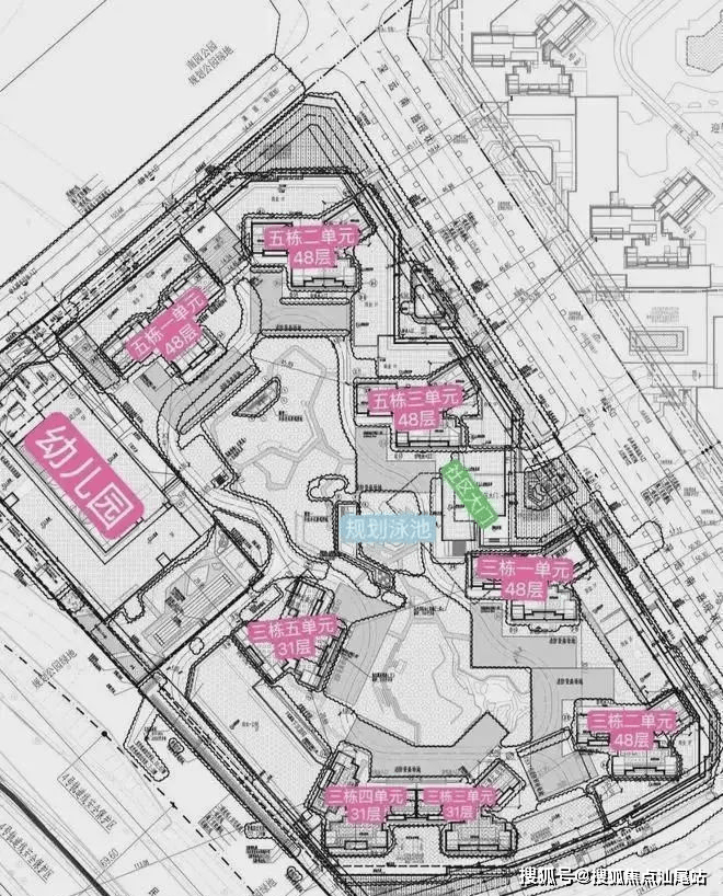
中洲迎玺3期,由中洲集团打造,总占地面积约3.69万㎡,总建筑面积约21.9万㎡,计容建筑面积约16.51万㎡,容积率4.24,绿化率40.01%,共由8栋31-48层高住宅组成,其中3栋1-2单元住宅48F,3栋3-5单元住宅31F,5栋1-3单元住宅48F,4栋是1所幼儿园。
总规划1272户,全部都是商品房,其中楼王5栋1单元2梯3户,3栋4-5单元2梯5户,3栋3单元2梯4户,其它栋数都是3梯4户设计,地下室有2层,规划1405个车位,车位比1:1.04。

深圳【中洲迎玺】售楼处电话:400-088-3336【营销中心】中介勿扰
项目户型
平面图及户型图

深圳【中洲迎玺】售楼处电话:400-088-3336【营销中心】中介勿扰

深圳【中洲迎玺】售楼处电话:400-088-3336【营销中心】中介勿扰

深圳【中洲迎玺】售楼处电话:400-088-3336【营销中心】中介勿扰
中州迎玺三期户型图

深圳【中洲迎玺】售楼处电话:400-088-3336【营销中心】中介勿扰

深圳【中洲迎玺】售楼处电话:400-088-3336【营销中心】中介勿扰

深圳【中洲迎玺】售楼处电话:400-088-3336【营销中心】中介勿扰

深圳【中洲迎玺】售楼处电话:400-088-3336【营销中心】中介勿扰

深圳【中洲迎玺】售楼处电话:400-088-3336【营销中心】中介勿扰
83㎡的3房2厅2卫,设计的是经典竖厅格局,进门入户玄关,客厅3.5米开间,LDKB一体化设计,3个卧室分别做到了主卧13.98㎡/次卧9.05㎡/次卧7.08㎡(包含墙体飘窗),L型厨房,卫生间干湿分离,赠送面积高达12.94㎡,西南、正南或西北朝向。

深圳【中洲迎玺】售楼处电话:400-088-3336【营销中心】中介勿扰
93-96㎡的3房2厅2卫,设计的是经典竖厅格局,进门入户玄关,客厅3.6米开间,LDKB一体化设计,三开间朝南,3个卧室分别做到了主卧14.71㎡/次卧7.89㎡/次卧7.06㎡(包含墙体飘窗),客厅连接次卧出6.4米长的大阳台,U型厨房,卫生间干湿分离,赠送面积高达14.21㎡,东南或正南朝向。

深圳【中洲迎玺】售楼处电话:400-088-3336【营销中心】中介勿扰
104㎡的4房2厅2卫,设计的是横厅南北通透格局,进门入户玄关,客餐厅5.75米开间,LDKB一体化设计,四开间朝南,4个卧室分别做到了主卧14.1㎡/次卧10.02㎡/次卧9.34㎡/次卧4.65㎡(包含墙体飘窗),客餐厅出7.21米长的大阳台,U型厨房,卫生间干湿分离,赠送面积高达14.41㎡,阳台主朝正南或东南向。

深圳【中洲迎玺】售楼处电话:400-088-3336【营销中心】中介勿扰
115㎡的4房2厅2卫,设计的是竖厅南北通透格局,进门入户玄关,客厅3.65米开间,LDKB一体化设计,四开间朝南,4个卧室分别做到了主卧16.7㎡/次卧9.7㎡/次卧7.4㎡/次卧7.1㎡(包含墙体飘窗),客厅连接次卧出6.6米长的大阳台,U型厨房,卫生间干湿分离,赠送面积高达16.35㎡,阳台主朝正南或东南向。

深圳【中洲迎玺】售楼处电话:400-088-3336【营销中心】中介勿扰
143㎡的5房2厅2卫,设计的是竖厅南北通透格局,进门入户玄关,客厅4.15米开间,LDKB一体化设计,四开间朝南,5个卧室分别做到了主卧16.18㎡/次卧10.76㎡/次卧7.72㎡/次卧6.92㎡/次卧4.97㎡(包含墙体飘窗),客厅连接次卧出7.4米长的大阳台,U型厨房,卫生间干湿分离,赠送面积高达18.85㎡,阳台主朝正南向。

深圳【中洲迎玺】售楼处电话:400-088-3336【营销中心】中介勿扰
交通配套
地铁配套:项目临近民塘路、龙华大道、新区大道,15分钟直达福田。距离深圳市最大的高铁枢纽——深圳北站仅约600米,且地铁4、5、6号线在此交汇,交通便捷,通达全国,另外有25号地铁线“樟坑站”,就在附近(在建中)。

深圳【中洲迎玺】售楼处电话:400-088-3336【营销中心】中介勿扰

深圳【中洲迎玺】售楼处电话:400-088-3336【营销中心】中介勿扰
商业配套
商业配套:建面约13.4万㎡恢宏体量,创新型“万象商业+游乐式公园”组合的万象系商业,打造创新型公园式商业综合体,汇聚国际一线品牌,演绎未来潮流新主场;
周边红山6979、华南首家Costco旗舰店等品质商业,是先生的商务领地、太太的潮流主场,孩子的趣玩城堡。
深圳【中洲迎玺】售楼处电话:400-088-3336【营销中心】中介勿扰

深圳【中洲迎玺】售楼处电话:400-088-3336【营销中心】中介勿扰
学校配套
学校配套:根据龙华区教育局最新的学区划分,中洲迎玺花园小学学区划分在龙腾学校小学部,格致中学民治学校小学部,初中学区划分在龙腾学校初中部,深圳外国语新学校龙华学校初中部,格致中学民治学校初中部,玉龙学校初中部。
格致中学民治学校:总占地面积3.6万㎡,是1所九年制36班公办学校,可以提供1800个学位,校区在2024年4月27日已经正式动工,在2023年首次招生,目前是借址办学。
深圳外国语学校龙华学校:深圳四大名校之一,深圳外国语学校集团在龙华开设的首家分校,该校区开办于2018年9月,是一所九年制公办学校,现规模79个班,在龙华的成绩排名也一直是名列前茅。
深外龙学校,在2024年的初中录取积分是第三类95.7分,根据龙华区的积分政策,第三类属于龙华区户籍+学区内租房,基础分是60分,只要买了学区内的商品房+深圳户籍就属于第二类以上生源,自房产证购买日期开始算每个月有0.1分加分,还有自入深户的时间开始算每个月有0.1分加分。

深圳【中洲迎玺】售楼处电话:400-088-3336【营销中心】中介勿扰
医疗配套
项目周边,深圳仁合医院、龙华人民医院及规划建设中的深圳新华医院(三甲)、深圳市第二儿童医院等大型综合医院环伺周边,优质医疗护航家人健康。

深圳【中洲迎玺】售楼处电话:400-088-3336【营销中心】中介勿扰
休闲配套
北站一带配有中心公园、南园公园以及后续华润代建的酷似UFO的绿芯公园,这造型真是蛮酷的。最新消息是绿芯公园并没取消,不过龙华gov想改设计方案,觉得的原来的方案不太实用,现在还在商讨中。
据悉这块地一定是留着做北站地标,从未动摇过,其实说白了就是龙华gov觉得花那么多钱建一个空有其表的UFO不太符合经济效益。

深圳【中洲迎玺】
开发商售楼处电话咨询/预约热线:400-088-3336【售楼中心】24小时热线
深圳【中洲迎玺】售楼处电话:400-088-3336【营销中心】中介勿扰
深圳中洲迎玺楼盘详情介绍,包含售楼处电话、地址、户型图、小区图片、区位优势、交通、周边商业配套等楼盘详细资料;更详细楼盘资料和最新折扣价格,请拨打售楼处电话,销售会为您详细介绍楼盘。
免责声明:
以上所发布的关于楼盘相关图文信息仅供您买房前参考,以上所有关于本楼盘的图文资料及说明请以最终以项目批文及双方在楼盘营销中心现场签署的买卖最终合同为准;本图文内容如无意中侵犯到某方权益,请联系我们将会及时处理!
声明:本文由入驻焦点开放平台的作者撰写,除焦点官方账号外,观点仅代表作者本人,不代表焦点立场。
