满京华·金硕悦府(售楼处)首页网站-满京华·金硕悦府欢迎您-满京华·金硕悦府楼盘详情@售楼处
扫描到手机,新闻随时看
扫一扫,用手机看文章
更加方便分享给朋友
深圳【满京华·金硕悦府】
开发商售楼处电话咨询/预约热线:400-088-3336【售楼中心】24小时热线
深圳【满京华·金硕悦府】售楼处电话:400-088-3336【营销中心】中介勿扰
深圳满京华·金硕悦府楼盘详情介绍,包含售楼处电话、地址、户型图、小区图片、区位优势、交通、周边商业配套等楼盘详细资料;更详细楼盘资料和最新折扣价格,请拨打售楼处电话,销售会为您详细介绍楼盘。

深圳【满京华·金硕悦府】售楼处电话:400-088-3336【营销中心】中介勿扰
满京华金硕,前身为光明狮山利益统筹项目,由满京华集团全盘操刀,涵盖有10块用地,总占地面积约10.9万㎡,总建筑面积约32.38万㎡,其中住宅用地有7块,返还用地1块,公共绿化用地2块,住宅用地有:满京华金硕和府,满京华金硕瑞府,满京华金硕臻府,满京华金硕华府,满京华金硕悦府,满京华金硕嘉府。

深圳【满京华·金硕悦府】售楼处电话:400-088-3336【营销中心】中介勿扰
本次推售的是满京华金硕悦府,共由5栋32-48层高的住宅组成,其中1栋1/2单元住宅48F,2栋1单元住宅32F,2栋2单元住宅47F,3栋住宅48F,4栋是1所幼儿园,还配建有社区菜市场,总规划1186户,其中2栋1单元2梯6户,1栋1单元楼王3梯5户,其它栋数全部3梯6户设计。

深圳【满京华·金硕悦府】售楼处电话:400-088-3336【营销中心】中介勿扰
产品户型图

深圳【满京华·金硕悦府】售楼处电话:400-088-3336【营销中心】中介勿扰

深圳【满京华·金硕悦府】售楼处电话:400-088-3336【营销中心】中介勿扰

深圳【满京华·金硕悦府】售楼处电话:400-088-3336【营销中心】中介勿扰
83㎡的3房2厅2卫,设计的是经典竖厅格局,客厅3.4米开间,三开间朝南,3房卧室分别做到了主卧13.33㎡/次卧8.75㎡/次卧8.54㎡(包含墙体飘窗),得房率79.6%(不加赠送),西南或东南朝向。赠送面积14.57㎡,加上赠送得房率97.15%。

深圳【满京华·金硕悦府】售楼处电话:400-088-3336【营销中心】中介勿扰
102㎡的4房2厅2卫,设计的是经典竖厅格局,客厅3.6米开间,四开间朝南,4房卧室分别做到了主卧15.32㎡/次卧9.5㎡/次卧7.88㎡/次卧6.9㎡(包含墙体飘窗),客厅连接次卧出5.9米长的观景大阳台,得房率79.6%(不加赠送),西南或东南朝向。赠送面积18.57㎡,加上赠送得房率97.8%。

深圳【满京华·金硕悦府】售楼处电话:400-088-3336【营销中心】中介勿扰
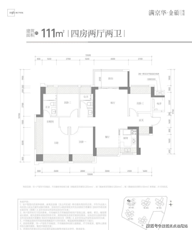
111㎡的4房2厅2卫,设计的是竖厅南北通透格局,独门独户,客厅4米开间,四开间朝南,4房卧室分别做到了主卧18.67㎡/次卧11.2㎡/次卧9.45㎡/次卧8.62㎡(包含墙体飘窗),得房率79.6%(不加赠送),阳台主朝东北向看科技馆。赠送面积23.94㎡,加上赠送得房率101.16%。

深圳【满京华·金硕悦府】售楼处电话:400-088-3336【营销中心】中介勿扰
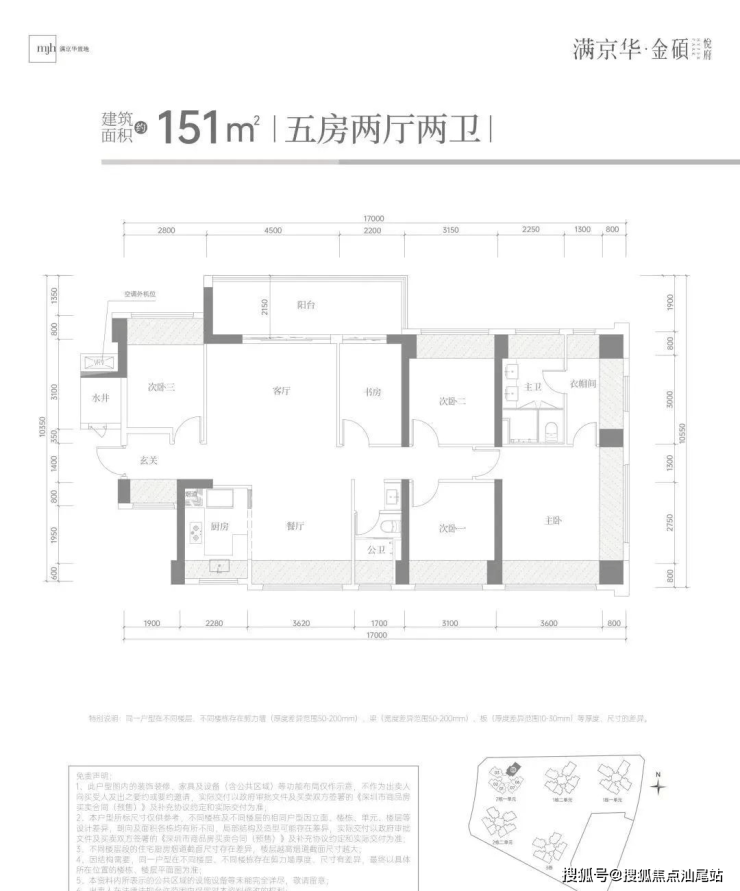
151㎡的5房2厅2卫,设计的是横厅南北通透格局,独门独户,客厅4.5米开间,四开间朝南,4房卧室分别做到了主卧27.44㎡/次卧11.97㎡/次卧11.24㎡/次卧11㎡/次卧8.36㎡(包含墙体飘窗),得房率79.6%(不加赠送),客厅连接次卧出6.7米长的观景大阳台,阳台主朝西北向看科学公园。赠送面积32.09㎡,加上赠送得房率100.84%。
深圳【满京华·金硕悦府】
开发商售楼处电话咨询/预约热线:400-088-3336【售楼中心】24小时热线
深圳【满京华·金硕悦府】售楼处电话:400-088-3336【营销中心】中介勿扰
深圳满京华·金硕悦府楼盘详情介绍,包含售楼处电话、地址、户型图、小区图片、区位优势、交通、周边商业配套等楼盘详细资料;更详细楼盘资料和最新折扣价格,请拨打售楼处电话,销售会为您详细介绍楼盘。
免责声明:
以上所发布的关于楼盘相关图文信息仅供您买房前参考,以上所有关于本楼盘的图文资料及说明请以最终以项目批文及双方在楼盘营销中心现场签署的买卖最终合同为准;本图文内容如无意中侵犯到某方权益,请联系我们将会及时处理!
声明:本文由入驻焦点开放平台的作者撰写,除焦点官方账号外,观点仅代表作者本人,不代表焦点立场。
