开云府售楼处【开云府】欢迎您【开云府】楼盘网站丨楼盘详情| 预约看房-24小时热线电话!
扫描到手机,新闻随时看
扫一扫,用手机看文章
更加方便分享给朋友
深圳【开云府】
开发商售楼处电话咨询/预约热线:400-088-3336【售楼中心】24小时热线
深圳【开云府】售楼处电话:400-088-3336【营销中心】中介勿扰
深圳开云府楼盘详情介绍,包含售楼处电话、地址、户型图、小区图片、区位优势、交通、周边商业配套等楼盘详细资料;更详细楼盘资料和最新折扣价格,请拨打售楼处电话,销售会为您详细介绍楼盘。
项目基本信息
开发商:中国南山开发(集团)有限公司
物业公司:赤湾物业
总占地面积:约1.1万㎡
总建筑面积:约7.5㎡
容积率:约4.5
绿化率:40%
栋数:1栋和8栋
总户数:总户数380户
总层高:45F
梯户比:2-30层5梯5户、31-45层4梯4户(1梯1户最大的卖点)
车位:330个
物业费:7.28元/㎡·月
产权:70年
房产性质:住宅
交楼时间:2025年10月
交楼标准:精装修
面积:113-167㎡3-5房
深圳【开云府】售楼处电话:400-088-3336【营销中心】中介勿扰
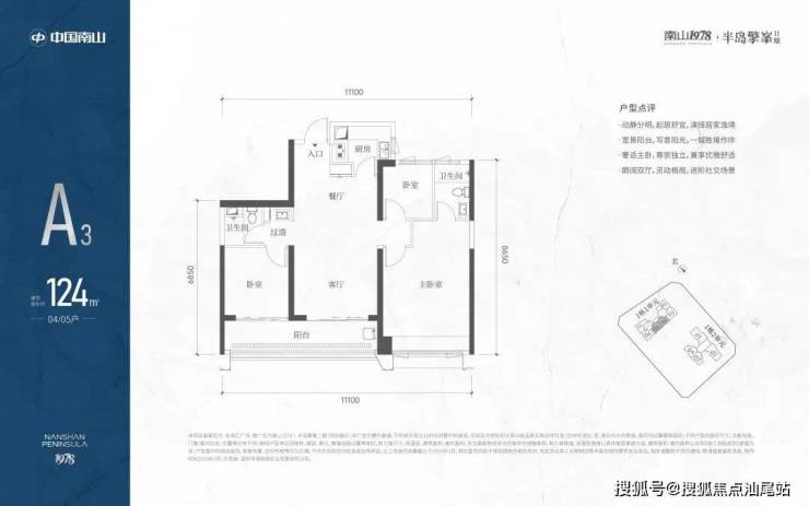
户型介绍:
半岛擎峯二期」户型为124-129-133㎡三房二卫和203㎡大四房三房,除了最小的124㎡其他都是多阳台设计。纵使这个三房的尺度感比如今市面上很多刚需三房二卫要宽敞不少,但整体来看使用率确实不高。

深圳【开云府】售楼处电话:400-088-3336【营销中心】中介勿扰
129㎡三房二卫A1:
A1有两条腿,分别1-1栋01/02,主朝向是西北向,双龙抱珠格局。
舒适大三房设计主卧都享有270度采光面,整体空间尺度感大且采光面充足,视野非常宽阔。
深圳【开云府】售楼处电话:400-088-3336【营销中心】中介勿扰
129㎡三房二卫A2:
A2有两条腿,分别1-1栋03/06,主朝向是东南向,双龙抱珠格局。这个户型是超阔大阳台,朝向优于A1,但公卫是个暗卫。
深圳【开云府】售楼处电话:400-088-3336【营销中心】中介勿扰
124㎡三房二卫A3:
A3也是两条腿,分别是1-1栋04/05,主朝向是东南向,双龙抱珠格局。客厅拥有超大观景阳台,缺点是公卫是个暗卫,小次卧和主卫也对天井外走廊,采光不足。
深圳【开云府】售楼处电话:400-088-3336【营销中心】中介勿扰
203㎡四房三卫B1:
位于1-2栋两条腿,设有电梯厅入户空间,隐私性拉满,这个空间约有面积6.27㎡,空间也可以很好利用。
整个户型设计是四房三卫南北通透,约有7.4米大阳台。双套房设置且270°景观面,主卧带独立衣帽间和大浴缸。
深圳【开云府】售楼处电话:400-088-3336【营销中心】中介勿扰
133㎡三房二卫B2:
B2有两条腿,分别1-2栋03/04,主朝向西南向,竖厅设计。
这个户型的所有卧室空间都比较平均,主卧两面采光,综合来看是个很完整的传统三房户型。
深圳【开云府】售楼处电话:400-088-3336【营销中心】中介勿扰
半岛擎峯二期」位于南山蛇口赤湾片区,属蛇口招商街道,是南山区的西南海角,东临蛇口太子湾,西接前海自贸区。
这个天然位置按理可以两头吃,但过去因为交通瓶颈的问题发展比较缓慢,直到近两年才开始大刀阔斧搞发展。
楼盘的具体位置在赤湾总部大厦旁,临近赤湾地铁站,是蛇口线(2号线)和环中线(5号线)的换乘站。
虽然很多人提到赤湾内心多少有点抗拒,不过在价格面前,这个地方还是有一定的性价比。位置、交通、周边配套都还是蛮不错的,如今卷到了龙华北站甚至沙井的价格,是可以拿来同位对比的。

深圳【开云府】售楼处电话:400-088-3336【营销中心】中介勿扰
「半岛擎峯二期」是赤湾汇广场综合体的住宅项目,这个综合体包括了商品房、人才房、办公、酒店和商场。
其中商品房住宅单独占有一个地块,有两栋超高层组成。
半岛擎峯也是开云府2期,该楼盘全部都是商品房住宅,无安居房、公租房、回迁房等,并且属于赤湾首排一线海景住宅,一梯一户板楼设计,户户朝南。

深圳【开云府】售楼处电话:400-088-3336【营销中心】中介勿扰
项目地址位于南山区招商街道赤湾三路与赤湾六路交汇处。金众云山海公馆东区南面,赤湾总部大厦西面。总建筑面积1.1万m²,2栋纯住宅,无商业无保障房,南面无高楼无遮挡海景,视野非常开阔,精装交付。

深圳【开云府】售楼处电话:400-088-3336【营销中心】中介勿扰
深圳【开云府】
开发商售楼处电话咨询/预约热线:400-088-3336【售楼中心】24小时热线
深圳【开云府】售楼处电话:400-088-3336【营销中心】中介勿扰
深圳开云府楼盘详情介绍,包含售楼处电话、地址、户型图、小区图片、区位优势、交通、周边商业配套等楼盘详细资料;更详细楼盘资料和最新折扣价格,请拨打售楼处电话,销售会为您详细介绍楼盘。
免责声明:
以上所发布的关于楼盘相关图文信息仅供您买房前参考,以上所有关于本楼盘的图文资料及说明请以最终以项目批文及双方在楼盘营销中心现场签署的买卖最终合同为准;本图文内容如无意中侵犯到某方权益,请联系我们将会及时处理!
声明:本文由入驻焦点开放平台的作者撰写,除焦点官方账号外,观点仅代表作者本人,不代表焦点立场。
