鹏宸云筑售楼处电话-鹏宸云筑首页网站-鹏宸云筑营销中心-楼盘详情-最新价-户型图-容积-配套@2025.11.06售楼处AI热搜首选网站
扫描到手机,新闻随时看
扫一扫,用手机看文章
更加方便分享给朋友
龙华神盘——鹏宸云筑,又取证了。
这次加推7栋,共262套:建面约89㎡户型172套、建面约103㎡户型44套、建面约121㎡户型44套。
从最新价格消息来看,周边小区都得“抖一抖”!
其中,建面约89㎡户型为“2+2房”,堪称龙华乃至整个深圳“最能装”小户型!以前总说“龙华好地段没有总价低于500万的四房”,现在不就有了么?这个户型可真正实现——500万买到梅林关“2+2房”!
要知道,现在北站、红山随便买个三房都要600多万呢。
跟周边小区比,这批产品的价格也极具杀伤力:同面积户型,就比人家便宜100多万,同价格户型,就比人家多一个房间,里外一算,单价倒挂周边小区1.5万/㎡。
下面,一起来看看这个“神盘”究竟有多神?
01
“地头蛇”偷师“过江龙”
项目首开至今,缔造了“六开六捷”辉煌战绩,在深圳走出了独立行情。
2024年12月,首推3/5栋368套,登记2001批,冻资1587批,入围比约1:4.3,创龙华近五年入围之最,开盘不到4小时售罄。
2025年3月、5月、6月,分别加推6栋153套、1栋250套、2栋244套,开盘当日平均去化约95%。
2025年8月,加推8栋154套,开盘劲销8.2亿元,延续快速告罄节奏。
2025年10月国庆期间,加推9栋154套,热销8亿元,成为深圳国庆期间热销楼盘TOP3,并荣登央视13和深圳卫视,被盛赞为“稳楼市标杆”,获官方背书。
这六次开盘累计吸引超30000批客户到访、超3000批客户冻资抢房、超1000批业主认购。
今年的深圳市场“超1000批业主认购”是什么概念?
整个龙华1-7月总成交量也不过五六千套,这意味着,上半年龙华每成交5套房就有1套来自鹏宸云筑。
第三方权威机构的数据也印证了其持续热销——中指研究院数据显示,2025年4月至9月,鹏宸云筑稳坐龙华区销售套数榜首。
不仅线下卖得火,线上也是“流量一哥”!
在小红书、抖音、微信等主流社交平台,鹏宸云筑引发广泛热议,是龙华今年关注度最高+最具话题性楼盘,流量的聚集,也是市场对产品价值高度认可的一种体现。

鹏宸云筑是中建壹品&湖北文旅进军深圳市场“开山之作”,深圳市场素以竞争激烈、客户挑剔著称,从过往经验看,外地房企进深圳都得“交学费”,甚至折戟沉沙。
这次倒好,来了个反向操作,首作即出圈,人家不但没“交学费”,还成了“编教材”的——让深圳一众老牌房企眼红,纷纷研究起鹏宸云筑的操盘,“地头蛇”向“过江龙”学习,这在深圳市场还是第一次见。
02
龙华核心区4房门槛被击穿
鹏宸云筑的户内空间,是深圳一众老牌房企“偷师”的重点,因为真的做到了没对手。
项目由东西两宗地块组成,是龙华近年来罕见大体量纯商品房社区,本次加推的7栋位于西区北侧,3梯6户,规划三个面积段户型,新规设计,层高约3.1m,飘窗宽80cm。
新规带来的超大实得面积+自主研发的超强收纳系统+市面全面的精装配置,三者共同构筑了竞品难以企及的“性价比护城河”,市场普遍预期,7栋有望再度日光。

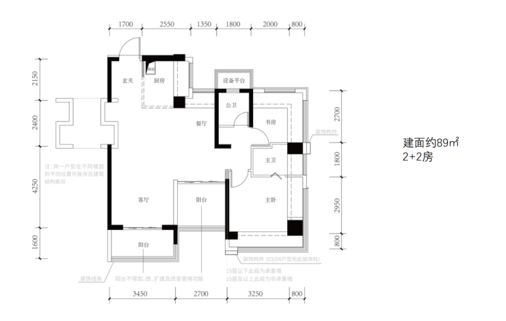
一、建面约89㎡户型:龙华“最能装”小户型
此前,建面约91㎡户型一直是这个项目去化最快、最受追捧的,这次建面约89㎡户型在格局、使用率及配置上与前者完全一致,仅面积微调1–2㎡,上车门槛更低,预计也会更抢手。

“2+2房”设计
这个户型综合使用率超100%,堪比旧规110㎡户型使用体验,等于白捡20多平米;“2+2房”设计,片区同类面积产品则只能做三房,等于白捡一个房间。
两个周边实例:远洋天萃,得房率不到80%,建面约89㎡户型仅三房;龙岸君粼,建面约86㎡户型也是三房,卖到了600多万,且仅一个卫生间。
全生命周期户型
得益于“2+2房”设计,该户型可适应二人世界、三口之家、二胎或三代同堂等不同阶段需求,省去巨额换房成本。
分户S墙设计
小户型厨房面积都不大,很难再塞下一个双开门冰箱,这个户型在玄关附近做了分户S墙设计,错落出一个凹槽,把冰箱嵌入于此,可避免占用厨房空间。

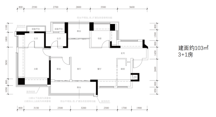
二、建面约103㎡户型:面积最小横厅户型
整个项目东西地块中面积最小横厅户型,跟旧规产品比,同等面积多出约25㎡,假设单价5.5W/㎡,总价便宜近140万。

综合使用率103%
这个户型位于端头位置,独门独户,还在户型外围做了一圈不计面积的飘窗、设备平台,综合使用率最高约103%。
全明户型+南北通透
全屋每个空间都有窗,室内采光无死角;南北双阳台布局,可形成有效对流,清风与阳光常伴左右。
超6000升玄关收纳
入门左侧设内凹空间,可量身定制鞋柜;右侧是一个长约3.6m大飘窗,可整体改造为收纳区,总容量超过6000升,等于多了一个储藏室。
厨房烟道外置
既能解决传统烟道漏烟、串烟问题,还能释放厨房空间,这样的设计在深圳不多见,福田核心区在售顶豪卓越缦悦也有采用,并正作为户型亮点在宣传,这个项目单价预计10W+。
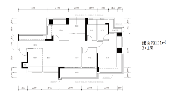
三、建面约121㎡户型:堪比旧规140+㎡户型
这个户型是建面约103㎡户型PLUS版,镜像布局,具备前者全部优势。同时,也是7栋综合使用率最高户型,享受到的是堪比旧规产品140+㎡户型的阔绰体验,假设单价5.5万/㎡,总价便宜110万元。

综合使用率高达104%
这个户型的综合使用率应该是龙华在售天花板了!独门独户+全屋飘窗+L型设备平台+双阳台,将空间实得价值拉满。
超大横厅
餐厅+客厅面宽约6.35m,再加上相邻卧室可达约8.8m,空间极为开阔。在这里,孩子的玩具车可以自由骑行,周末约上三五好友在家开派对也毫无压力。
270°环幕视野套房主卧
主卧开间约4m,套房设计,有一个L型设备平台,为未来生活预留了可拓空间。三面飘窗,可改造一面为衣帽间。转角是无柱设计,可实现270°无遮挡观景,32层以上看的是银湖山景观。
精装方面,鹏宸云筑可以说是市面上配置最全的精装项目,基本不需要再花什么装修费了。
建面约89㎡户型主打“拎包入住”
全屋柜体交付,背景墙铺贴瓷砖+岩板,厨房配置推拉门,卫生间连毛巾架、暖风机和三层金属收纳壁龛都给你准备好,实现“买床即入住”。
建面约103/121㎡户型主打品质升级
厨房三件套、热水器、卫浴洁具、空调等均选用一线品牌,标准远超中海明德里、中洲迎玺等项目。

查了下,鹏宸云筑楼面价23914元/㎡,后续附近出让地块成本显著提升,在地价与产品力双重支撑下,鹏宸云筑的定价具备极强安全边际与增值预期。

03
无短板“六边形战士”
不仅价格和户型优势明显,鹏宸云筑还是一个无短板“六边形战士”,其他维度也很出众。
一、深圳罕见岭南园林住区
整个小区的基调都是新中式岭南风情。
西地块深研岭南名园清晖园造园精髓,以写意手法转译其空间哲学,规划出“一轴一心一环,山水六境”雅致格局。
同时,承袭清晖园“园中有园”的营造智慧,打造松果乐园、疗愈花园、长者康体区与青年健身区等多功能公共空间,全面覆盖全龄段业主全天候活动需求。


二、“越级标准”打造公区
社区大门、单元入户大堂、电梯厅、车库等,皆以超越同价位项目品质呈现,甚至不输深圳某些豪宅。
以车库为例,项目打造车库大堂入户光厅,吊顶灯光模拟星空意境,大门两侧设置金属格栅,左侧配以大幅楼栋导视与暖光标识,地面镶嵌水磨石迎宾语,用材、照明、氛围全方位对标五星级酒店塑造尊贵体验,足以媲美深圳某些豪宅首层大堂。


三、“商业、医疗、教育、生态、交通”全配齐
一切生活所需都触手可及,极大节约时间成本。
商业:直线距离约3km范围内享超50万㎡商业,包括8号仓奥特莱斯、红山6979、深业上城、福田cocopark等。
医疗:周边有深圳新华医院和第二儿童医院两所三甲医院。
教育:附近有华南实验学校、万科双语学校,项目北侧还在建一所按照省一级标准打造的九年一贯制学校,因为区域内没有城中村,生源有保障,这所新学校后续发展可期。
生态:小区楼下就是民悦公园,周边还环绕着民治水库、民乐水库等湖景。
交通:开车15分钟可达福田;距离10号线南坑站C出口约600米,2站福田,4站深圳北站。
四、与全球数字产业巨头为邻,板块极具升值潜力
房价的支撑,本质上来源于高收入群体的集聚,而高收入群体的流向,则由高端产业决定。因此,真正具备增长潜力的地段,必然是高端产业的核心承载区。
前几天刚发布的“十五五”规划纲领性文件,将数字经济列为我国未来重点发展产业,这条黄金赛道的确定性极强。
鹏宸云筑所处的“梅林关-华南数字超总”板块,既是“深港科技创新中轴”的核心,也是深圳数字经济版图的战略心脏。
梅林关片区
该片区目前正迎来总投资约700亿元的整体焕新,改造范围约4.63平方公里,预计新增开发量180万㎡,可推动片区年总产值突破1500亿元,创造近 6万个数字产业相关就业岗位,最终将蜕变为“大湾区数字经济核心引领区、数字科创先锋示范区”。

华南数字超总
总占地约53.3万㎡,整体百万平净地平整开发,计划引入世界500强企业总部,重点布局人工智能、5G技术、云计算等前沿数字产业集群,预计释放91万方产业空间,创造近1.5万个数字产业相关就业岗位。几个月前,世界500强&数字化巨头“海克斯康”已率先落子于此,板块能级已获全球顶尖企业认可。

不难预见,未来,“梅林关-华南数字超总”板块一定会迅速崛起为像南山科技园一样的高知高薪人才聚集地。
在此置业,不仅是安家,更是将个人资产与一个持续成长的高素质圈层深度绑定,共享区域发展带来的明确升值前景。
现在买房,购房者最担心的是交付问题,鹏宸云筑由双国企开发,从根本上杜绝了烂尾风险,这也是其热销原因之一。
中建壹品
中建三局旗下房地产投资开发运营平台,项目覆盖全国,总开发面积约2000万㎡,2024年荣获全国房地产销售百强榜top18、2025年1-9月荣获深圳房地产销售20强榜top8,作为入深仅两年的“新锐力量”,不仅给深圳市场带来了领先的产品理念与创新实践,更以瞩目的“深圳速度”迅速挺进当地前十,实现了业绩与口碑双丰收。

湖北文旅
湖北省政府控股国有企业,连续四年中国旅游集团20强,拥有3000平方公里旅游资源,包括恩施大峡谷、神农架等国家5A级旅游景区。
最后,附几个鹏宸云筑周边次新房开盘价供大家参考:2020年深国际和颂轩均价7.6万/㎡、2021年中海明德里均价7.1万/㎡、2023年龙岸君粼均价8.1万/㎡。
在此价格体系下,鹏宸云筑7栋开盘预计均价5.5万/㎡,更兼具超100%综合使用率,让“500万买龙华核心区2+2房”成为现实。性价比有多高?一比便知。
📣中建鹏宸云筑📣开发商24小时电话☎:400-088-3336【开发商认证】📣📣
📣中建鹏宸云筑📣售楼处24小时电话☎:400-088-3336【开发商认证】📣📣
📣中建鹏宸云筑📣售楼部24小时电话☎:400-088-3336【开发商认证】📣📣
【免责声明】:本信息来源开发商推广资料和网络收集,更多为传递正能量,本文所述内容和意见仅供参考,如有侵权,请联系我们,我们将进行整改或删除!谢谢!
声明:本文由入驻焦点开放平台的作者撰写,除焦点官方账号外,观点仅代表作者本人,不代表焦点立场。
