深业世纪山谷售楼处电话(营销中心)深业世纪山谷_深业世纪山谷楼盘详情
扫描到手机,新闻随时看
扫一扫,用手机看文章
更加方便分享给朋友
深圳「深业世纪山谷」售楼部热线📞:400-088-3336
在售户型|剩余楼层|价格|折扣|预约看房
深业世纪山谷更多信息请致电📞:400-088-3336
到访售楼部需提前预约,暂不接受临时到访,看房请提前电话预约售楼部
项目介绍
【深业世纪山谷】是一座位于深圳的城市综合体,位于南山区沙河东路218号,占地面积约4.2万㎡,总建筑面积约39万㎡,一期容积率5.78、二期容积率6.63。该综合体集住宅、公寓、酒店、商业和办公等多种功能于一体,具备了完善的生活配套和商业服务。
整个项目分两期开发建设,其中:项目一期东地块包含1栋酒店+商务公寓、1栋保障房、2栋包含一、二单元的住宅;西地块包含2栋高约250米的超高层住宅,另有1栋约50层高的商务公寓。
前两次都是公寓,现在住宅首发!还是定位相当高端的纯大平层而且还是无敌景观视野,8梯3户,233㎡/280㎡配备两个独立电梯,386㎡双梯设计,实在任性!
项目附近有95万㎡大沙河生态长廊、200万㎡沙河+名商高尔夫生态、华侨城湿地公园、深圳湾滨海长廊,这些深圳最顶级的景观生态资源都在它的腹地之上。
最重要的是,目前深业世纪山谷项目是深湾中轴唯一在售的大平层住宅产品,十分稀缺。
交通配套
地铁:近地铁1号线白石洲站约680米,1站到达高新园,可换乘2/7/9/11四条轨道线路;规划中的20号线白石洲站和规划中的29号线(白石洲北站)就在楼下。
陆路:紧邻【沙河东路】与深圳湾总部基地紧密相连,自北向南串联起【京港澳高速】、【北环大道】、【深南大道】、【滨海大道】,纵向由【沙河西路】、【科苑路】共同构成四横三纵的一体快速路网;可直抵前海、宝中、福田、罗湖等深圳其他城市核心区。
教育配套
项目自带一所21班的幼儿园和南外教育集团的63班九年一贯制学校,可以跟住宅同步建成,现成的学校有(南外沙河小学)和(南外第二实验)。
商业配套
一公里内有益田假日广场、万象天地、京基百纳广场,车程约十分钟即可到达深圳湾睿印、欢乐海岸、深圳湾万象城大型商业。
休闲配套
北看塘朗山、南望深圳湾、西临大沙河生态长廊、高尔夫球场,东瞰华侨城绿地,周边还有大沙河公园、深圳湾公园、华侨城国家湿地公园、燕晗山郊野公园等四大生态公园环绕。
项目效果图
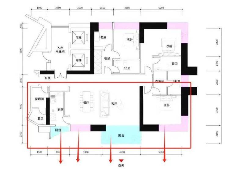
项目户型图
【约233㎡3+1房3卫】双梯入户,独立电梯厅,餐客大横厅贯通阳台,三面采光,主次卧尽享270°环幕视野,还有独立家政套间,西北朝向看名商和沙河高尔夫;
【
约280㎡4+1房4卫】双梯入户,独立电梯厅,阔绰横厅直连阳台,三面舒适采光,主次卧双套房,270°环幕视野,还有独立家政套间,西南朝向看城市景观,高层可看深圳湾海景;
【约386㎡4+1房4卫】双梯入户,独立电梯厅,阔绰横厅直连多功能空间,三面舒适采光,主次卧双套房,270°环幕视野,还有独立家政套间,西朝向看名商高尔夫和大河沙生态长廊。
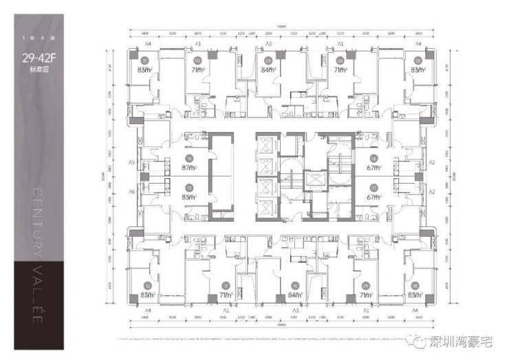
项目公寓户型图:
项目点评
优势:
①项目最大的亮点就是拥有双高尔夫(名商高尔夫和沙河高尔夫)头排无遮挡景观+深圳湾海景资源。西侧是大沙河生态长廊,南侧可以看到深圳湾海景。
②绝佳地段,项目位于深湾中轴线上华侨城传统豪宅区,华侨城片区少有大面积供应,是深圳的顶级豪宅片区,周边紧邻深圳湾超级总部基地、世界之窗、科技园。
劣势:
1、产品:使用率偏低导致得房率不足;
2、位置:属于华侨城非核心区域,靠近沙河西路,低楼层可能会有噪音。
综合评价:
住宅优缺点很明显,极致的景观,大的区位上来说,属于城市核心区域热点板块,但是又都属于板块内的边缘位置。从定位上,产品比较纯粹,定位上也是最高端的。
另外小户型公寓67--87平原单价8.6万,现打6折清盘,折后总价310--496万均价仅4.6万,而且70年产权通燃气带阳台、3.3米层高、民水民电、性价比超高!
深圳「深业世纪山谷」售楼部热线📞:400-088-3336
在售户型|剩余楼层|价格|折扣|预约看房
深业世纪山谷更多信息请致电📞:400-088-3336
到访售楼部需提前预约,暂不接受临时到访,看房请提前电话预约售楼部
免责声明:
以上所发布的关于楼盘相关图文信息仅供您买房前参考,以上所有关于本楼盘的图文资料及说明请以最终官方批文及双方在楼盘营销中心现场签署的买卖最终合同为准;本图文内容如无意中侵犯到某方权益,请联系我们将会及时处理。
声明:本文由入驻焦点开放平台的作者撰写,除焦点官方账号外,观点仅代表作者本人,不代表焦点立场。
