深圳汇城茗院(售楼处电话)汇城茗院售楼处_24小时电话|汇城茗院欢迎您-价格-户型图
扫描到手机,新闻随时看
扫一扫,用手机看文章
更加方便分享给朋友
深圳【汇城茗院】
汇城茗院售楼处电话:400-088-3336【看房请提前线上预约】
汇城茗院售楼处电话:400-088-3336【营销中心】_24小时电话
汇城茗院售楼处欢迎您_深圳汇城茗院售楼处最新详情/地址/户型/价格
项目具体汇城茗院位于南山西丽湖路与丽水路交汇处,靠近地铁7号线西丽湖站,占地2.69万㎡,建面5.5万㎡,包括4栋32层高层建筑和28套别墅,高+低搭配。
项目于2021年首次推出124套住宅房源,户型建面约120-195㎡,均价约8.47/㎡,位于1栋1单元和2栋1单元,当天售罄。
此次推出的房源同样是124套,户型建面均约为116㎡,备案均价约为8.98元/㎡,比上一批高约5000元/㎡,单价区间约为7.8-10.3万/㎡,总价区间约为912-1207万。

项目基础信息
占地:约2.69万㎡
建面:约5.5万㎡
主力产品:约116平四房㎡
容积率:2.055
总户数:380户
停车位:500个(含充电桩车位150个)
产权年限:70年(2017.7.31--2087.7.30)
物业管理费:5.6元/㎡
交楼时间:2023年4月(毛坯)已是现楼
梯户比:三梯四户(116平)此次推售2栋2单元

项目户型图
建面约116㎡ 3房2厅2卫(01户型)

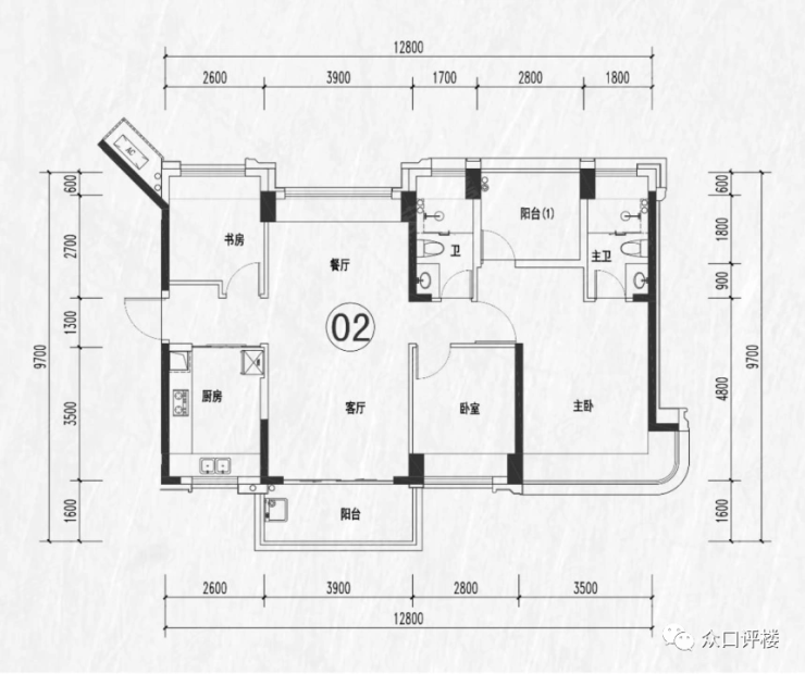
建面约116㎡ 3房2厅2卫(02户型)

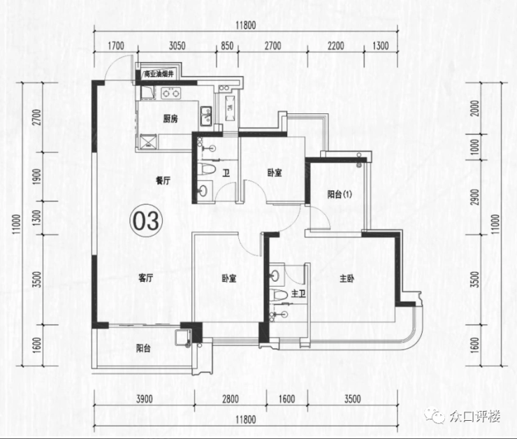
建面约116㎡ 3房2厅2卫(03户型)

建面约116㎡ 3房2厅2卫(04户型)

项目所处片区区域优势明显,受大沙河创新走廊、西丽湖国际科教城、西丽高铁新城、留仙洞总部基地辐射,四大核心引擎布局,打造湾区科创源头,是未来的区域创新中心和经济新增长极。
西丽湖国际科教城规划总面积57.1平方公里,聚集了清华、北大、南科大等一批国内外塔尖高校,盖姆石墨烯研究中心、内尔神经可塑性实验室等7个诺奖科学家实验室,以及鹏城实验室、深圳湾实验室2个省级实验室。

项目配套完备,益田假日里、云城万科里、塘朗城广场、宝能城环球汇等超30万㎡的醇熟商业配套;

麒麟山庄、西丽高尔夫俱乐部、大学城体育中心、西丽大沙河文体中心(规划)等高端休闲配套;深圳大学总医院、南方科技大学医院、中国医学科学院阜外医院深圳医院(孙逸仙心血管医院)等优质医疗配套。

项目交通十分便利,纵揽“两高三横四纵六轨道”立体交通,“两高”:深圳北站、西丽高铁站(规划);“三横四纵”:留仙大道、南坪快速、北环大道、侨城东路北延(规划)、塘朗山隧道、沙河东路北延(规划)、沙河西路;“六轨道”:地铁5号线、7号线、13号线(在建)、15号线(规划)、27号线(规划)、29号线(规划)。

项目享一湖三山,以西丽湖为引,与塘朗山、阳台山、麒麟山等超千万平自然生态资源互生,打造南山生态宜居范本。

建筑立面采用铝板幕墙及干挂石材,历久弥新;提升大堂铺装石材,入户电梯采用通力品牌,尊贵高效; 室内采用顶级系统门窗及中空Low-e玻璃,私密安静,打造的高品质人居美宅。
住宅及商业街铺采用新中式建筑风格:墙面是米黄色石材、金色铝板、槽钢、百叶以及玻璃辅以光滑挺立的鉴向线条,在细部处理上注意比例尺度的推敲;材质的虚实对比,色彩的和谐搭配,让建筑极富时代特征。
在立面造型的设计中强调整个社区的整体风格协调的统一的同时,利用住宅平面凹凸变化来塑造形体的前后层次的变化,利用凸窗、窗台等开阔住户的视内视野,利用屋面的楼梯间、电梯间作一立面造型。虚与实,水平与垂直等的对比手法,体现新世纪居住小区的时代气息。

深圳【汇城茗院】
汇城茗院售楼处电话:400-088-3336【看房请提前线上预约】
汇城茗院售楼处电话:400-088-3336【营销中心】_24小时电话
汇城茗院售楼处欢迎您_深圳汇城茗院售楼处最新详情/地址/户型/价格
免责提示:(1)本文有关项目的信息来源于网络,具体项目信息(包括规划建设指标、建造工艺、户型图、交付标准、房源价格、优惠信息等)应以开发商最终签署的《商品房买卖合同》及相关文件约定为准。(2)文章内图片仅供读者参考。(3)我们所转载的所有文章、图片、音频视频文件等资料版权归版权所有人所有,因非原创文章及图片等内容无法一一和版权者联系,如原作者或编辑认为作品不宜上网供大家浏览,或不应无偿使用,请及时通知我们,本网页如无意中侵犯了媒体或个人的知识产权,请来电告之,我们立即予以删除。
声明:本文由入驻焦点开放平台的作者撰写,除焦点官方账号外,观点仅代表作者本人,不代表焦点立场。
