万科未来之光售楼处电话(万科未来之光)首页网站-万科未来之光营销中心欢迎您-楼盘详情-最新价格-户型图-容积率#售楼处中心
扫描到手机,新闻随时看
扫一扫,用手机看文章
更加方便分享给朋友
深圳【万科未来之光】
万科未来之光售楼处电话:400 088 3336【看房请提前线上预约】
户型图丨楼盘详情丨折扣价格丨最新房源丨周边配套丨
开发商售楼处直销_欢迎来电预约尊享内部折扣_欢迎预约品鉴品鉴〢
万科未来之光售楼处电话400-088-3336万科未来之光【售楼中心】万科未来之光楼盘详情
万科未来之光售楼处电话400-088-3336【营销中心】
「万科未来之光」项目位于宝安区新安街道,所处片区为宝安尖岗山豪宅区,处于宝安中心区,南山科技园,西丽留仙洞中间位置,地理优越,项目依山而建,周边有尖岗山公园,宝安公园环绕,整体生态环境优越,周边是深圳有名的豪宅:曦城别墅区,中海九号公馆等。

项目用地前身为宝安新安A012-0112拍卖地,由万科+深圳安居集团以70.51亿竞得。项目初始建设的保障性租赁住房面积为1.91万平,按竞拍要求,项目将配套建设一所12班幼儿园(含3班幼托),占此外还需配套社区体育活动场地。
【开发商】:深圳市安万置业有限公司
【物业公司】:深圳市万科物业服务有限公司
【物业管理费】:6.8元/㎡
【总占地面积】:约7.4万㎡
【总建筑面积】:约21.5万㎡
【容积率】:2.91
【绿化率】:35%
【产权年限】:2022.6-2092.6年(70年)
【总户数】:2466户,可售商品房1699套
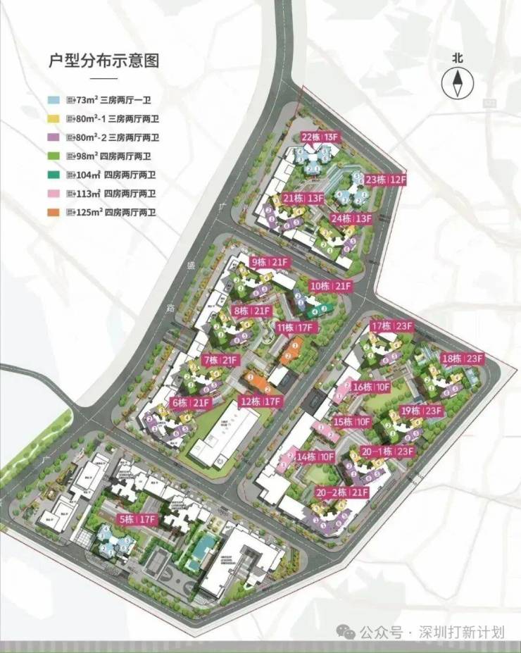
【总栋数及层高】:23栋,10/12/13/17/19/20/21/23F
【梯户比】:2梯6户/1梯2户
【停车位】:2060个
【车位占比】:1:0.83
【交房时间】:2025年12月(3期,3号地块)
【交付标准】:精装修

万科未来之光家园,项目共分4个地块开发,占地面积约7.4万㎡,总建筑面积约21.5万㎡,容积率2.91,共由23栋10-23层高住宅组成,配建有1所幼儿园,总规划2466户(商品房1699户,公租房257户,自持租赁住房510户),规划停车位2060个(占比1:0.83)。
6号地块:1栋是商业,2/3栋是公租房19F,4栋是自持租赁住宅20F,5栋商品房18F。
2号地块:6/7/8/9/10栋商品房21F,11/12栋商品房17F,13栋是幼儿园。
3号地块:14/15/16栋商品房10F,17/18/19栋商品房23F,20栋1单元商品房23F,20栋2单元商品房21F。
1号地块:21/22/24栋商品房13F,23栋商品房12F。
平面图及户型图





01
交通配套
距离最近的地铁兴东站(5号线)步行约2.0公里,目前来看利用地铁通勤较远,小区入住后会有接驳车到地铁站,来解决最后1公里的通勤问题。但真正解决地铁出行不便,则要到前南环线(15号线)宝安公园站开通才能解决,届时900米到地铁站,步行约15分钟,沿线可抵前海,大铲湾,南山中心,宝安核心区
自驾出行方面,项目本身靠近经京港澳高速道路入口,周围的主干道还有南光高速和创业路等,去南山科技园不到20分钟,去福田车公庙不用半小时

02
商业配套
万科未来之光自带有1万㎡商业街区,在3公里范围内有万达广场,中洲购物中心,海雅缤纷城,沃尔玛等大型商业,6公里范围内有前海壹方城,欢乐海岸等大规模shopping mall。

03
教育配套
项目内自建幼儿园,3km内南方科技大学附属中学宝安学校(在建中)、宝安中学(集团)实验学校、新安中学(集团)外国语学校、曦城协同学校等学府汇聚
其中宝安中学(集团)实验学校,是宝安中学集团分校,宝安中学是宝安区当之无愧的龙头,同一集团的实验学校自18年招生以来也是稳占深圳学校第二梯队,在教育上是一个比较好的兜底
南方科技大学附属中学宝安学校 今年9月开学在即,本身是双一流大学附属分校教学质量还是值得期待的

04
医疗配套
南方医科大学深圳医院则距离项目较近,宝安区比较有名的三甲医院有宝安中医院、宝安人民医院、南方医科大学深圳医地铁1号线宝体站附近有宝安区妇幼保健院,基本能满足周边医疗配套需求。

05
休闲配套
万科未来之光所处的尖岗山板块是深圳有名的豪宅板块,周边环境优美,小区紧挨57公顷的尖岗山公园,距离约700米还有72.5公顷的宝安公园。

优点/SUMMARY

1、生态环境好,北面【尖岗山公园】和【新世界别墅区】、东面【大井 山】、南面【宝安公园】、西面【曦城南别墅区
2、万科物业口碑不错
3、容积率低(2.9)
4、项目属于宝安尖岗山片区,开车到宝安中心、前海、南山科技园都是在30分钟以内,地理位置不算偏远
5、学校不错,周边约3.5KM内,有【宝安中学 (集团)实验学校(九年 制】【新安中学(集团)外国语学校】【南方科技大学附属中学】、【灵芝小学】【宝民小学】
6、户型设计不错,别的开发商80平这个面积段只能做三房一卫,万科做到了三房两卫,功能性立马提升
不足/SUMMARY
1、距离地铁有一定距离,约1.2.km才到5号线【兴东站】
2、周边商业零散,缺乏高端大型商业,居住氛围不浓厚
3、尖岗山上有高压电线,至于高压线辐射问题说法不一
4、1.2公里有合坳背墓园
5、户型设计方面没有舒适大三房例如89平这个刚需最爱的面积段,73-80不太适合二胎家庭,98平的总价又会稍高,感觉户型分布稍显尴尬
总结/SUMMARY
1、户型设计,73㎡可做三房一卫,80㎡做三房两卫,98㎡做四房两卫,这面积段和户型一看在深圳项目里是很稀缺的,看似面积小实际上因为小高层的设计,使用率是不输于市面上的其他产品的。
2、教育资源,本项目在宝安中学集团的实验学校和南科大附属宝安学校的书包范围内,教育资源是很丰富的
3、万科未来之光属于尖岗山豪宅区,主打的就是低密度,高绿化率,容积率只有2.91,空气质量好,并且与繁华地带洪浪北有一个地铁站的距离,安静程度高,
4、距离地铁有一定距离,约1.2.km才到5号线兴东站,还有规划中的宝安公园站,片区道路只有一条,未来居住的人多拥堵情况可能会更严重。部分楼栋靠近高压电线,需要注意。楼栋之间的楼间距比较窄周边商业零散,缺乏高端大型商业,居住氛围不浓厚(周边新房没交房)
深圳【万科未来之光】
万科未来之光售楼处电话:400 088 3336【看房请提前线上预约】
户型图丨楼盘详情丨折扣价格丨最新房源丨周边配套丨
开发商售楼处直销_欢迎来电预约尊享内部折扣_欢迎预约品鉴品鉴〢
万科未来之光售楼处电话400-088-3336万科未来之光【售楼中心】万科未来之光楼盘详情
万科未来之光售楼处电话400-088-3336【营销中心】
免责声明:我们致力于保护作者版权,转载或引用仅为传播楼盘更多信息,本文部分图片可能来源于网络,无法核实其真实出处,如涉及侵权请联系我们并及时配合处理。
声明:本文由入驻焦点开放平台的作者撰写,除焦点官方账号外,观点仅代表作者本人,不代表焦点立场。
