汉京金融中心售楼处电话(售楼中心地址)营销中心首页网站→24小时热线电话
扫描到手机,新闻随时看
扫一扫,用手机看文章
更加方便分享给朋友
深圳南山汉京金融中心售楼中心丨汉京金融中心项目介绍
汉京金融中心开发商售楼热线:400-088-3336(营销中心)
汉京金融中心售楼中心 | 欢迎来电咨询 | 请提前预约登记看房 |
深圳汉京金融中心预约看房电话:400-088-3336 汉京金融中心售楼中心恭迎品鉴

深圳汉京金融中心位于深圳市南山高新科技园区,临深南大道北侧,毗邻腾讯大厦,建筑高度359米,是国内最高的全钢结构建筑,总用钢量接近5万吨。其钢结构复杂,蝶形节点达347个,属世界首例。
汉京中心,汉京集团未来的总部大厦,将是深南大道上崛起的一座近八十层“新地标建筑”。汉京金融中心预约看房电话:400-088-3336 汉京金融中心售楼中心恭迎品鉴,项目位于南山高新区,临深南大道北侧,项目总占地面积11017平,容积率10,建筑覆盖率60%,用地性质为办公与商业,其中办公面积100170 平,商业面积10000平,使用年限50年,建筑高度为320米,标准层层净高将达3m以上。
占地面积:约1.1万平方米
总建筑面积:约16.7万平方米
容积率:10.0
物业形态:超甲级写字楼
建筑高度:350米
项目位置:深圳市南山区高新片区深南大道与科技中一道交汇处
【汉京中心基础数据】
项目名称:汉京中心
投资单位:汉京集团
开发商:深圳市罗兰斯宝物业发展有限公司
项目设计:美国墨菲西斯公司——汤姆梅恩先生
玻璃幕墙高度:350m
占地:11016.94㎡
建面:166451.66㎡
在售楼层:仅33层(散售);53、54、56-58层(整售)
标准层面积:散售:227.4㎡-1497.17㎡;整售:1375㎡-1565㎡
建筑层数:61层
电梯数:低、中区各5部,高、超高区各6部,消防货梯2部,vip1部,合计23部(进口日立电梯)。
大堂高度:四层大堂通高30米(双大堂,高端尊贵)
办公层高:4.5m
车位:852个
产权年限:40年(2013年-2053年)
产权性质:写字楼
交楼时间:现楼
交楼标准:毛坯
物业公司:汉京物业
物业顾问:仲量联行
空调系统:中央空调(全空气变风量系统、自控VAV)
单价:8-8.6万(价格面议)
科技园腹地!高新企业云集!深圳唯一在售5A甲级写字楼!汉京金融中心!均价8.8万!面积386平-568平,1552平-1595平!个人企业均可购买!
汉京中心由莫非西斯(Morphosis)建筑师事务所提供设计方案,主创设计师为法国巴黎拉德芳斯“灯之塔”设计师,2005年普利兹克建筑奖获得者汤姆·梅恩先生。
汤姆梅恩先生所设计的汉京中心,整体雕塑感极强,作为在深圳大道上未来的创意地标,具有非常高的识别度及昭示性。
与传统塔楼的设计不同,汉京中心大厦将零售商业空间和私人办公空间通过折叠的钢结构合并起来,一系列的公共空中花园将也租客联系起来。让阳光照射入中庭,也是该建筑的核心。
汉京中心大厦反思传统商业办公楼设计,它改进了流线、社会空间和工作空间,从而提供灵活的办公空间。汉京中心的商业定位为高端零售商业,主要服务来自全球各地的专业人士和南山区居民。
作为深南大道上又一重要建筑,汉京中心大厦重新定义了该区域的天际线。它利用折角优美地将公共部分和商业部分合并起来。作为高新技术产业领域的新标杆,汉克中心大厦设计是新兴技术的孵化器,为日益增长办公空间提供更多空间变革的需求。
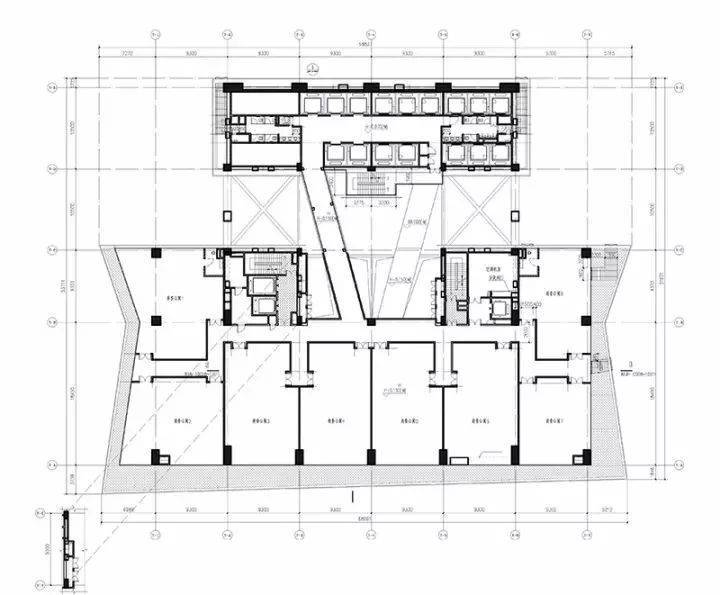
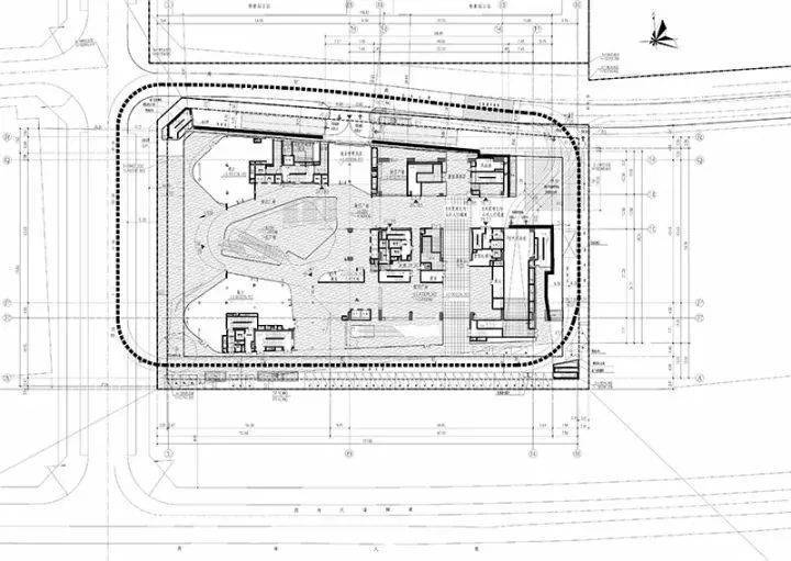
技术图纸
▲首层平面图
▲裙房二层平面
▲塔楼平面图
▲立面图
▲剖面图
汉京金融中心开发商售楼热线:400-088-3336(营销中心)
汉京金融中心售楼中心 | 欢迎来电咨询 | 请提前预约登记看房 |
深圳汉京金融中心预约看房电话:400-088-3336 汉京金融中心售楼中心恭迎品鉴
免责声明:部分图片来源网络,如有侵权请联系后台,我们会第一时间删除。本文资料仅为要约邀请,部分图片为示意性图片,一切图文资料、规划设计仅供参考识别或分享交流之用,不构成合同内容,具体内容均以政府最终批准文件及双方签订的买卖合同为准。
声明:本文由入驻焦点开放平台的作者撰写,除焦点官方账号外,观点仅代表作者本人,不代表焦点立场。
