望海玥售楼处电话(售楼中心地址)营销中心首页网站→24小时热线电话
扫描到手机,新闻随时看
扫一扫,用手机看文章
更加方便分享给朋友
深圳南山【望海玥】
望海玥售楼处电话:400-088-3336(营销中心)
望海玥售楼处电话:400-088-3336【营销中心】_24小时电话
户型图丨楼盘详情丨折扣价格丨最新房源丨周边配套丨
欢迎来电咨询〢尊享内部优惠服务〢预约案场内部销售人员〢
专业热情一对一服务!为您安排楼盘内场专业销售人员一对一接待!让你买的放心住的舒心!

【望海玥】的地理位置不错,临近大家熟知的「半岛城邦」,距离年底入市的王炸「中信元湾府」也很近,基本上享受到蛇口滨海公共配套,譬如歌剧院、渔人码头、滨海长廊等。
地段特点
①位于蛇口板块,拥有滨海公共配套和海景资源;
② 户型偏刚需,上车门槛不高;
③ 临近「半岛城邦」/「新玺」生活圈,配建华润商业;
④ 临近蛇口渔港升级改造,连接深圳湾-蛇口滨海长廊;
⑤ 周边是蛇口老街区,生活气息浓厚,非常接地气。
交通出行:
招商渔二村旧改地块在蛇口老街、湾厦路和望海路交汇处。步行220米左右就能到达最近的2号线东角头地铁站。
东角头地铁站是13号线二期(南延)站点之一,该线路共设车站3座,分别为东角头站、歌剧院站、日出剧场站。
商业配套:
项目本身规划有商业体积,加上周边社区带有底层商业,整体上满足日常购物需求,片区内有多个大型商超,如海上世界、K11、宝能·all city购物中心、City花园城、海岸城购物中心等商圈,但从项目前往这些商圈需要自驾或搭乘地铁,花费时间在15-20分钟左右。
文娱配套:步行可抵达深圳湾公园蛇口段,还有深圳歌剧院,海上世界以及海上世界文艺中心,妥妥的豪宅配套。
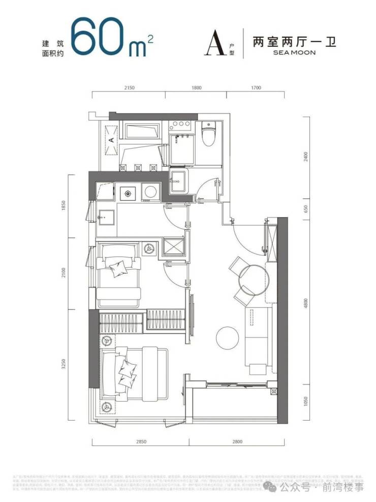
户型鉴赏
“望海玥”项目首批389套公寓,35层高,户型36-60㎡,1-2房,精装修。
深圳南山【望海玥】
望海玥售楼处电话:400-088-3336(营销中心)
望海玥售楼处电话:400-088-3336【营销中心】_24小时电话
免责声明:以上观点及数据仅供参考,不作为销售依据。面积为建筑面积约数,具体以双方签订合同为准。部分图片来源于网络,版权归原作者所有。如有侵权,请联系后台删除。
声明:本文由入驻焦点开放平台的作者撰写,除焦点官方账号外,观点仅代表作者本人,不代表焦点立场。
