特发学府朗园售楼处电话(2024售楼处特价房)特发学府朗园中秋国庆年末破底价
扫描到手机,新闻随时看
扫一扫,用手机看文章
更加方便分享给朋友
深圳特发学府朗园是深圳市光明区的一个热门楼盘,以下为其最新消息:
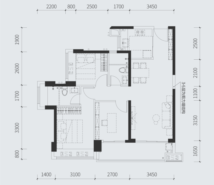
户型面积:提供建面约88㎡、97㎡、114㎡、143㎡的3至5房户型,满足不同家庭结构的需求。
房价:房价均价约为3.84万/m²,总价范围在338万至630万之间,具体根据户型和楼层等因素有所不同。
销控情况:项目自推出以来,销售情况良好,已销控约300套房源,整体去化率约40%。
交楼时间:预计于2025年12月交楼,交楼标准为简装。
营销中心位置:位于深圳市光明区李松萌炮台路与志康路交汇处西南侧,项目现场设有营销中心,提供一对一专属VIP看房服务。
如有购房意向,建议直接联系特发学府朗园营销中心,了解更多详细信息和最新优惠。
深圳特发学府朗园开发商售楼处电话: 400-088-3336 预约来访下定当天更享折上折!!
龙岗特发学府朗园开发商售楼中心热线: 400-088-3336(官方)【VIP贵宾专线】
➤➤〢开发商售楼中心直销〢欢迎来电咨询〢安全通话隐藏真实号码
温馨提示:开发商售楼中心团购〢预约可享内部优惠〢匠心钜制-恭迎品鉴〢
特发学府朗园深度测评报告
一、引言:光明新区的崛起与特发学府朗园的独特魅力
在深圳这座日新月异的城市中,光明新区以其独特的科技底蕴与自然风光并存的特质,逐渐成为人们心中的宜居之地。随着科技产业的蓬勃发展,光明不仅在经济上展现出强劲的增长势头,更在文化生活、生态环境及基础设施建设上实现了质的飞跃。特发学府朗园,作为光明新区内一颗璀璨的明珠,以其稀缺的五房大平层设计,为追求高品质生活的家庭提供了理想的选择。
二、户型设计:空间尺度的艺术

特发学府朗园此次推出的143平四房两厅户型,虽名义上为四房,实则通过精妙的设计,将一间卧室空间融入客厅,打造出前所未有的大尺度居住体验。这一创新设计,不仅让客厅成为家庭活动的中心舞台,其近7米宽的阳台更是将室外的自然风光无限延伸至室内,无论是日常晾晒还是休闲小憩,都能在此找到属于自己的小天地。阳台的尺度之大,在光明乃至整个深圳的同类产品中均属罕见,足以满足现代家庭对于生活品质与空间感的双重追求。
建面约88㎡三房两厅两卫

建面约97㎡三房两厅两卫

建面约114㎡四房两厅两卫


建面约143㎡五房两厅两卫

三、空间利用与功能布局
该户型在空间利用上同样展现出极高的智慧。全屋共设6个橱窗,极大地提升了空间的通透性与实用性。厨房设计尤为亮眼,开发商巧妙地将烟道外置,释放出更多宝贵的操作空间,使得原本就宽敞的厨房能够轻松升级为超大的U型厨房,满足家庭烹饪的各种需求。此外,户型方正,承重墙少,为家庭未来的灵活布局提供了无限可能,无论是随着孩子的成长调整房间数量,还是根据家庭成员的喜好重新规划空间,都能轻松实现,真正做到了全生命周期的居住体验。
四、主卧套间:奢华与实用的完美结合

主卧作为家庭中的私密领地,其设计同样不容忽视。特发学府朗园的主卧采用豪华套间设计,不仅配备了独立的卫生间,还拥有一整排衣柜,为居住者提供了充足的储物空间。更为贴心的是,衣柜后方并非承重墙,稍作调整即可打造出一个步入式衣帽间,进一步提升了居住的舒适度和便利性。这样的设计,无疑是对高品质生活追求的最好诠释。
五、项目配套:国企背书,未来可期
除了卓越的户型设计,特发学府朗园在项目配套上也同样令人瞩目。作为特发集团倾力打造的项目,其国企背景为项目的品质与交付提供了坚实的保障。目前项目已封顶,购房者无需担心烂尾风险,安心等待美好家园的落成。此外,项目周边交通便捷,紧邻投资300亿打造的毛洲河景观带及200米距离的13号线地铁站,无论是日常出行还是周末出游都能轻松应对。更令人期待的是,项目周边还将迎来全国足球赛事最高标准的足球赛场——全运会足球赛场,这一大型赛事的举办将全面拉动区域的发展,为项目带来无限升值潜力。
六、总结与展望:特发学府朗园,理想生活的典范
综上所述,特发学府朗园凭借其独特的户型设计、卓越的空间利用、奢华的主卧套间以及完善的项目配套,在光明新区乃至整个深圳楼市中脱颖而出,成为追求高品质生活的家庭不可多得的选择。在这里,你可以享受到大尺度空间带来的舒适与自由,可以感受到国企品牌带来的安心与保障,更可以预见未来区域发展的无限可能。特发学府朗园,不仅是一个居住的空间,更是一种理想生活的典范,等待着每一位懂得欣赏的你来共同见证与拥有。

深圳特发学府朗园开发商售楼处电话: 400-088-3336 预约来访下定当天更享折上折!!
龙岗特发学府朗园开发商售楼中心热线: 400-088-3336(官方)【VIP贵宾专线】
➤➤〢开发商售楼中心直销〢欢迎来电咨询〢安全通话隐藏真实号码
温馨提示:开发商售楼中心团购〢预约可享内部优惠〢匠心钜制-恭迎品鉴〢
本广告仅为邀约邀请,图片及文字等仅供参考,项目周边配套、市政设施等最终以政府部门规划建设为准;买卖双方的权利与义务以最终签署的《商品房买卖合同》及补充协议约定为准。
声明:本文由入驻焦点开放平台的作者撰写,除焦点官方账号外,观点仅代表作者本人,不代表焦点立场。
