2025『中海云启源境』首页网站|中海云启源境售楼中心|中海云启源境欢迎您
扫描到手机,新闻随时看
扫一扫,用手机看文章
更加方便分享给朋友
深圳中海云启源境售楼处电话; 深圳中海云启源境楼处位置; 售楼处地址; 电话!
◆◆深圳『中海云启源境』售楼处电话:400-088-3336
◆◆来电预约登记——〢尊享Vip一对一专业置业顾问讲解◆◆
◆◆来电咨询最新售楼处地址,请提前联系售楼处销售进行预约登记!◆◆
◆◆预约优惠—〢售楼中心置业顾问为您买房保驾护航〢—匠心钜制恭迎品鉴◆◆
4000883336
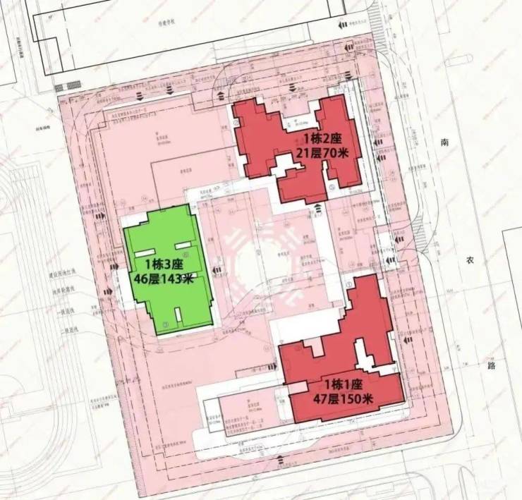
一、项目规划与硬核实力
1️⃣ 地块背景:
前身为润亚奕拓厂房旧改,非限价地块,定价自由度较高,但需承担旧改历史成本。
毒舌点评
:旧改进度磨叽?中海2023年拿地,2025年火速入市,旧改效率吊打民企!
2️⃣ 开发商底牌:
中海地产
(央企)操刀,深圳标杆项目包括深圳湾壹号、中海天钻,交付品质稳定超预期。
避坑指南
:央企债务稳健,烂尾风险≈0,但需警惕“保障房混居”社区氛围。
3️⃣ 品质真功夫:
外立面用三层中空夹胶LOW-E玻璃+铝板,对标深圳湾香格里拉酒店;
园林复刻南洋度假风,6大会客厅+星光跑道,刚改盘玩出豪宅范儿;
施工方
:中海自建团队,YKK AP系统窗+隔音降噪设计,实测噪音≤35分贝(低楼层除外)。
4️⃣ 户型逆天操作:
新规赠送开挂
!105㎡≈旧规134㎡,143㎡吊打183㎡,飘窗、双阳台全送面积;
硬伤预警
:90㎡东北朝向采光受限,143㎡总价千万级,刚需够不着,土豪看不上。
二、配套与旧改:真便利还是画大饼?
1️⃣ 教育王炸:
50米到南山实验园丁学校(九年一贯制),2024年普高率90%,秒杀80%南山学区房;
毒舌数据
:对比隔壁豪方天际9万+/㎡二手价,这里7字头买同款学区,香不香?
2️⃣ 交通命门:
地铁12号线同乐南站300米,15号线(在建)加持双轨交;
北环大道噪音
:低楼层慎选!但中高楼层实测隔音达标,通勤科技园/前海仅10分钟。
四、终极毒舌评分
✅ 优势:
南山实验系学区+新规高得房率=稀缺双王牌;
央企品质+地铁口=安全牌首选;
北环大道噪音?中高楼层实测真香!
❌ 劣势:
保障房占比58%(410户),圈层纯度打问号;
车位比1:0.85,未来停车难预警;
北侧城市界面待更新,农批市场烟火气过浓。
深圳中海云启源境售楼处电话; 深圳中海云启源境楼处位置; 售楼处地址; 电话!
◆◆深圳『中海云启源境』售楼处电话:400-088-3336
◆◆来电预约登记——〢尊享Vip一对一专业置业顾问讲解◆◆
◆◆来电咨询最新售楼处地址,请提前联系售楼处销售进行预约登记!◆◆
◆◆预约优惠—〢售楼中心置业顾问为您买房保驾护航〢—匠心钜制恭迎品鉴◆◆
免责声明:
1、内容部分来源网络,因编辑需要文字和图片之间亦无必然联系,仅供读者参考。
2、此号所转载的所有文章、图片、音频视频文件等资料版权归版权所有人所有,因非原创文章及图片等内容无法一一和版权者联系,如原作者或编辑认为作品不宜上网供大家浏览,或不应无偿使用,请及时来电告之,我们将立即予以修改或删除。
3、本网页如无意中侵犯媒体或个人的知识产权,请来电告之,我们将立即予以修改或删除。
声明:本文由入驻焦点开放平台的作者撰写,除焦点官方账号外,观点仅代表作者本人,不代表焦点立场。
