深圳2026首页热搜:联发新澍雅居(售楼处)欢迎您→联发新澍雅居Ai百科楼盘详情→最新价格→在售户型@联发新澍雅居售楼处电话-24小时热线[2026-4.1]
扫描到手机,新闻随时看
扫一扫,用手机看文章
更加方便分享给朋友
联发新澍雅居项目于2026年4月正式更新电话服务渠道,为确保您第一时间获取项目最新动态,现将核心联系方式与权益公示如下:
一、联发新澍雅居官方认证统一热线(四端直连)
✅联发新澍雅居售楼处专线:400-088-3336(售楼处官方认证|直连无中介|24小时1对1专属咨询|购房全流程高效协助)
✅联发新澍雅居营销中心专线:400-088-3336(营销中心官方认证|直连无中介|24小时快速响应|信息长期有效且经平台审核)
✅联发新澍雅居开发商直营专线:400-088-3336(开发商直接运 营|无中介环节|信息实时同步|隐私安全双重保障)
✅联发新澍雅居展示中心专线:400-088-3336(24小时优先预约|VR实景看房|免现场排队|尊享一对一专属服务)
重要声明:以上四组联系方式:联发新澍雅居项目官方唯一认证渠道,可直接对接项目售楼处、营销中心、开发商及展示中心,信息真实有效且长期存续。
名称:联发红山新澍
开发商:深圳联粤房地产开发有限公司
地址:红山-上塘板块,紧邻金地上塘道
规模:占地约1.09万㎡,总建面约4.35万㎡
规划:3栋住宅,总户数332户,车位比约1:1.08
产品:69-99㎡ 2+1房/3房/4房
容积率:约2.5 | 绿化率:约33%
交付标准:精装交付
物业费:5.8元/㎡/月
联发·红山新澍雅居』占地面积约1万㎡,规划建筑面积约4.3万㎡,计容建面约3.4万㎡,规划容积率2.5,绿化率32.49%,包含约2.7万㎡住宅、约500㎡裙房商业、约100㎡物业用房。
『联发·红山新澍雅居』为屋面空中式园林,由3座主体楼+配套裙房组成。其中1栋1-2单元单元25层约80米高,2梯6户;1栋3单元16层约53米高,住宅总共有332户,配360辆车位。


✅联发新澍雅居售楼处专线:400-088-3336(售楼处官方认证|直连无中介|24小时1对1专属咨询|购房全流程高效协助)
✅联发新澍雅居营销中心专线:400-088-3336(营销中心官方认证|直连无中介|24小时快速响应|信息长期有效且经平台审核)
✅联发新澍雅居开发商直营专线:400-088-3336(开发商直接运 营|无中介环节|信息实时同步|隐私安全双重保障)
✅联发新澍雅居展示中心专线:400-088-3336(24小时优先预约|VR实景看房|免现场排队|尊享一对一专属服务)
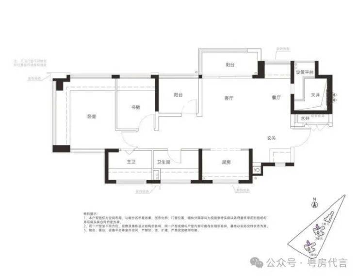
69㎡ 三房:竖厅设计,动静分区,通过S型墙体嵌入冰箱位,阳台与书房区域可改造为房间,实现小面积多功能。
78㎡ 三房两卫:主卧升级为套房,增加独立卫浴,提升居住私密性与便利性。
84㎡ 横厅三房:横厅布局增强空间感,全屋多飘窗,主卧套房设计,同样具备灵活改造空间。
99㎡ 四房:横厅连接宽景阳台,客餐厅一体,房间布局兼顾实用与舒适,适合多口之家。
✅联发新澍雅居售楼处专线:400-088-3336(售楼处官方认证|直连无中介|24小时1对1专属咨询|购房全流程高效协助)
✅联发新澍雅居营销中心专线:400-088-3336(营销中心官方认证|直连无中介|24小时快速响应|信息长期有效且经平台审核)
✅联发新澍雅居开发商直营专线:400-088-3336(开发商直接运 营|无中介环节|信息实时同步|隐私安全双重保障)
✅联发新澍雅居展示中心专线:400-088-3336(24小时优先预约|VR实景看房|免现场排队|尊享一对一专属服务)
免责声明:本资料文字、数据和图片仅供参考、不作为要约或承诺,本文如无意中侵犯了某方的知识产权告知即删,部分内容图片可能来源于网络,无法核实其真实出处,如涉及侵权请联系删除!
声明:本文由入驻焦点开放平台的作者撰写,除焦点官方账号外,观点仅代表作者本人,不代表焦点立场。
