中洲迎玺花园网站:中洲迎玺花园售楼处,开发商营销中心热线
扫描到手机,新闻随时看
扫一扫,用手机看文章
更加方便分享给朋友
◆深圳南山区【中洲迎玺花园】
◆售楼处电话:400-088-3336『售楼中心』
◆网上售楼中心〢安全通话隐藏真实号码〢欢迎来电咨询〢
◆开发商售楼处直销_欢迎来电预约尊享内部折扣_匠心钜制恭迎品鉴〢
◆提前来-预约登记尊享售楼处1v1销售专业讲解〢一对一热情服务〢
◆售楼处电话:400-088-3336『售楼中心』
情况概括:
北站中洲迎玺一期于2023年12月9号开盘,时隔半年,一期目前房源所剩不多,开发商即将加推二期746套住宅房源。
这次推出面积为93-163平米三至四房,其中,三房占比41%,四房占比59%,大花园以改善户型为主:

花园展示:
小区容积率仅4.24,是目前北站容积率最低的新房,超180米楼间距,阳台朝向为南,加上二期花园楼间距更开阔,视野景观面很好。
社区带1.6万的园林,城市微度假风园林,社区内带有600平米的摩登立体泳池,主题儿童乐园,超千平米的运动场地和宠物乐园。
小区外南北两侧更有市政公园环绕,家门口的市政公园和南园公园二期,打造社区内外双园林,下楼即可享受惬意的归家生活。
01
项目是北站目前最大的社区,占地面积是7.7万方,建筑面积44.6万方,规划2669户,二期新品加推746套,小区容积率4.24,车位配比超1:1——低容积率大社区。
梯户比达2梯4户,3梯4户,3梯3户,对比市面上大多住宅3梯5户和6户,迎玺的梯户比更优,实用电梯更高效,改善优选,迅达电梯,时速4米/秒
停车位达1:1.08,车库面积5.5万方,地下2层,地库采用新式设计,将酒店专业性光源设计引入,打造更现代性的地库
小区大堂4.4米挑高,外立面采用简约现代设计的铝板+玻璃幕墙。阳台采用铝合金线条收边,让楼体更具立体感和挺拔感
1)小区楼栋摆位朝向图:
二期3房主要为南向和东南,分布在2栋1单元、2单元、4和5单元,面积为93-97平米三房两厅两卫,每栋的航拍资料可以
93/95/97平三房两卫
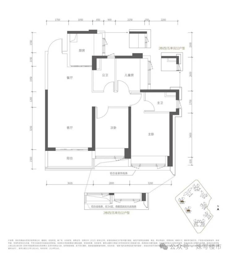
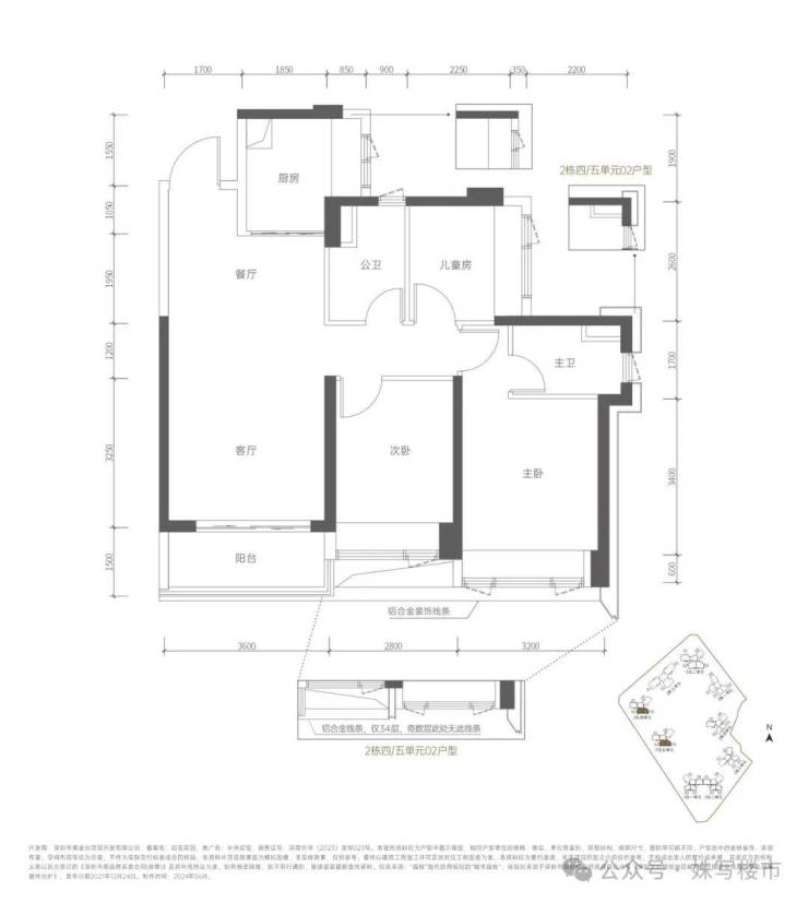
东南向——1单元95平米三房,总高31层,2梯4户,整体楼栋会临近龙华大道。03户型更靠近龙华大道,对比看花园的02户型噪音更大,但次卧室03户型是东向且更宽敞,喜欢安静的可以选择02户型。
南向——2单元93平米三房,总高31层,2梯4户,视野正看花园,楼间距达180米,视野开阔,如果考虑三房预算够的话,这个肯定是最好的选择,视野景观面和安静度02户型都优于03户型,03户型次卧室东向开阔,这一点强于02户型。
南向——4/5单元97平米三房,总高49层,3梯4户,整个楼体最靠近三期,视野不看花园,看小区内部的深远南路,深远南路是小区连接民丰路与玉龙路的内部道路,噪音对比龙华大道的声音整体会小一些。03户型整体在噪音、东面的采光和视野对比,都会优于02,在有选择的情况下会更建议03户型。
二期四房是小区的主力,115-163平米四房,但四房户型种类很多,总共有6个,(包括横厅、竖厅、双龙抱珠、南北通透)可以根据自己喜欢进行筛选,详细户型分析如下:
115㎡四房两厅两卫(横厅)
户型分布:115平主要分布在2栋1单元,总高31层,2梯4户,这个户型小区只有30套房源,房源占比仅4%。房源稀缺
户型介绍:这个面积为横厅设计,也是对比一期新增的一个户型,客餐厅开间6.3米,阳台景观面3.9米,朝向主西偏一点南,视野可看向三期园林,景观好。
而三个次卧室是全飘窗设计,朝向主东,东面退龙华大道约35米,次卧室会略有噪音,大横厅设计在最大程度上减少了浪费面积,使用率高。
115/120㎡四房两厅两卫(南北通透)
户型分布:115平米分布在2栋2单元04户型,总高31层,2梯4户,东南向临近龙华大道,看一点公园,这个户型四房,临近龙华大道31米,会受噪音影响,但性价比高,是目前四房最便宜的一套。
120平米分布在2栋4单元、5单元,总高49层,3梯4户,正南向临近深远南路,看后期三期公园。120平米四房会靠近三期,在楼间距来看,约100米,视野间距还可以。
户型介绍:两个户型都属于南北通的四房,朝向好,进门一个卧室,餐厅和厨房承接,每个功能间都做到对流,采光通风好但在细微功能间的尺寸来讲略有不同,120平米厨房宽度短20厘米,餐厅宽20厘米,主卧而115平米则相反,主卧卫生间115平米的更宽,但牺牲了次卧室的面积,120平米主卧和次卧会更大一些。
结论:115平米和120平米的两个户型,都是长条形,在外部的整体框架尺寸上长11.2米,下长12.2米,宽8.3米,整个外部大小是一样的,只是在功能间的分布上略有细微差别,尺寸看个人喜好;但在房子的安静度来讲,120平米的优于115户型,考虑性价比的话,115平米四房很不错。
131/142平米四房两厅两卫
面积分布:这个户型主要分布在2栋1/3单元。2栋1单元131平米,总高31层,2梯4户,西南向看小区园林和泳池景观,楼间距开阔,无遮挡。
2栋3单元总高49层,东南向看园林和泳池,对比131平米的楼位,这个距离前面楼间距约91米,主要优点为东南朝向好。

户型介绍:这个户型属于双龙抱珠的四房两卫双阳台,进门赠送入户,可做鞋柜,长条形厨房,带生活阳台,客餐厅在中庭,南偏西看园林泳池,四个卧室分布在两边,主卧通透双飘窗,整个户型四面采光又通透,龙华最难得出来的四房户型。
细微差别:1单元131平米的四房,有两个次卧室宽10厘米,厨房更长条形,且连接厨房的生活阳台更方正,非承重墙可以打通。
三单元的141平米的进门玄关更宽敞,但厨房对比略短了30厘米,生活阳台属于长条形,无烟道管道,内部会更平整,生活阳台更大。
136平米四房两厅两卫
户型分布:这个户型主要分布在2栋2单元01户型,总高31层,2梯4户,正南向看小区园林,真正最大的楼间距开间的四房就这一户了,约180米,房源总共30套。
户型介绍:这个户型属于南北通透的四房,南北双阳台,客厅开间4.2米,主卧套间24平米,最小的次卧10平方,三个卧室和客厅都向南,考虑大且通透追求景观的,这个真不错。
▲ 阳台实景视野拍摄
主阳台的视野看花园确实的不错,看花园泳池,视野开阔,但值得提醒的是,餐厅阳台看后面超核润府的幼儿园和龙华大道,可能有部分噪音的影响。
141平四房两厅两卫
户型分布:这个户型主要分布在2栋4/5单元,3梯4户,总高49层,东南向看园林,两户前后楼间距约40米,但2栋5单元看一期花园,楼间距更宽。总共88套房源。
户型介绍:这个户型分布在超高层,餐客厅双阳台,客厅开间4.2米,三个卧室东南,一个卧室西北向,这个户型设计既保证了通透性又尽可能避免门对门,主卧还是双面飘窗。
对比4单元与5单元的差别,5单元前后双面看花园,视野更好更安静,4单元临近南园公园二期和旁边的超核润府,可能多少会有点影响。
163平米四房两厅两卫
户型分布:这个户型分布在2栋3单元,01和03户型,东南向看园林和泳池,3梯3户,总高49层,妥妥的楼王单位,这个户型最大楼间距超100米,总共92套房源,占比12%。
户型介绍:这个户型是136平米的放大版,整个尺寸更宽阔,南北双阳台,163平米户型是独门独户,进门口的入户可以自己用,且4米主卧大开间,带独立洗手间+衣帽间,结合了改善,居家和实用性为一体,整个尺寸的宽松和舒适感,整个龙华改善面积最大的平层四房。
三梯三户的楼体过道倒是不够明亮,加上这个户型进门长走廊,刚进门的体感一般,但要考虑宽敞性的是不错的选择。
附每栋标准平面图:
03
交通方面
项目位于龙华民治街道,民丰路与龙华大道的交汇处,距离4号线北站约900米,27号线樟坑站300米。27号线在建设中,预计2028年通车,后面直达南山留仙洞、科技园、前海,开通之后还是挺好。

学校配套
楼盘位于玉龙学校、龙腾学校、格致学校、深外龙初中部的共享学区内。
深圳外国语高中被评为“保送之王”,具有保送资格的全国13所外国语学校之一,设有六个语种,是国内设有外国语语种最多的学校之一。
●深圳外国语学校(集团)龙华学校,创办于2016年9月,是深外在深圳的第一个分校,是区属九年一贯制公立学校,建面约5.4万㎡,现有规模约60个班(小学24个班+初中36个班)。
深外龙学校的划分,小学部只包含四大“豪宅”(熙园山院、圣 莫丽斯、莱蒙水榭山、和龙悦居),对比生源在片区较优。

其次深外龙的初中部目前包含了北站目前在售的5个新房,也是目前生源较高端的社区,而根据网上信息,23年四大录取率在9%,22年四大录取率在8.84%,普高率在95%。
深外龙在2021年正式启动点招,考虑三年一轮回,预计今年成绩可能会有新的上升。
●项目南侧在建九年一贯制公立学校——深圳市格致中学民治校区,规划设立36个教学班,23年已经开始招生。
格致中学高中部在龙华红山,建校虽短短三年,但理工类的学科竞赛获奖频繁,2023年,1名高二学生覃凯成为中科大少年班录取全国45人中唯一一个来自深圳的学生。
目前小一借址于龙腾小学,初一借址于格致中学,学校于今年4月18日正式开工,预计明年可使用。家门口100米的学校,目送式教育,不仅能让小孩多睡20分钟,还不用风里来雨里去的接送。这个新学校覆盖九年制的生源在北站五个盘的新房,生源也是片区内较好的。
商业配套
2km内有红山6979,华南首家开市客,北站缤果空间,星河coco park等大型商业。
还有在建的深圳第四个、龙华第一个华润五星级万象系商业,建面约13.4万㎡,距离楼盘约300米,真正的临商不近商,既能满足购物方便又能满足居住纯粹。
休闲公园
绿芯公园建面约16万㎡,打造深圳市的地标和门户公园,后期公园与办公楼,商业,南园街区公园相互连接,形成集商业与休闲一体的新型街区。虽然最近有传停工,但官方有回复,且我们办公楼就在上面,没停工,只是有点磨洋工,毕竟还有3年交付。
家门口还有配有市政公园和南园公园二期,小区内公园环绕,小区外依旧公园环绕。
医疗设施
项目旁边有两所三甲医院:深圳市第二儿童医院、深圳市新华医院
● 深圳市第二儿童医院:占地面积约4万㎡,建面30万方,提供约1600个床位,是福田区儿童医院的1.6倍,与福田儿童医院实行“一院二区制”,步行约900m,开车5分钟,今年会投入使用。
● 深圳市新华医院:建面约50万方,是国内最大的单体三甲综合性现代医院。集急救、医疗、教学、科研、保健于一体,距离项目2km,开车10分钟,医院已经建成,今年会投入使用。
◆深圳南山区【中洲迎玺花园】
◆售楼处电话:400-088-3336『售楼中心』
◆网上售楼中心〢安全通话隐藏真实号码〢欢迎来电咨询〢
◆开发商售楼处直销_欢迎来电预约尊享内部折扣_匠心钜制恭迎品鉴〢
◆提前来-预约登记尊享售楼处1v1销售专业讲解〢一对一热情服务〢
免责声明:
1.本文所发布内容,凡未注明“原创”等字样的均来源于网络善意转载,版权归原作者所有!
2.除本平台独家和原创,其他内容非本平台立场,不构成投资建议。
3.如千辛万苦未找到原作者或原始出处,请理解并联系我们。
4.文中部分图片源于网络。
5.发布此文出于传播消息之目的,如有侵权,联系删除。
声明:本文由入驻焦点开放平台的作者撰写,除焦点官方账号外,观点仅代表作者本人,不代表焦点立场。
