绿景白石洲(售楼处电话)首页网站|绿景白石洲售楼中心欢迎您|地址_备案价_户型图
扫描到手机,新闻随时看
扫一扫,用手机看文章
更加方便分享给朋友
绿景白石洲售楼处电话:4000 88 3336(售楼中心)
深圳绿景白石洲售楼处电话:4000 88 3336(售楼中心24小时电话)
深圳绿景白石洲售楼处24小时电话:4000 88 3336(营销中心)项目最新介绍:房价、价格、折扣、学区、学校、地铁、交通、户型图、备案价、特价房、优缺点、得房率、优惠活动、小区图片、开盘时间、交房时间、周边配套、售楼处位置、最新详情等咨询。
01
项目基础信息
【项目名称】绿景璟庭
【占地面积】未公示
【建筑面积】47.5万㎡
【推售产品】110-125三房,180四房
【交付标准】未定
【交房时间】未定
【产权年限】70年
【房产性质】住宅
【总户数】1257
【车位比】预估1:1
【容积率】10.3
【绿化率】30%
【梯户比】分高低区(3T6 // 4T7)
【开发商电话】4000-88-3336
【开发商】绿景中国地产
【物业公司】绿景物业,仲量联行(顾问)
【项目地址】南山区深南大道与沙河东路交汇处
绿景白石洲璟庭户型鉴赏
建筑面积约110㎡户型
瞰景三房,卧室标配飘窗,观景阳台展开风景画卷
餐客一体化,连通阳台,畅享全家欢聚时刻
动静分区舒适化营造,休慎与家庭活动互不干扰
主卧私享化,独立卫浴、衣帽间,自在天地一隅

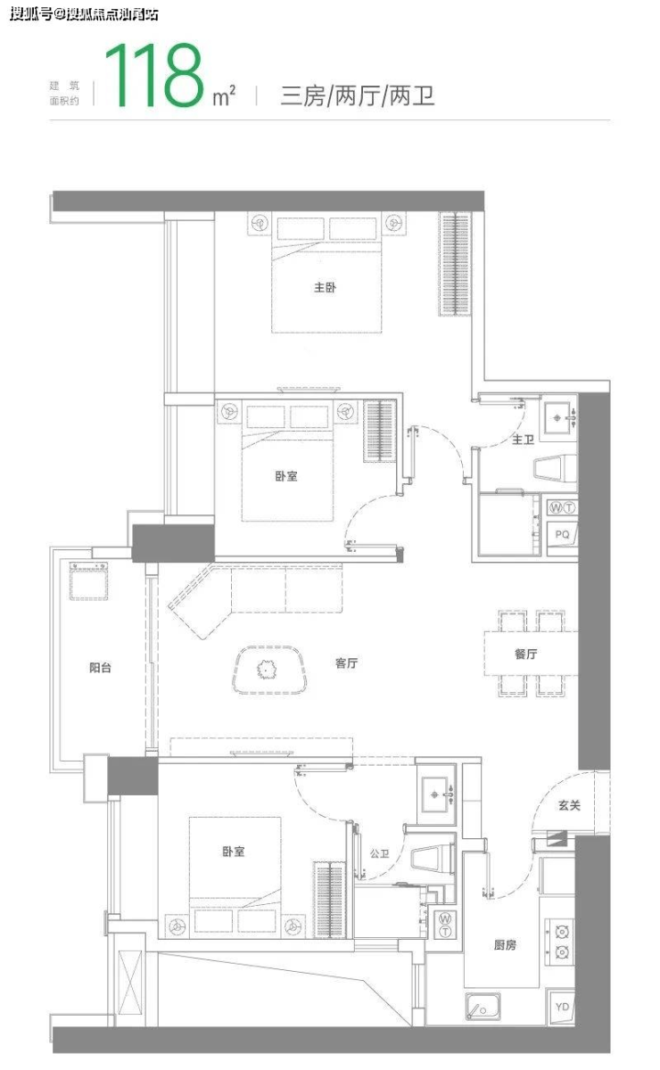
建筑面积约118㎡户型
横向四开间设计,南向约13.4m奢华采光面,和光同悦
南向观景C位,客厅、卧室随心眺望窗外城市风景
奢享主卧,生活阳台、衣帽间、私人卫浴,独享非凡领地
餐客一体贯通阳台,打造舒适、宽敞的家庭欢聚天地

建筑面积约125㎡A户型
瞰景三房,飘窗、阳台拉开居住视野,主卧私享功能产备
LDK 一体化设计,打造无边界、社交化的餐客厨系统
动静分区舒适化营造,休慎与家庭活动互不干扰
双阳台设计,厨房连通生活阳台,延展更多空间,随心收纳

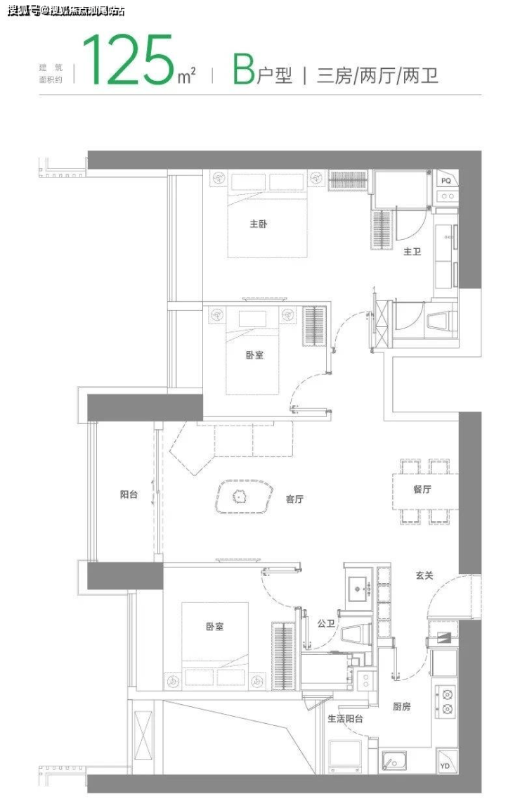
建筑面积约125㎡B户型
横向四开间设计,南向约14.1m奢华采光面,和光同悦
南向观景C位,客厅、卧室随处纵览非凡城市景观
奢享主卧,步入式衣帽间,私人卫浴,独享自我领地
双阳台设计,厨房连通生活阳台,延展更多空间,随心收纳

建筑面积约125㎡C户型
卧室标配飘窗,引入丰沛阳光,全家尽情舒展
餐客一体贯通阳台,打造舒适、宽敞的欢聚天地
奢享主卧,独享衣帽间、私人卫浴,自我非凡领地
双阳台设计,厨房连通生活阳台,延展更多空间,随心收纳

建筑面积约187㎡户型
横向创新户型,超宽向阳尺度,吸纳阳光新风
主卧私享化,独立卫浴、衣帽间,自在天地一隅
四开间朝南,卧室大飘窗,在阳光中享受美好栖居
南北双阳台,一面晾晒收纳,一面休闲享受,精彩不止

02
超级都会 | 深圳黄金分割点
在伦敦、纽约这样的超级城市,其城市主轴的黄金分割点上均屹立着城市超级影响力的项目,如伦敦金丝雀码头、纽约中央公园,而深圳的发展主轴深南大道从罗湖中心到前海中心,绿景白石洲正处于黄金分割点之上。

03
超级十字轴 | 成就深圳价值之核
绿景白石洲位于深圳核心位置南山区的华侨城片区,深圳城市发展主轴——深南大道与大沙河创新走廊十字交汇点。

依托华侨城人文艺术城区,链接后海总部基地、深圳湾超级总部基地、留仙洞总部基地、高新园总部基地四大总部基地。

04
五维立体交通 | 高效顺联世界
轨道交通——四线三站两枢纽,地铁1号线、2号线以及近期即将落实的20号线、29号线,无缝覆盖更新片区。
道路交通——项目自身三纵三横路网,对外连接深南大道、北环大道、沙河东路等城市干道。

全球交通———15min 直达深圳湾口岸及太子湾邮轮母港,直通港澳,18min直达福田高铁站,通达区外,26min直达宝安国际机场,环游世界,海陆空半小时交通圈,畅行世界。
05
五大潮流商圈 | 一站式休闲度假
汇集欢乐谷、沙河高尔夫、世界之窗,一站式体验城市度假 ; 5大商圈,缔造潮流时尚窗口:万象天地、京基百纳广场、益田假日广场、欢乐海岸、深圳湾万象城。

06
六重稀缺生态 | 富氧城市绿洲
山林湖海园廊在此相聚,每一次呼吸与远眺,都有来自国家级生态保护区的气息。

07
超级商务群 | 湾区新地标
约 400 米双子塔国际超甲写字楼群,全球顶级设计团队巨著,重绘深圳天际线。计划引进世界顶奢酒店及轻奢商务酒店集群,融合在地文化,创作“慢生活”旅居酒店范本。

08
旗舰商业 | 都市奢华窗口
近40万方商业,SHOPPING MALL、街区商业、社区商业等,一条长达1.1公里的中央绿轴串联多元商业空间,商业主题涵盖城市顶奢、潮人艺术、高端社区消费、先锋潮流等不同类型。

09
领袖尊享 | 城市核心居住区
配建有高端精品住宅及艺术公寓,成为深圳未来核心区域规模居住生活区。

10
超级配套群 | 深圳正中心
超大规模城市公共配套,涵盖四所幼儿园共57班,三所九年一贯制学校共90班,约6.5万㎡社康、文化等公共配套设施。以及多维度会所体系满足不同公共生活需求。
11
立体之城 | 六重立体交通
创新打造地上地下六重结构立体化交通系统,不同交通系统分层互联,人行系统、城市公共道路系统,地下轨交系统快速接驳,最大程度实现人车分流,科学化疏解交通压力。
12

共享之城 | 延伸生活边界
多维共享空间系统,从商业消费、休闲漫步到艺术观赏,成为深圳一条可逛、可玩、可互动的24h开放潮流街区 。

约30万㎡住宅与公寓架空层花园,打造亲子、文娱、运动等设施,无限拓展生活边界。
13
艺术之城 | 国际艺术主场
联合国际顶级艺术机构UAP ,构筑深圳未来公共艺术社区。

14
全球顶级团队 | 共著超级作品
全球近50家顶尖设计团队联袂共创,前后历经10余年匠心研磨,重绘未来白石洲。

联合华为、联通等高新科技领军企业,打造深圳最大规模城市更新智慧城区,覆盖城区、社区、家庭三大场景,全维演绎未来家园。
15
深圳城市更新先锋
绿景地产,三十余年深耕布局粤港澳大湾区,专注城市更新领域,深圳房地产综合实力前十强,开发运营项目遍及香港、深圳、珠海、东莞等湾区核心城市。

16
首发一期|绿景璟庭
一期引入绿景智慧健康人居系统1.0,荣获国际 Fitwel 健康社区三星级认证。

绿景白石洲(绿景璟庭):城市更新巅峰之作

以超越时代的视野,引领深圳迈向未来
全新生活方式范本,致献每一个相信深圳的人

绿景白石洲售楼处电话:4000 88 3336(售楼中心)
深圳绿景白石洲售楼处电话:4000 88 3336(售楼中心24小时电话)
深圳绿景白石洲售楼处24小时电话:4000 88 3336(营销中心)项目最新介绍:房价、价格、折扣、学区、学校、地铁、交通、户型图、备案价、特价房、优缺点、得房率、优惠活动、小区图片、开盘时间、交房时间、周边配套、售楼处位置、最新详情等咨询。
免责声明:本文章文字、数据和图片皆来源网络,如有侵权请告知,数据图片仅供参考,不作为要约或承诺。相关宣传内容不排除因政府相关规划、规定等原因而发生变化。买卖双方的权利义务以双方签订的《商品房买卖合同》及其补充协议、附件等书面文件为准,敬请留意最新资料。
声明:本文由入驻焦点开放平台的作者撰写,除焦点官方账号外,观点仅代表作者本人,不代表焦点立场。
