南山绿景白石洲-绿景白石洲(营销中心)首页网站-绿景白石洲售楼中心-欢迎您-楼盘详情-最新房价@售楼处电话
扫描到手机,新闻随时看
扫一扫,用手机看文章
更加方便分享给朋友
绿景白石洲售楼处咨询/预约热线:400-088-3336(售楼中心)
◆提前来访-预约登记尊享售楼处1v1销售专业讲解〢一对一热情服务〢
◆温馨提示:网上售楼中心〢预约可享内部优惠〢匠心钜制-恭迎品鉴〢
注:暂不接受临时到访客户,看房请提前预约。
4000883336
绿景白石洲项目坐落在深南大道以北、沙河东路以东、香山西街以南、华夏街以西的围合位置。紧邻世界之窗与欢乐谷,位于深圳南山的核心区位,毗邻华侨城传统豪宅片区。
项目占地面积30568.31㎡,建筑面积461830.21㎡,容积率10.3,是深圳大体量的城市旧改项目。绿化率30%,梯户比为7T7/6T6,带装修交付,预计2025年底交房。
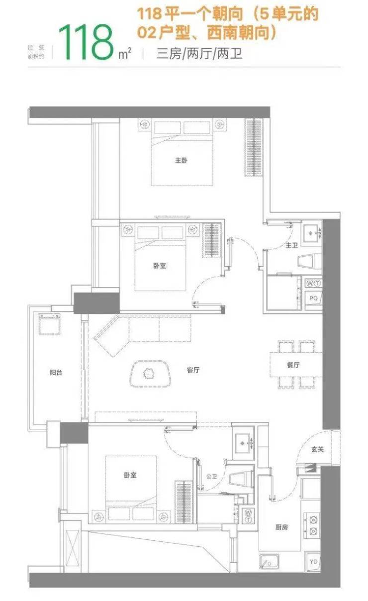
绿景璟庭属于一期,由6座建筑组成,包含3栋住宅、2栋公寓。1栋1/2单元为26/59层塔楼商务公寓,1栋3/4/5单元为74层塔楼住宅。 住宅共计1257户,公寓共计1489户。其中1-1栋公寓453套、1-2栋公寓1036套,1-3栋住宅430套、1-4栋住宅441套、1-5栋住宅386套。
项目总户数2746户,规划车位1983个,车位比1:0.72。住宅和公寓在同一个小区里,而回迁房天悦花园在隔壁地块,两地之间有连廊连接。
项目优势:
1、南山区核心地段,拥有顶级的配套资源。
2、交通便利,位于深南大道和北环大道之间,地铁和公路出行便捷。
3、生态环境优美,靠近大沙河湿地,绿地面积大,空气清新。
4、项目是片区为数不多的新盘,片区住宅供应少,小面积更是稀缺。
5、规划的配套丰富强大,整体落地后将是一个崭新的核心商圈。
【绿景白石洲璟庭基本资料】
交通:1号线白石洲站;1/2号线世界之窗站;29号线白石洲北站(深圳地铁官网预计2028年底开通);
学校:新建2所“南山外国语教育集团学校”九年一贯制学校和3所幼儿园
交楼标准:送约6000元/平精装
交楼时间:2026年01月;物管费8.8/平
商业:40万商业配套
综合测评:
优点:
地理位置与交通便利性:
位于深圳南山区的核心地段华侨城片区,深南大道与大沙河创新走廊的交汇点,靠近后海总部基地、深圳湾超级总部基地等重要区域。
临近地铁1号线白石洲站,规划中的地铁20号线和29号线也将进一步提升交通便利性。
丰富的周边配套资源:
商业繁荣,项目自身规划了约40万㎡的大型商业,周边还有万象天地、益田假日广场等大型商圈。
教育优质,周边有南外沙河小学、南外香山里小学和南外第二实验学校等。
医疗完善,3公里范围内有香港大学深圳医院、华侨城医院、沙河医院等。
文娱设施丰富,有大沙河公园、燕晗山郊野公园、华侨城国家湿地公园等。
项目规划与产品品质:
由全球近50家顶尖设计团队联袂共创,联合华为、联通等高新科技领军企业,打造深圳最大规模城市更新智慧城区。
拥有约12.5米挑高奢华艺术大堂、约5600㎡泛会所、架空层空中花园等超高标准的公共区域。
缺点:
建设周期与施工影响:
作为旧改项目,建设周期较长,预计需要8-10年。在建设过程中,可能会产生噪音、粉尘等影响,对周边居民的生活造成一定的干扰。
居住密度与高峰出行问题:
容积率高达10.3,建筑以超高层为主,最高达74层。较高的居住密度可能会导致高峰时段电梯等待时间较长,出行受到一定影响。
户型设计与居住属性:
户型设计较为中规中矩,没有特别出彩的地方。并且项目包含回迁、公寓、住宅等多种业态,居住属性不够纯粹,可能会对居住体验产生一定的影响。
绿景白石洲售楼处咨询/预约热线:400-088-3336(售楼中心)
◆提前来访-预约登记尊享售楼处1v1销售专业讲解〢一对一热情服务〢
◆温馨提示:网上售楼中心〢预约可享内部优惠〢匠心钜制-恭迎品鉴〢
注:暂不接受临时到访客户,看房请提前预约。
免责声明:
本文网络转载,版权归原作者所有,本栏目所使用部分文字、图片来自互联网收集,主要用于供给大家学习、交流。我们尊重原创作者和单位,若本文侵犯了您的权益,请直接留言或电话联系我们,我们将立刻删除。
声明:本文由入驻焦点开放平台的作者撰写,除焦点官方账号外,观点仅代表作者本人,不代表焦点立场。
