顺泰中晟大厦(售楼处电话)首页网站|顺泰中晟大厦售楼中心欢迎您|地址_备案价_户型图
扫描到手机,新闻随时看
扫一扫,用手机看文章
更加方便分享给朋友
深圳顺泰中晟大厦楼盘售楼处电话-24小时电话-欢迎您-售楼处地址-楼盘详情
顺泰中晟大厦简介丨
顺泰中晟大厦写字楼营销中心
顺泰中晟大厦售楼处电话:400-088-3336【售楼中心】
4000883336
作为甲级写字楼,顺泰中晟大厦在建筑设计和设施配备上尽显高端品质。
总面积:约 60519㎡,提供了广阔的办公空间选择。
楼宇高度:160m(3 - 33 层),雄伟的身姿屹立于龙华区,彰显企业的不凡气度。
大堂:面积约 866㎡,高约 11m,踏入大堂,宽敞明亮、气势恢宏的感觉扑面而来,给来访者留下深刻而尊贵的印象。
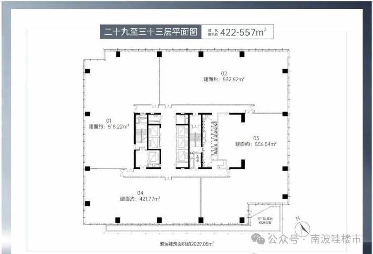
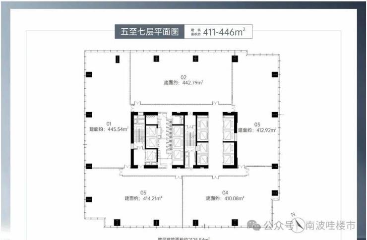
面积段:166 - 2040㎡,多样的面积段可满足不同规模企业的需求,无论是初创的小型团队,还是规模庞大的企业集团,都能在这里找到契合自身发展的办公空间。
层高:约 4.5m,开阔的层高让办公空间更具灵活性,可自由规划布局,营造舒适、高效的办公氛围。
电梯:采用日立品牌,低区 4 台,中区 4 台,高区 5 台,高效运行的电梯系统大大减少了员工等候时间,确保办公出行的便捷与高效。
使用率:约 73%,较高的使用率意味着企业能够充分利用每一寸空间,实现办公资源的最大化利用,提升性价比。
【写字楼基础信息】
总办公面积:约60519㎡
楼宇高度:160m(3-33F)
大堂:面积约866㎡,高约11m
面积段:166-420-550-2040㎡
层高:约4.5m
电梯:日立品牌;低区4台,中区4台,高区5台
使用率:约73%
停车费: 600元/月卡
【公寓基本信息】
层数:27层
户数:共计435户
电梯:5部日立电梯
层高:舒适层高
面积段:约26-73㎡单房、一房一厅、两房一厅
使用率:高使用率
交楼时间:预计2023年下半年
物业管理费:5元/月/㎡
最便捷交通:楼下地铁站,出行全国最便利的线路
距离深圳北站交通枢纽仅3 站,三大高铁形成半小时湾区经济圈,4小时武汉、厦门经济圈,8小时京津沪经济圈;
未来3站与地铁13号线(规划中)接驳,将串联留仙洞总部基地/南山科技园等深圳最牛的核心商务区以及连接深圳北站/西丽综合交通枢纽两大交通枢纽;
绝佳的休闲文娱线路,连通9大公园,2大区级/市级体育馆以及2大红山-北站两大商圈,可以享受便捷生活与极致的休闲体验;
相对于拥堵的4号线、5号线,6号线的人流量是最少的,是通勤最舒适的地铁线路。
紧邻4大主干道,30分钟抵达福田、南山,全城快速通勤
龙观大道直连沈海高速、龙大高速:40分钟达宝安国际机场;
7分钟接驳福龙路:30分钟直达福田香蜜湖、车公庙等商务区;
7分钟直连侨城东路北延快速路(在建):30分钟直达福田、南山核心区(市区规划为双向4-6车道,设计速度60-80公里/小时);
双口岸:30分钟直达福田口岸、皇岗口岸,快速联通香港。
最黄金地段
位于数字经济圈与商业服务黄金交汇处,前享高铁和服务,后依雄厚产业基础。未来将吸纳龙华5G产业、数字科技时尚创意、智能制造等新兴产业,未来发展潜力无限。
最齐全配套:项目3公里内商业、酒店、银行等各种配套齐全,打造最便利办公场域。
商业配套:项目自带约5000㎡商业,毗邻大浪商业中心、后浪新天地、星河ico、壹城中心、上塘荟等;
酒店配套:维也纳酒店、希尔顿逸林酒店等各星级酒店的酒店汇聚,可以满足企业各类的商务接待的需求。
景观资源:阳台山森林公园、大浪体育公园等六公园环绕,享360°绿色生态景观办公视野。
震撼景观:六大公园震撼景观视野,近享阳台山鲜氧生活。
【六大产品硬核价值】
形象:约160m楼体高度,纯玻璃幕墙打造,昭示性极强;大堂面积约866㎡,高度约11m,打造企业商务新名片;
高效:13部日立电梯,高中低分区,高效通行;约670个车位,90:1充足车位比,停车无忧;
阔绰:约166-2040㎡办公面积,层高约4.5m,约73%使用率,尽享阔绰办公体验;
舒适:采用顿罕布什、麦克维尔、开立品牌冰蓄冷冷水系统;设置新风系统,约30m³/人/小时新风量,打造舒适健康办公空间;
智能:设置包括智能门禁、电子巡更、视频监控等13重智能化系统,为楼宇安全保驾护航。
服务:提供基础物业/产业支持/空间优享三大核心服务,赋能企业高效发展。
实力:中晟集团,综合性城市运营服务商,品牌实力保障。
深圳顺泰中晟大厦楼盘售楼处电话-24小时电话-欢迎您-售楼处地址-楼盘详情
顺泰中晟大厦简介丨
顺泰中晟大厦写字楼营销中心
顺泰中晟大厦售楼处电话:400-088-3336【售楼中心】
免责声明:本文所有文章、图片、音频视频文件等资料版权归版权所有人所有,因非原创文章及图片等内容无法一一和版权者联系,如原作者或编辑认为作品不宜上网供大家浏览,请及时来电告之,我们将立即予以修改或删除。本文如无意中侵犯了某方的知识产权,告之即删。
声明:本文由入驻焦点开放平台的作者撰写,除焦点官方账号外,观点仅代表作者本人,不代表焦点立场。
