前海时代三期(深圳)前海时代三期,前海时代三期_前海时代三期楼盘详情
扫描到手机,新闻随时看
扫一扫,用手机看文章
更加方便分享给朋友
深圳【前海时代三期】
【深圳前海时代三期开发商售楼处电话:400-088-3336 (营销中心24小时电话)中介勿扰】
温馨提示:本楼盘暂不接受临时到访,过来看房请提前来电预约,谢谢配合!
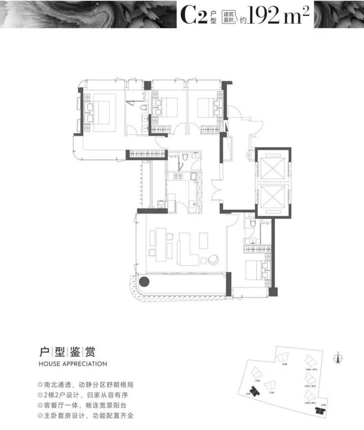
「前海时代三期」近期动态:项目案名最终确定为「尊府」,目前展厅已开,官方户型图已出炉,预计11月底开放样板房,12月中入市。首批入市的是7-2地块的最前面4栋,套数不多仅270套,面积是192-209-247㎡4房大户型,其中192㎡4房3卫106套,209㎡4房4卫82套,247㎡4房4卫82套。
「前海时代三期」官方平面图&户型图
CHAPTER 1>
前海时代三期基础信息
项目名称:前海时代三期(尊府)
户 型:首推192-209-247㎡4房
建筑类型:住宅、商业、办公、公寓
产权年限:70年/40年
预计价格:11.3万/平
占地面积:约33.4万㎡(总)
建筑面积:约110万㎡(总)
容 积 率:4.52
绿 化 率:≥30%
总 户 数:608套(首推270套)
梯户比:2T2/3T2
车位比:1649个(7-2地块)
交房时间:待定
物业公司:深圳地铁物业管理发展有限公司
开 发 商:深圳市地铁集团有限公司
区域规划图:位于前海桂湾片区南侧,临近滨海大道和桂湾河。

项目分析小结:
1、朝向:都是南向朝向,西南和东南都看水廊道公园,朝滨海大道方向
2、户型:都为4房2厅3/4卫户型,2个套房,主卧为三面采光,客厅2面L型采光;200以及250平主要区别在于主卧和客厅的尺度;190平户型客厅尺度7.2米,与250平同样,面积小在进深
3、使用率分析:由于是高层和超高层的缘故,使用率在70-73%之间,同步低层同面积户型会略偏小(承重墙后),反之,高层户型略大
4、景观分析:56、57、60栋基本无景观遮挡,55栋受56栋影响有部分户型遮挡
5、噪音分析:但是由于前海时代段的滨河大道处于下沉位置,所以车速并不快,噪音不大;而且出行都是由前海时代设置连廊直接通往公园,很方便。
CHAPTER 2
前海时代整体规划优劣势客观分析
【未来实践】TOD超体 全场景自如交互深铁前海时代择址桂湾,以“站城一体”理念,打造前海首个超百万方TOD综合体,构建商务、生活、购物、社交等全场景交互未来城市,满足都会人群多维需求,擎启时代向往。已建成物业总建面约45.2万㎡,包括前海时代CEO公馆、国际都荟住宅、前海深港基金小镇以及前海时代第一/第二幼儿园、南山实验前海港湾学校等。在建/待建物业总建面约84.3万㎡,集高端住宅、国际公寓、总部办公、风尚商业、精品酒店等全业态价值链接,定位居住、商务、文化享受、休闲娱乐等全场景切换的超级综合体。
前海时代三期与二期二手CEO公馆的区别分析:
1、停车场对比:一二期为地铁上盖物业,有双层架高停车场,因此一直被吐槽,3期会有所改观
2、户型使用率对比:二期为小高层(11层,板式结构,南北通透),容积率5.5,户型使用率和通透性远高过三期
3、物业管理对比:一二期为混合管理,物业为深铁物业,三期为单独独立地块,管理相对纯粹,大户型相对纯粹
4、配套对比:一二期没有泳池配套,三期配套了泳池
CHAPTER 3
配套情况
交通:距离1号线鲤鱼门站约600米步行八九分钟,距离5号线梦海站,5、9号线前湾站都在1公里左右。
桂湾在建的前海湾交通枢纽(亚洲最大),地下4层,两条城际轨道线,香港深圳西部快轨(15分到达香港中环)、穗莞深城际轨道线,还设计了出入境口岸
自驾方面项目西侧是梦海大道,南侧是滨海大道,去往宝中5分钟、南山10分钟、福田15分钟
商业:项目自带约5.1万㎡商业,周边汇聚有约8万㎡万象前海、约4万㎡卓悦INTOWN、约3万㎡山姆旗舰店等集中式商业
学校:项目周边有2所幼儿园、前三划分的学校是南山实验前海港湾学校(教育水平不太行,目前需要外部引流才能填满学位)
区位规划发展
桂湾,作为前海三湾之首,桂湾重点发展金融服务业和商务服务业,吸引金融企业总部、金融科技领军型企业集聚,旨在建设具有示范效应的国际金融科技中心和全球总部中心
桂湾发展至今已有10多年的积累,是最核心的区域,被打造成为金融五百强的聚集地,目前已有近一半的企业入驻
虽然前海这几年在努力提高居住比,几次修改都把部分商业用地调整为居住用地,但桂湾的住宅用地还是弥足珍贵,桂湾的住宅不需要一个巴掌就能数出来,加上受‘7090’政策影响,前三这种大户型产品更为稀缺。
深圳【前海时代三期】
【深圳前海时代三期开发商售楼处电话:400-088-3336 (营销中心24小时电话)中介勿扰】
温馨提示:本楼盘暂不接受临时到访,过来看房请提前来电预约,谢谢配合!
免责声明:本文如无意中侵犯了某方的知识产权,告之即删。
声明:本文由入驻焦点开放平台的作者撰写,除焦点官方账号外,观点仅代表作者本人,不代表焦点立场。
