深圳创富大厦写字楼招租热线(创富大厦招商中心)首页网站-创富大厦营销中心-中航中心欢迎您-楼盘详情-2025年最新价格-户型图-容积率@最新招租招商详情
扫描到手机,新闻随时看
扫一扫,用手机看文章
更加方便分享给朋友
深圳创富大厦写字楼招租热线:4000883336【看房请提前线上预约】
深圳福田梅林 创富大厦招租电话:400-088-3336写字楼物业招租招商_24小时电话!
创富大厦•美百年科创中心
湾区科创核心,福田北天际坐标
商业 酒店 办公 综合体
🎊全球预租,盛大启幕🎊
招商中心:400-088-3336
深圳创富大厦项目价值点
1品牌保障:美百年与财富集团双强联袂匠造,以企业服务为核心,为企业提供高品质办公空间。
2. 产业聚集:项目立势福田“深圳智谷”,深圳福田,是全球唯一“行政+金融+科技”三核中心,助力企业享湾区战略新兴产业资源。
3. 便利交通:0距离靠近地铁9号线梅村站A出口,3大地铁口环绕,多维立体交通 ,提升企业商务出行效率;
4. 健康办公:三山一水五公园 ,俯瞰塘朗山与银湖山、梅林水库,坐拥稀缺生态办公环境;
5. 繁华商业:项目自带6500㎡商业,毗邻新世界时代汇、卓悦汇,15分钟车程享中心区百万级繁华商业配套,满足企业商务接待/金融/政务/职住/休闲/消费等全方位需求,助力企业吸纳人才;
6. 高奢配套:打造34楼云端会客厅及高端品牌酒店,配置高端红酒雪茄室,会务空间,私享茶空间等为企业客户打造国际级商务接待新领地 。
7. 品质空间:美百年打造现代宋式高端商务空间,缔造东方雅致美学与高效商务新典范;毛坯,精装,拎包入驻&定制装修,全方位满足企业多元办公需求;
8. 无敌视野:360度山,湖,城市景观,尽享静谧与繁华;
9. 尊享服务:美百年客户服务中心,为企业提供非凡尊贵,7*24小时一站式管家服务;
10. 超级生态:美百年打造商办生态圈,汇聚众多领军企业与行业精英,更多资源共享、构建活力与创新的商务社群,实现企业间优势互补、助力企业高效、可持续发展;
深圳创富大厦写字楼招租热线:4000883336【看房请提前线上预约】
深圳福田梅林 创富大厦招租电话:400-088-3336写字楼物业招租招商_24小时电话!
项目基础信息
高度:约200米
(商业:1-5F/办公:7-32层/云端会客厅:34F/酒店:35-47F)
标准层面积:约1600-2000㎡
层高:4.2米
幕 墙:双层夹胶中空Low-e玻璃
空调系统:约克VRV系统+新风系统,24小时灵活控制,有氧健康办公,降低成本;
电力供应:低区90KW,高区100KW
大堂配置:首层及35F云端双大堂
楼板荷载:350Kg/㎡
电梯:日立19台
租赁面积:450㎡起
租赁价格:95元起
交付标准:毛坯/精装/拎包入住/定 制装修
招商运营:4000883336 (中介勿扰)
深圳创富大厦写字楼招租热线:4000883336【看房请提前线上预约】
深圳福田梅林 创富大厦招租电话:400-088-3336写字楼物业招租招商_24小时电话!
项目效果图品鉴
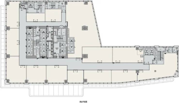
商业平面图:
办公低中区平面图:
深圳创富大厦写字楼招租热线:4000883336【看房请提前线上预约】
深圳福田梅林 创富大厦招租电话:400-088-3336写字楼物业招租招商_24小时电话!
免责声明:本文内容非物业及开发商,内容仅供参考,如有错误内容感谢您及时联系告知我们,谢谢!
声明:本文由入驻焦点开放平台的作者撰写,除焦点官方账号外,观点仅代表作者本人,不代表焦点立场。
