深业云筑售楼处【首页网站】深圳深业云筑欢迎您/地址/户型/价格/学区
扫描到手机,新闻随时看
扫一扫,用手机看文章
更加方便分享给朋友
深圳【深业云筑】
开发商售楼处电话咨询/预约热线:400-088-3336【售楼中心】24小时热线
深圳【深业云筑】售楼处电话:400-088-3336【营销中心】中介勿扰
深圳深业云筑楼盘详情介绍,包含售楼处电话、地址、户型图、小区图片、区位优势、交通、周边商业配套等楼盘详细资料;更详细楼盘资料和最新折扣价格,请拨打售楼处电话,销售会为您详细介绍楼盘。
深业云筑,总占地面积约5万㎡,建筑面积约32万㎡,容积率4.33,项目共分2期开发,原为石家村里的工业园区旧改,其中南区为一期,北区为二期,共12栋住宅组成,目前一二期都已经交房入住。

深圳【深业云筑】售楼处电话:400-088-3336【营销中心】中介勿扰
深业云筑2期,由深圳国企深业集团打造,总占地面积约1.85万㎡,总建筑面积约13.19万㎡,计容建筑面积约9.17万㎡,容积率4.84,绿化率40.27%,共由5栋总高32-33F高的住宅组成,其中除了6栋总高33F,其它栋数都是32F。
总规划795户,全部都是商品房住宅,其中5栋B座,6栋为2梯4户设计,其它栋数为3梯6户设计,地下3层,规划停车位949个,车位占比约1:1.2。
深圳【深业云筑】售楼处电话:400-088-3336【营销中心】中介勿扰
楼盘基础信息
1、开发商:深圳市深业明宏地产开发有限公司(深业集团)
2、物业公司:深业物业运营集团股份有限公司
3、物业管理费:3.5元/㎡
4、总占地面积:1.85万/㎡
5、总建筑面积:13.19万/㎡
6、容积率:4.84
7、绿化率:40.27%
8、产权年限:2020年11月17日-2090年11月16日(70年)
9、总户数:795户
10、总栋数及楼高:5栋,32-33层
11、梯户比:2梯4户/3梯6户
12、车位数:949个
13、车位占比:1:1.2
14、交楼时间:现房
15、交楼标准: 简装
深圳【深业云筑】售楼处电话:400-088-3336【营销中心】中介勿扰
项目周边配套
学校配套:深业云筑1期有1所12班幼儿园,根据2024年光明区教育局最新的学区划分,小学学区划分在深圳教科院实验小学(光明)、秋硕小学、龙豪小学、光明区实验学校小学部,初中学区划分在光明第二中学、光明区实验学校初中部。
深圳教科院实验小学(光明),在2024年的录取积分是第4类62.25分,属于非光明区户籍+学区租房生源,如果买了商品房,只有是深圳户籍是能保证就读的。
深圳【深业云筑】售楼处电话:400-088-3336【营销中心】中介勿扰
地铁配套:深业云筑2期距离在建的13号地铁线二期“公明广场站”距离1.1公里,“新庄站”(以前的公明南站)距离800米左右,另外深业云筑2期规划有公交首末站,可以快速接驳地铁站;现有的6号地铁线“公明广场站”距离有1.6公里,步行需要24分钟。
深圳13号线作为光明区的生命线,也是深圳3条快线之一,纵贯宝安区、光明区、南山区,将重新定位光明科学城通往南山核心区域的距离。

深圳【深业云筑】售楼处电话:400-088-3336【营销中心】中介勿扰
商业配套:深业云筑自带社区底商,距离约1.1公里就是公明最大的大仟里购物中心,也是光明首个一站式大型购物中心,光明人消费必选打卡地之一,另外距离约1.6公里范围内还有天虹商场,百佳华商场等商业体。

深圳【深业云筑】售楼处电话:400-088-3336【营销中心】中介勿扰
项目现状
深业云筑2期在2023年底已经正式交付,入住率还不错,目前是现房,所见即所得,也可以做到买哪套看哪套,不用担心烂尾或者质量问题。
深圳【深业云筑】售楼处电话:400-088-3336【营销中心】中介勿扰
深圳【深业云筑】售楼处电话:400-088-3336【营销中心】中介勿扰
项目户型介绍
89㎡的3房2厅1卫,E2户型,设计的是竖厅格局,客厅3.6米开间,LDKB一体化设计,3个卧室分别做到了主卧13.5㎡/次卧9.54㎡/次卧8.1㎡(含墙体飘窗),L型厨房还带1个小生活阳台,卫生间三段式分离,得房率:79.89%(不含赠送),东南/西南或正南朝向。
89㎡的3房2厅1卫,E3户型,仅4栋/5栋A单元/7栋的03号房才有,设计的是竖厅格局,客厅3.6米开间,LDKB一体化设计,3个卧室分别做到了主卧13.3㎡/次卧9.34㎡/次卧8.4㎡(含墙体飘窗),二字型厨房还带1个小生活阳台,卫生间三段式分离,得房率:79.89%(不含赠送),西南朝向。
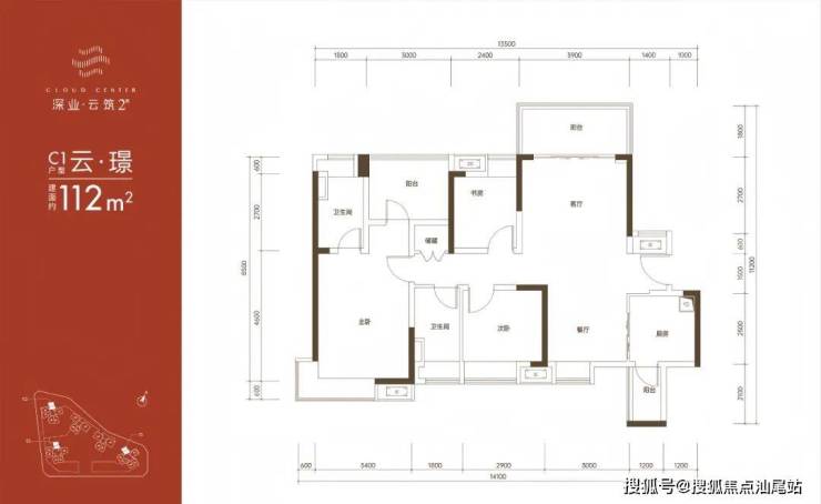
112㎡的4房2厅2卫,C1户型,仅4栋/5栋A单元/7栋的05号房才有,设计的是竖厅南北通透格局,客厅3.9米开间,餐客厅一体化设计,4个卧室分别做到了主卧22.44㎡/次卧9.9㎡/次卧8.95㎡/次卧7.85㎡(含墙体飘窗),U型厨房还带1个小生活阳台,卫生间干湿分离,得房率:79.88%(不含赠送),阳台主朝西南向。
112㎡的4房2厅2卫,C2户型,仅5栋A单元/7栋的06号房才有,设计的是竖厅南北通透格局,客厅3.9米开间,餐客厅一体化设计,4个卧室分别做到了主卧16.9㎡/次卧10.73㎡/次卧10.5㎡/次卧7.85㎡(含墙体飘窗),U型厨房,卫生间干湿分离,得房率:79.89%(不含赠送),阳台主朝东南向。
深圳【深业云筑】售楼处电话:400-088-3336【营销中心】中介勿扰
深圳【深业云筑】售楼处电话:400-088-3336【营销中心】中介勿扰
深圳【深业云筑】售楼处电话:400-088-3336【营销中心】中介勿扰
深圳【深业云筑】售楼处电话:400-088-3336【营销中心】中介勿扰
128㎡的4房2厅2卫,B1户型,仅5栋B单元的03号房才有,设计的是竖厅格局,南北通透双阳台,客厅4.2米开间,餐客厅一体化设计,4个卧室分别做到了主卧19.44㎡/次卧12.3㎡/次卧12㎡/次卧10.5㎡(含墙体飘窗),U型厨房,卫生间干湿分离,得房率:79.71%(不含赠送),大阳台主朝正南向。
128㎡的4房2厅2卫,B4户型,仅4栋的06号房才有,设计的是竖厅南北通透格局,客厅4.2米开间,餐客厅一体化设计,4个卧室分别做到了主卧20㎡/次卧12.3㎡/次卧11.1㎡/次卧10.2㎡(含墙体飘窗),U型厨房,卫生间干湿分离,得房率:80.14%(不含赠送),阳台主朝东南向。
143㎡的5房2厅2卫,A1户型,设计的是竖厅格局,南北通透双阳台,客厅4.5米开间,餐客厅一体化设计,5个卧室分别做到了主卧20.72㎡/次卧11.52㎡/次卧10.44㎡/次卧10.07㎡/次卧7.5㎡(含墙体飘窗),U型厨房,卫生间干湿分离,得房率:80.4%(不含赠送),阳台主朝正南向。
深圳【深业云筑】售楼处电话:400-088-3336【营销中心】中介勿扰
深圳【深业云筑】
开发商售楼处电话咨询/预约热线:400-088-3336【售楼中心】24小时热线
深圳【深业云筑】售楼处电话:400-088-3336【营销中心】中介勿扰
深圳深业云筑楼盘详情介绍,包含售楼处电话、地址、户型图、小区图片、区位优势、交通、周边商业配套等楼盘详细资料;更详细楼盘资料和最新折扣价格,请拨打售楼处电话,销售会为您详细介绍楼盘。
免责声明:
以上所发布的关于楼盘相关图文信息仅供您买房前参考,以上所有关于本楼盘的图文资料及说明请以最终以项目批文及双方在楼盘营销中心现场签署的买卖最终合同为准;本图文内容如无意中侵犯到某方权益,请联系我们将会及时处理!
声明:本文由入驻焦点开放平台的作者撰写,除焦点官方账号外,观点仅代表作者本人,不代表焦点立场。
