绿景白石洲售楼处电话【首页网站】绿景白石洲售楼中心_房价_户型_详情
扫描到手机,新闻随时看
扫一扫,用手机看文章
更加方便分享给朋友
绿景白石洲售楼处电话:400-088-3336(售楼中心)
绿景白石洲网上招商中心 | 欢迎来电咨询 | 请提前预约登记看房
绿景白石洲璟庭
【首发一期|绿景白石洲·璟庭】基础信息
建筑面积:约47.5万㎡
主力产品:建面约110-187㎡住宅
项目位置:深南大道以北、沙河东路以东
一期引入绿景智慧健康人居系统1.0,荣获国际 Fitwel 健康社区三星级认证。
【超级都会 深圳黄金分割点】
在伦敦、纽约这样的超级城市,其城市主轴的黄金分割点上均屹立着城市超级影响力的项目,如伦敦金丝雀码头、纽约中央公园,而深圳的发展主轴深南大道从罗湖中心到前海中心,绿景白石洲正处于黄金分割点之上。
【超级十字轴 成就深圳价值之核】
绿景白石洲位于深圳核心位置南山区的华侨城片区,深圳城市发展主轴——深南大道与大沙河创新走廊十字交汇点,依托华侨城人文艺术城区,链接后海总部基地、深圳湾超级总部基地、留仙洞总部基地、高新园总部基地四大总部基地。
【五维立体交通 高效顺联世界】
轨道交通——四线三站两枢纽,地铁1号线、2号线以及近期即将落实的20号线、29号线,无缝覆盖更新片区。
道路交通——项目自身三纵三横路网,对外连接深南大道、北环大道、沙河东路等城市干道。
全球交通———15min直达深圳湾口岸及太子湾邮轮母港,直通港澳,18min直达福田高铁站,通达区外,26min直达宝安国际机场,环游世界,海陆空半小时交通圈,畅行世界。
【五大潮流商圈 一站式休闲度假】
汇集欢乐谷、沙河高尔夫、世界之窗,一站式体验城市度假 ; 5大商圈,缔造潮流时尚窗口:万象天地、京基百纳广场、益田假日广场、欢乐海岸、深圳湾万象城。
【六重稀缺生态 富氧有机城市绿洲】
山林湖海园廊在此相聚,每一次呼吸与远眺,都有来自国家级生态保护区的气息。
【超级商务群 为湾区再造新地标】
约 400 米双子塔国际超甲写字楼群,全球顶级设计团队巨著,重绘深圳天际线。计划引进世界顶奢酒店及轻奢商务酒店集群,融合在地文化,创作“慢生活”旅居酒店范本。
【旗舰商业 都市奢华窗口】
近40万方商业,SHOPPING MALL、街区商业、社区商业等,一条长达1.1公里的中央绿轴串联多元商业空间,商业主题涵盖城市顶奢、潮人艺术、高端社区消费、先锋潮流等不同类型。
【领袖尊享 城市核心区居住群】
配建有高端精品住宅及艺术公寓,成为深圳未来核心区域规模居住生活区。
【超级配套群 深圳生活方式中心】
超大规模城市公共配套,涵盖四所幼儿园共57班,三所九年一贯制学校共90班,约6.5万㎡社康、文化等公共配套设施。以及多维度会所体系满足不同公共生活需求。
【立体之城 六重立体交通】
创新打造地上地下六重结构立体化交通系统,不同交通系统分层互联,人行系统、城市公共道路系统,地下轨交系统快速接驳,最大程度实现人车分流,科学化疏解交通压力。
【共享之城 延伸生活边界】
多维共享空间系统,从商业消费、休闲漫步到艺术观赏,成为深圳一条可逛、可玩、可互动的24h开放潮流街区 ;
约30万㎡住宅与公寓架空层花园,打造亲子、文娱、运动等设施,无限拓展生活边界。
【艺术之城 国际艺术主场】
联合国际顶级艺术机构UAP ,构筑深圳未来公共艺术社区。
【全球顶级团队 共著超级作品】
全球近50家顶尖设计团队联袂共创,前后历经10余年匠心研磨,重绘未来白石洲。
联合华为、联通等高新科技领军企业,打造深圳最大规模城市更新智慧城区,覆盖城区、社区、家庭三大场景,全维演绎未来家园。
【深圳城市更新先锋】
绿景地产,三十余年深耕布局粤港澳大湾区,专注城市更新领域,深圳房地产综合实力前十强,开发运营项目遍及香港、深圳、珠海、东莞等湾区核心城市。
户型图
户型
面积
布局
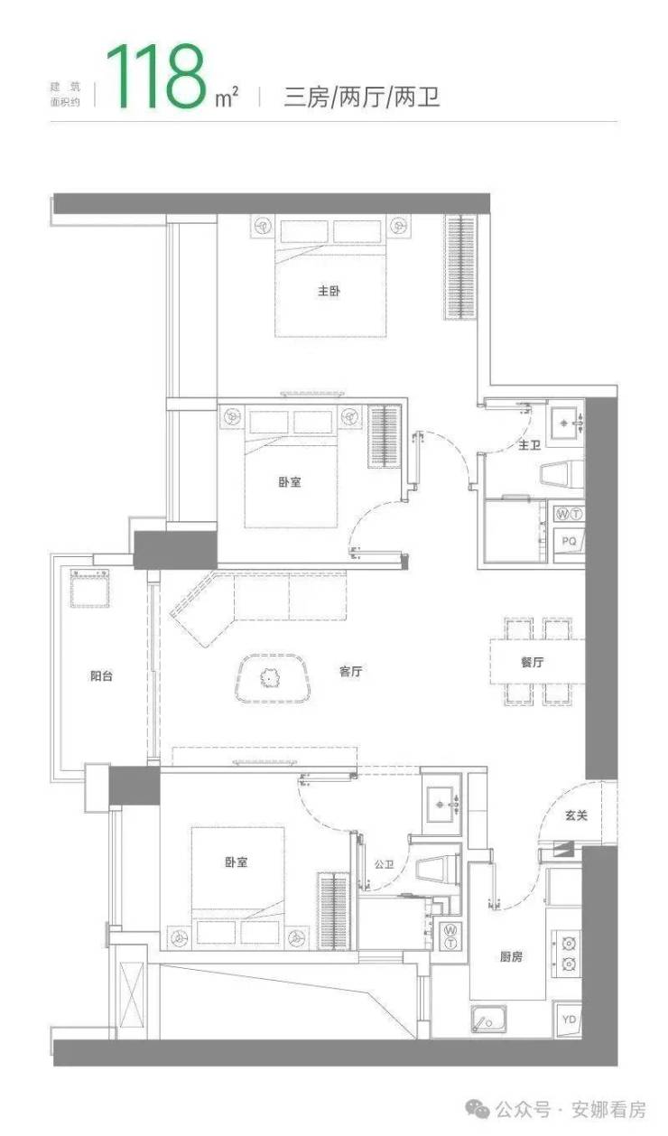
1110平三房两厅两卫
瞰景三房,卧室标配飘窗,观景阳台展开风景画卷
餐客一体化,连通阳台,畅享全家欢聚时刻
动静分区舒适化营造,休憩与家庭活动互不干扰
主卧私享化,独立卫浴、衣帽间,自在天地一隅户型
面积
布局
2118平三房两厅两卫
户型
面积
布局
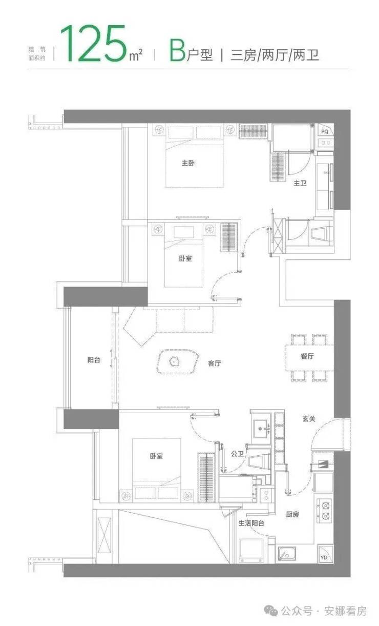
A125平三房两厅两卫
瞰景三房,飘窗、阳台拉开居住视野,主卧私享功能产备
LDK 一体化设计,打造无边界、社交化的餐客厨系统
动静分区舒适化营造,休憩与家庭活动互不干扰
双阳台设计,厨房连通生活阳台,延展更多空间,随心收纳户型
面积
布局
B125平三房两厅两卫
户型
面积
布局
C125平三房两厅两卫
绿景白石洲售楼处电话:400-088-3336(售楼中心)
绿景白石洲网上招商中心 | 欢迎来电咨询 | 请提前预约登记看房
免 责 声 明:
1、因编辑需要,文字和图片之间亦无必然联系,仅供读者参考
2、本平台致力分享有价值的内容,转载引用仅为传播更多信息之目的,所转载的所有文章、图
片、音频、视频文件等资料版权归版权所有人所有,因非原创文章及图片等内容无法逐一和版权
者联系,亦无法核实真实出处,如涉及侵权请联系后台让我们删除。
3、本平台所载的信息截止于本文推送时的情况,前述信息可能因政府规划调整及开发商无法控
制、预测原因而出现变化,以政府部门最新公布的规划文件及相关信息为准。
声明:本文由入驻焦点开放平台的作者撰写,除焦点官方账号外,观点仅代表作者本人,不代表焦点立场。
