深圳鸿荣源尚云2025首页网站-鸿荣源尚云欢迎您_鸿荣源尚云楼盘详情-价格-户型-学校-配套
扫描到手机,新闻随时看
扫一扫,用手机看文章
更加方便分享给朋友
深圳【鸿荣源尚云】
开发商售楼处电话咨询/预约热线:400-088-3336【售楼中心】24小时热线
深圳【鸿荣源尚云】售楼处电话:400-088-3336【营销中心】中介勿扰
深圳鸿荣源尚云楼盘详情介绍,包含售楼处电话、地址、户型图、小区图片、区位优势、交通、周边商业配套等楼盘详细资料;更详细楼盘资料和最新折扣价格,请拨打售楼处电话,销售会为您详细介绍楼盘。

深圳【鸿荣源尚云】售楼处电话:400-088-3336【营销中心】中介勿扰
一、项目硬核参数:龙华“卷王”配置?
基础信息:
地段: 民治街道人民路&工业路交汇处,隔壁就是壹方天地C区,下楼就能逛街的快乐谁懂?
体量: 总建面约23.6万㎡,分南北两期开发,规划1878户(可售商品房1278套),车位比1:0.81,开车党建议手速要快!
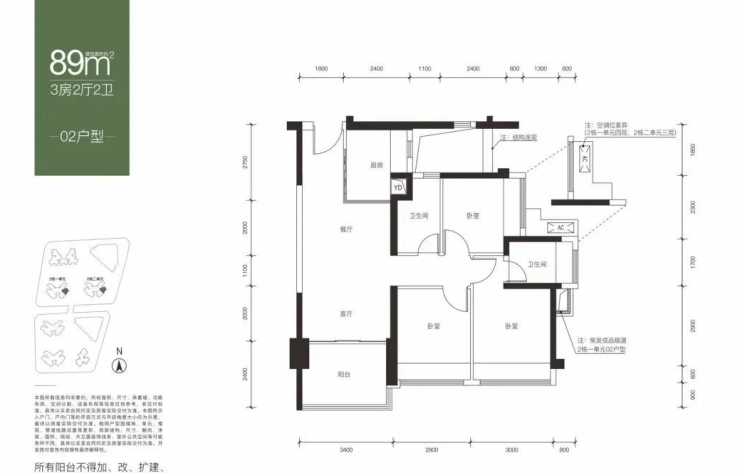
户型: 82-120㎡三至四房,2T3/3T6梯户比,刚需改善通吃,但高楼层朋友做好“电梯社交”准备~
交付: 2025年底精装交房,备案价5.5万/㎡,物业费5.9元/㎡,钱包瑟瑟发抖?别急,文末有彩蛋!
开发商背书:
鸿荣源,深圳地产界“扛把子”,壹方城、熙龙湾这些顶流都是它家的!品质有保障,但价格嘛……你懂的,品牌溢价少不了。

深圳【鸿荣源尚云】售楼处电话:400-088-3336【营销中心】中介勿扰

深圳【鸿荣源尚云】售楼处电话:400-088-3336【营销中心】中介勿扰



深圳【鸿荣源尚云】售楼处电话:400-088-3336【营销中心】中介勿扰

深圳【鸿荣源尚云】售楼处电话:400-088-3336【营销中心】中介勿扰
二、周边配套:龙华“六边形战士”?
交通:
现状: 4号线龙华站1.2公里(步行15分钟),6号线上芬站1.2公里,通勤党建议配辆小电驴。
未来: 规划25号线景龙站/油福站400米,27号线油福站双地铁加持,但“画饼”风险提示:地铁还没影儿,买房别只听规划!

深圳【鸿荣源尚云】售楼处电话:400-088-3336【营销中心】中介勿扰
教育:
家门口学校: 深圳市艺术高中民治学校(小学+初中),学位充足,目送式上学,懒妈福音!
其他资源: 龙华实验学校、华东师大附校等,但学区政策年年变,别赌学位,当配套加分更稳妥~

深圳【鸿荣源尚云】售楼处电话:400-088-3336【营销中心】中介勿扰
商业:
壹方天地: 60万㎡商业航母,从优衣库到爱马仕,从奶茶到米其林,下楼即享!逛吃党狂喜,月光族慎入。
超级商圈: 龙华规划打造200万㎡世界级消费中心,未来能否对标万象城?且看鸿荣源怎么“钞能力”发力。

深圳【鸿荣源尚云】售楼处电话:400-088-3336【营销中心】中介勿扰
旧改预期:
周边千万级旧改扎堆,城市界面未来可期,但施工噪音、灰尘预警!敏感人群建议选高楼层。

深圳【鸿荣源尚云】售楼处电话:400-088-3336【营销中心】中介勿扰
深圳【鸿荣源尚云】
开发商售楼处电话咨询/预约热线:400-088-3336【售楼中心】24小时热线
深圳【鸿荣源尚云】售楼处电话:400-088-3336【营销中心】中介勿扰
深圳鸿荣源尚云楼盘详情介绍,包含售楼处电话、地址、户型图、小区图片、区位优势、交通、周边商业配套等楼盘详细资料;更详细楼盘资料和最新折扣价格,请拨打售楼处电话,销售会为您详细介绍楼盘。
免责声明:
以上所发布的关于楼盘相关图文信息仅供您买房前参考,以上所有关于本楼盘的图文资料及说明请以最终以项目批文及双方在楼盘营销中心现场签署的买卖最终合同为准;本图文内容如无意中侵犯到某方权益,请联系我们将会及时处理!
声明:本文由入驻焦点开放平台的作者撰写,除焦点官方账号外,观点仅代表作者本人,不代表焦点立场。
