《中海云启源境》值不值得购买?深圳一梯队南山实验学校+96%得房率+高品质一体的《中海云启源境》
扫描到手机,新闻随时看
扫一扫,用手机看文章
更加方便分享给朋友
《中海云启源境》
◆◆深圳『深圳中心天元』售楼处电话:400-088-3336
◆◆深圳『深圳中心天元』售楼处电话:400-088-3336
◆◆来电预约登记——〢尊享Vip一对一专业置业顾问讲解◆◆
◆◆来电咨询最新售楼处地址,防控疫情人人有责,请提前联系售楼处销售进行预约登记!◆◆
◆◆预约优惠—〢售楼中心置业顾问为您买房保驾护航〢—匠心钜制恭迎品鉴◆◆
黑马学校
楼下即是南山实验园丁学校,可实现目送式上学,口碑很不错,据说前几年从麒麟学校调了一批师资力量。最近的表现也十分亮眼,据民间数据统计,2023年公办普高率85%,2024年90%,超过了麒麟、育才,仅次于南二外、高新、文华等南山顶尖一梯队名校!

图源网络
值得一提的是,该校为小班化教学,平均一个班35人左右,相比其他学校一个班少了十几个孩子,老师投射的注意力也会更多。
加上不远处就是南山区政府/科技园,来往的不少都是公务员和码农家庭,生源也十分纯粹。
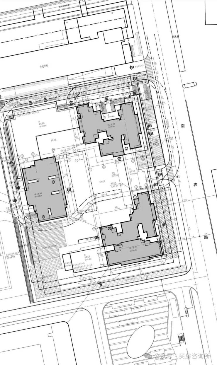
南山区润亚奕拓厂房“焕新”而来的中海云启源境家园。该项目地理位置优越,紧邻南山实验园丁学校,坐拥中山公园景观,紧邻地铁12号线的同乐南站和中山公园站,交通十分便捷。项目规划有建筑面积约90㎡、95㎡、105㎡、143㎡的三至四房户型,以满足不同家庭的居住需求,预计将于2025年5月底入市。
品质打造
项目外立面用的铝板+low-e玻璃,定制全卧室YKKAP系统窗。包括全屋采用国际一线品牌,如杜拉维特、唯宝、汉斯格雅、大金等,还配置酒店式大堂、下沉式会所、星空顶地库,这放在以往都是千万豪宅的标准!
外立面设计以现代风格为主,采用玻璃、铝线条和真石漆材料,强调现代与传统材料的对比,实现虚实结合,提供精致而丰富的视觉体验。
设计方面,采用围合式布局,结合超高层与高层建筑,打造具有丰富景观资源的现代住宅社区。
立面设计以现代风格为主,采用玻璃、铝线条和真石漆材料,强调现代与传统材料的对比,实现虚实结合,提供精致而丰富的视觉体验。
小区占地面积仅9006.52平米,共 3 栋住宅楼,其中2栋21-47层商品房住宅、1 栋 46层保障房。总户数708户,普通商品房298户,保障性住房410户。
其中可售298户商品房主力户型建面约90-105-143㎡3-4房,该楼盘与其说是商品房小区,不如说是保障房小区。户型据说是新规户型,使用率应该能高点,价格方面目前参考附近去年开盘的荔源雅苑备案均价7.26万,开盘当天88折,折后均价6.55万,89-117㎡折后总价578-823万
产品方面,在不少开发商降标减配的情况下,中海云启源境还坚持高质筑家,不计成本为品质“做加法”。
项目此次推出建面约90-95-105-143㎡户型,以新规标准打造,使用率超95%,每一个户型功能空间尺度都不将就,质价比直接拉满。
△90㎡西南朝向看的是学校以及豪方天际跟前海东岸得园林(以上为航拍视野仅供参考)
『深圳中心天元』售楼处电话:400-088-3336
△以上为95-105㎡东北朝向视野,能看到远处的留仙洞总部基地跟南山科技园,也是视野最开阔的一个朝向但是朝向是东北(以上为航拍视野仅供参考)
△以上为143㎡景观视野,可以看到南山科技园跟前面的中山公园,但是可能会被旁边的豪方天际写字楼遮挡一些(以上为航拍视野仅供参考)
其中95-105两个户型可以改3+1房
中海云启源境处在南山与宝安交界处的南头片区中山公园北,即北环大道以北,南海大道以西,平南铁路以南,项目与周边环境相对独立,与豪方天际相邻
通过北环大道和南海大道等交通干线和前海自贸区、南油商务圈、后海金融总部基地、科技园、留仙洞总部基地以及尖岗山战略新兴产业园等核心商务圈都联系紧密。无论去哪个商务聚集区,都比较便利。“南山各大产业园通勤”是这个项目比较大的亮点。拿导航看了下,从项目位置到南山科技园,仅仅需要8分钟。去留仙洞总部基地以及前海也是在10分钟左右
通勤便捷
配套还行
中海云启源境距离12号线同乐南站600米距离,还有建设中的15号线同乐关站双地铁口物业
贯穿前海、后海、南山、宝安等重要片区,环经济发展核心区域。
这种强大的轨道交通体系,尤其是地铁4-5站就能到高新园北、中、南区的优势,决定这里将承接大量高新人才的高端居住需求,想象空间很大。
教育配套:家门口一站式优质教育,目送式书香学府小学&初中:楼下就是南山实验教育集团园丁学校,2017年9月开办,是隶属于南山区教育局的一所九年一贯制公办学校。小学初中成绩在南山区算是一个比较不错的学校,加上南山实验的头衔
商业配套:项目旁边是豪方天际的写字楼的配套商业以及和前海东岸的底商互动,总建筑面积约8.14万平米基本生活配套都有。周边2-3公里还有约1万㎡隆尚Minitown(招商中,直线约100m)、海雅缤纷城、沃尔玛、西丽约8万㎡云城万科里、超50万㎡南山、宝中成熟中心高端商圈,尽揽一城繁华。
生态配套:项目南侧是南山区中山公园与项目相隔北环大道,通过人行天桥连接。中山公园是深圳最大、历史最悠久的城市公园。占地面积达49万平方米(相当于4个豪方天际和4个前海东岸占地大小),定位为城市形象名片,里面有儿童娱乐场所等休闲设施,是周末、空闲时、晚饭后散步游玩的好去处。

《中海云启源境》
◆◆深圳『深圳中心天元』售楼处电话:400-088-3336
◆◆深圳『深圳中心天元』售楼处电话:400-088-3336
◆◆来电预约登记——〢尊享Vip一对一专业置业顾问讲解◆◆
◆◆来电咨询最新售楼处地址,防控疫情人人有责,请提前联系售楼处销售进行预约登记!◆◆
◆◆预约优惠—〢售楼中心置业顾问为您买房保驾护航〢—匠心钜制恭迎品鉴◆◆
免责声明:
1、文章部分文字、图片、视频来源于网络。
2、我们所转载的文章、图片、音频视频文件等资料版权归版权所有人所有,因非原创文章及图片等内容无法和版权者联系
3.本网页如无意中侵犯了媒体或个人的知识产权,请留言或来电告知我们删除。
声明:本文由入驻焦点开放平台的作者撰写,除焦点官方账号外,观点仅代表作者本人,不代表焦点立场。
