荣超新时代广场售楼处电话_24小时电话|深圳荣超新时代广场首页网站_售楼处|楼盘详情
扫描到手机,新闻随时看
扫一扫,用手机看文章
更加方便分享给朋友
深圳「荣超新时代广场」售楼部热线📞:400-088-3336
在售户型|剩余楼层|价格|折扣|预约看房
荣超新时代广场更多信息请致电📞:400-088-3336
到访售楼部需提前预约,暂不接受临时到访,看房请提前电话预约售楼部
4000883336
荣超新时代广场项目概况
位置:位于龙华区观澜高新园核心区(澜清一路与观盛四路交汇处),毗邻华为、富士康总部,属深圳北部新中心和数字经济圈核心。
开发背景:荣超集团31年专业经验,拥有福田CBD多个地标项目,物业获国家一级资质,管理面积超260万㎡。
建筑与业态
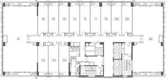
体量:总建面约10万㎡,含两栋21层办公塔楼(层高4.5米)及3.1万㎡商业裙楼。
办公:单层面积约956㎡,灵活分割123-1035㎡空间,现楼销售,价格1.6万/㎡起,支持个人/公司名义购买。
商业:集中式MALL(负1-5层),定位区域潮流中心,涵盖全业态高端消费。
设计亮点:立体绿化、多层级屋顶花园、小进深大面宽结构,核心筒内置提升空间利用率。
配套与交通
周边资源:
鹭湖中心城“行政+科技+文化+生活”综合服务区,聚集名校、豪宅及鹭湖四馆(图书馆、群艺馆等)。
观澜高新园聚集超50%龙华上市公司,重点发展“BT+IT”融合产业。
交通:地铁22号线(观湖站,建设中,预计2028年通车)、有轨电车2/3号线,深广中轴城际线(规划)。
产权与交付
产权:商业办公用地,40年(2020-2060年)。
车位:798个(含地下580个)。
荣超新时代广场以产城融合定位,依托区域产业集聚与政策支持,兼具商务效率与生态宜居属性,成为深圳中轴战略升级的代表性项目。
观澜唯一可售商业写字楼
龙华北部新中心 鹭湖中心城新地标
观澜未来唯一可售商业办公 准现楼
唯一专业写字楼开发商 荣超打造
地铁口•购物中心上•带阳台/上下水
项目基础信息
开发商:荣超集团
建筑面积:整体建面10万㎡,办公建面31028m
产权性质:C类 商业办公
业态构成:购物中心(-1-5F)+甲级写字楼(7-21F])
建筑高度:高100m,地上21层,地下3层
大堂高度:两层挑高9m
办公建面:41-123-253-499-1035㎡整层
办公层高:4.5m
空调系统:公区中央空调 办公区自装
电梯系统:三菱 8部客梯+2部货梯 电梯配比3000:1
停车位:798个 车位配比50:1
物管公司:荣超物业
【城市中心 双核叠加汇聚产业精粹资源】
龙华产核——鹭湖中心城地处龙华万亿级数字经济圈、梅观创新走廊的交汇中心,亦是龙华六大重点片区的核心枢纽
城市新核——鹭湖中心城定位为深圳北部新中心,龙华区“行政+科技+文化+生活”综合服务中心,城市精华配套、产业要素完善。作为区政府所在地,其低密度生态环境、文体设施齐全[鹭湖四馆:龙华区图书馆、群艺馆、大剧院和科技馆]、豪宅小区聚集,非常宜居宜业,价格抗跌
【总部中心 科创集群引领区域价值腾飞】
观澜高新园——鹭湖中心城定位最前沿、发展最成熟、实力最强劲区域:上市企业数量占龙华区50%,占鹭湖中心城70%,是龙华上市公司最密集区域
观澜高新园将构建 “BT+IT” (生物技术和信息技术)融合发展示范区,并依托上述龙头企业,吸引龙头企业及上下游企业,持续提升商务氛围与区域价值
【枢纽中心 立体交通加速商务通勤效率】
鹭湖枢纽——2地铁1城际1电车交汇,与深圳北站形成一南一北双枢纽
【商务中心 纯粹甲级营造舒适高效办公】
全玻璃幕墙 彰显不凡气魄
两层挑高大堂 大气通透 企业尊崇会客厅
10部三菱电梯 配比3000:1 引领高效商务
50:1超高车位配比 畅享无忧出行
带双阳台+开启扇 24小时鲜氧环绕
【稀缺商办 鹭湖唯一可售商业写字楼】
鹭湖中心城唯一可售商业写字楼/准现楼
可个人名义购买,转让灵活,持有期间无需缴纳房产税
【轻松进阶 鹭湖唯一1035㎡享整层权益】
建面1035㎡区域内最低整层门槛,独立整层,不受外部干扰,办公形象高端且实用率高达75%
14个独立红本单位,单套41㎡起,户型方正可任意组合,融资变现更灵活
【特色配置 鹭湖唯一带上下水办公产品】
带上下水,[ 办公+ ] 组合更丰富多元华
在售面积: 123-253-499-1035㎡ 旗舰资产
均价: 2万/㎡
使用率: 67.4%
产权年限: 2020-2060年【40年】
【顶尖配套 鹭湖唯一大型购物中心】
片区唯一大型购物中心,建面约3.1万㎡,提升整体形象的同时,可满足企业商务接待与员工就餐等一站式需求
【品质保障 鹭湖唯一专业写字楼开发商】
荣超集团——创立于1993年,31年开发运营经验,专注于商务写字楼开发运营,是最早进入福田CBD的专业写字楼开发商
荣超物业——国家一级物业管理资质,写字楼物业管理标杆企业,管理面积超260万㎡,荣获“物业服务企业综合实力测评TOP100”、“深圳物业服务企业综合实力百强”
深圳「荣超新时代广场」售楼部热线📞:400-088-3336
在售户型|剩余楼层|价格|折扣|预约看房
荣超新时代广场更多信息请致电📞:400-088-3336
到访售楼部需提前预约,暂不接受临时到访,看房请提前电话预约售楼部
温馨提示:本宣传资料为邀约邀请,针对本项目概况进行介绍,仅供参考不作为销售承诺。项目不排除因政府相关规划、规定及开发商未能控制的原因而发生变化,最终以双方签署的正式《商品房预售/销售合同》及其他相关协议文本为准。关于该房屋所在小区所属片区商业、学校等相关配套,其建设进度、规划方案等事项均由政府相关主管部门主导,资料中所示距离为地图直线距离及高德地图导航数据,最终以政府相关主管部门出具的书面文件为准。部分图片来源于网络,如有侵权,请联系删除。
声明:本文由入驻焦点开放平台的作者撰写,除焦点官方账号外,观点仅代表作者本人,不代表焦点立场。
