深圳新世界香蜜四季售楼处电话→售楼中心首页网站→楼盘详情→24小时热线电话
扫描到手机,新闻随时看
扫一扫,用手机看文章
更加方便分享给朋友
【新世界香蜜四季开发商线上售楼处咨询/预约TEL热线📞:400-088-3336 】
温馨提示:过来现场看房请务必提前拨打400-088-3336来电预约!
2018年,福田区一号文件首次提出,香蜜湖片区将打造深圳金融街及国际交流中心,自此,香蜜湖的一举一动,动着深圳人的心,但由于土地历史问题盘根错节,一度推进缓慢,近两年,在各方的努力协调下,对标上海陆家嘴、北京金融街的香蜜湖新金融中心终于有了实质性进展!

新世界香蜜四季家园位于香蜜湖新金融中心附近,按照目前规划,香蜜湖新金融中心主要分为北区和中区,中区未来将规划落成深圳金融文化中心、深圳博物馆、深圳国际演艺中心三馆,北区是深圳国际交流中心。
项目分两个地块开发,用地面积约5.5万㎡,规划总建面约60万㎡。其中住宅地块位于03-02-06,占地4.4万,建面约46.7万,其中含住宅约20.3万㎡(含保障房1.5万㎡)、商务公寓约3万㎡、商业约5万㎡,以及配建有幼儿园和图书馆等市政生活配套,住宅约923套。
香蜜四季家园规划11栋建筑,包含商品房、回迁房、保障房及商务公寓,项目可售商品住宅总套数923套,:3梯3户 / 3梯4户 /3梯5户,车位数2681个。
其中1栋1单元/2单元/3单元和2栋1单元/2单元为商品房,1栋4单元为保障房,1栋5单元为商务公寓,1栋6单元/7单元/8单元为回迁房,3栋为幼儿园。
商品房低区为3梯5户,高区为3梯3户,回迁房为3梯7/8户,梯户比低区与高区做了分区调整。
面积段也比较复杂,平层(低区)有105-108㎡,122-124㎡,123-126㎡,128-129㎡,140-143㎡,144-145㎡共计5个户型,
平层高区219-221㎡,277-279㎡两个户型;
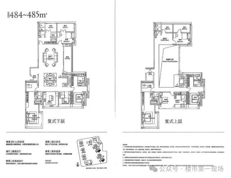
高区复式还有231-233㎡,354-358㎡,484-485㎡三个户型。
新世界香蜜四季家园目位于福田区香梅路与景田南路交汇处,处于地铁1号线香蜜湖站与9号线香梅站之间,距离两个地铁口的直线距离均在500米左右,属于双地铁口物业。距离市民中心约1.4公里,南侧是深圳高尔夫俱乐部,西侧是香蜜湖,地理位置非常优越。
作为紧邻传统豪宅区香蜜湖的项目,项目周边二手房如水榭花都、香蜜湖1号和熙园等都是香蜜湖数一数二的豪宅,所以挂牌价都较高,基本在18-20万/㎡。
作为集新规住宅、时尚精奢MALL、五星级酒店、臻藏雅宅、高定公寓等业态的奢华综合体,总建面约55万㎡,新世界香蜜四季的配套实力足以叫板深圳湾的顶级项目。
项目鸟瞰效果图
首先,是深圳罕有的景观视野。项目南侧是开阔的深圳高尔夫俱乐部景观,高层单位可将绿茵尽收眼底。西南方国际演艺中心的轮廓已现,西北方香蜜湖的波光粼粼,共同构筑了难以复制的景观资源。
其次,产品打造是大手笔。据说力邀了PTAD、DK、Benoy、CCD、ALT、HAOY等全球知名设计团队联袂打造,从香蜜湖城市底蕴汲取灵感,以世界建筑视野演绎,将打造一个时代人居藏品。
项目设计师团队示意图
项目效果图看起来也是非常高大上
其中进度最快的香蜜湖华泰小区城市更新项目于2022年9月8日取得《建筑工程施工许可证》。
华泰小区城市更新项目现已确定案名为新世界香蜜四季家园。
2022年6月22日,福田区城市更新和土地整备局发布关于公布新世界香蜜四季家园项目建设工程规划许可证及总平面图的公告。
目前该旧改项目,出地面10多层,预计今年9月入市,历经13年,香蜜湖也将迎来新住宅!
项目的位置不必多说,地段非常好,紧靠香蜜湖豪宅区,北边有水榭花都、香蜜湖一号、熙园等多个豪宅,整体居住氛围非常静谧舒适。
其周边配套也非常齐全,交通配套上,双地铁,旁边有1号线香蜜湖站与9号线香梅站,距离都在500米左右 ,步行大约需要5-10分钟。
项目毗邻香梅路与新闻路,距离深南大道也非常近,自驾也非常方便。
商业配套上,项目自带5万㎡商业,周边还有香蜜湖沃尔玛、香蜜湖1979文化新天地、福田山姆会员店、京基滨河时代中心城广场、皇庭广场、星河cocopark、购物公园等大型购物中心。
教育配套上 ,由于项目实际上属于景田南片区,因而对口学校是福田景鹏小学、荔园外国语小学 和福田黄埔学校初中部(目前已被北大附中接管) ,此外,项目一旁还有正在建设的福田人民小学,未来上学也很近。
许多家长对北大附中颇为熟悉,它创办于1960年,作为北京市示范高中,是北京大学四级火箭(小学—中学—大学—研究生院)培养体系的重要组成部分,同时也是北京大学基础教育研究实践和后备人才培养基地。
北大附中在教学上继承北大“学术自由、兼容并包”的传统,拥有民主、科学的学术氛围,秉承“育人为本、质量第一、突出特色、全面发展”办学思想,以北大“勤奋、严谨、求实、创新”校训作为学校的教风和学风。
【新世界香蜜四季开发商线上售楼处咨询/预约TEL热线📞:400-088-3336 】
温馨提示:过来现场看房请务必提前拨打400-088-3336来电预约!
免责声明:我们致力于保护作者版权,转载或引用仅为传播楼盘更多信息,本文部分图片可能来源于网络,无法核实其真实出处,如涉及侵权请联系我们并及时配合处理。
声明:本文由入驻焦点开放平台的作者撰写,除焦点官方账号外,观点仅代表作者本人,不代表焦点立场。
