深圳南山翰熙典居售楼处电话→楼盘百科→首页网站详情→24小时热线电话
扫描到手机,新闻随时看
扫一扫,用手机看文章
更加方便分享给朋友
深圳南山【翰熙典居】
翰熙典居售楼处电话:400-088-3336(营销中心)
翰熙典居售楼处电话:400-088-3336【营销中心】_24小时电话
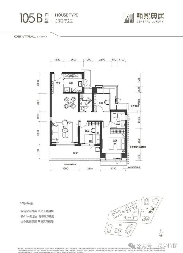
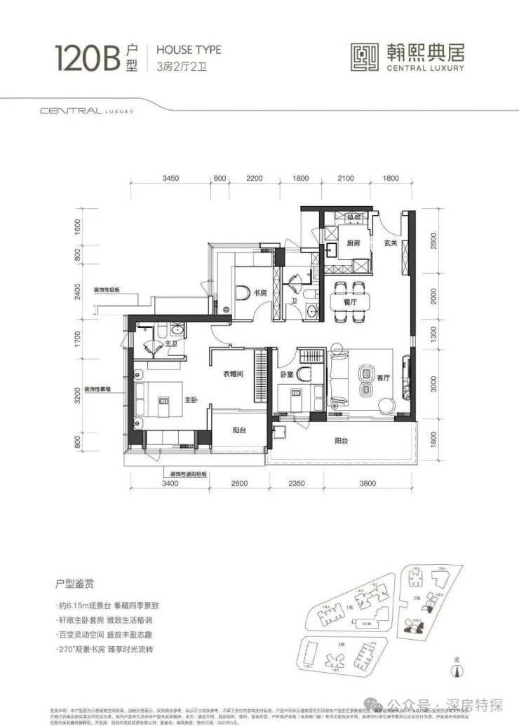
户型图丨楼盘详情丨折扣价格丨最新房源丨周边配套丨
欢迎来电咨询〢尊享内部优惠服务〢预约案场内部销售人员〢
专业热情一对一服务!为您安排楼盘内场专业销售人员一对一接待!让你买的放心住的舒心!
4000883336
「翰熙典居」原为桂庙新村城市更新单元项目,位于南山区粤海街道白石路与学府路交叉口西北侧,东临白石路,西近南海大道,南临学府路,北面与深圳大学毗邻。周边集聚了腾讯滨海大厦、软件产业基地等写字楼,地理位置优越。
从位置上看,项目临近深大南站,9号线和已经在建15号线在此交汇。其中,地铁15号线串联前海湾、大铲湾、留仙洞总部基地、西丽交通枢纽、南山高新科技园等,是深圳最具有价值的一个圈。
项目介绍
翰熙典居总占地70224㎡(相当于10个标准足球场大小),定位是打造集居住、商业、办公、酒店及公共配套设施为一体的综合社区。
项目开发建设用地41660㎡,容积率8.9,计容建筑面积369100㎡,包含住宅249950㎡(含人才住房和保障性住房32500㎡),商业、办公及旅馆业建筑106530㎡(含商业文化设施不低于5330㎡)。
另外,项目还有规划近12620㎡的公共配套设施、3200㎡ 的12班幼儿园、占地面2900㎡公交首末站等,并配建占地面积1500㎡的社区体育活动场地。
分三个地块建设
01地块,规划总建面约17.3万㎡,容积率9.28。规划住宅建面约8.9万㎡,商业建面约3.2万㎡。
规划为3栋超高层塔楼住宅+幼儿园,1栋一、二单元193米55层,1栋三单元为保障房157米44层。
规划1038套,其中保障房612套+回迁179套+可售247套,停车位834个。
02地块,规划总建面约16万㎡,容积率9.12。规划住宅建面约8.37万㎡,商业建面约1万㎡,办公面积约1.7㎡。
规划为4栋超高层塔楼,2栋一单元住宅174米53层,2栋二单元办公130米27层,2栋三单元住宅168米51层,2栋4单元住宅175米53层。
规划872套,其中回迁544套+可售328套,停车位747个。
03地块,规划总建面约17.6万㎡,容积率11.44。规划住宅建面约7.65万㎡,商业建面约1.5万㎡,办公面积约0.6万㎡,酒店约1.9万㎡。
规划为3栋超高层塔楼,3栋一单元住宅174米53层,3栋二单元住宅178米53层,3栋三单元办公+酒店170米36层。
规划1120套,其中回迁981套+可售139套,停车位1019个。
吹风价低楼层8W+,高楼层9W+,说实话,如果9W以内,买这个楼盘高楼层还是可以的,如果超过10W+,就没什么意义了。
首先10W左右的新盘太多了,没有什么竞争力;
其次买学位不用考虑这个楼盘,东侧1KM,1100W可以上车南外高新的顶级学位房;
最后这个地段、这个产品、这个户型设计,如果10W+,前海片区可以随便去挑了,虽然板块上没那么核心,但是不代表没有升值空间了。
01
交通配套
距离9号线深大站不到500米,未来周边还有15号线(在建中)经过,且靠近南海大道、滨海大道,不管是地铁或是驾车出行都十分方便。
02
商业配套
商业配套
2km内是后海商圈,有大家熟知的「海岸城」、「保利文化广场」、「茂业百货」、「海雅百货」等。
3km左右有「深圳湾万象城」、「后海汇」等,自驾车10分钟内几乎包揽了全深圳从顶奢到经济型消费的所有商场。
03
教育配套
教育配套
据目前南山区学区地图显示,桂庙新村在南山区第二外国语学校(集团)学府一小和南山区第二外国语学校(集团)学府中学范围内。南二外学府一小在南山属于第三梯队,南二外学府中学目前在南山还不错能排到前十。
小学
初中
04
周边房价
目前周边没有新房供应,二手放盘也很少,基本是为2000年左右的老社区,主要有锦隆花园,最近一套成交87㎡两房,总价623万,单价7.16万/㎡,挂盘价在7.65万/㎡。学林雅院最近一套成交83㎡两房,总价538万,单价6.5万/㎡,挂盘价在7.7万/㎡。
05
文体配套
地处科技园核心和深大校园,临近的仅有文心公园、科技公园,稍远一点是粤海街道文体中心、深圳湾公园、人才公园等。
深圳南山【翰熙典居】
翰熙典居售楼处电话:400-088-3336(营销中心)
翰熙典居售楼处电话:400-088-3336【营销中心】_24小时电话
户型图丨楼盘详情丨折扣价格丨最新房源丨周边配套丨
欢迎来电咨询〢尊享内部优惠服务〢预约案场内部销售人员〢
专业热情一对一服务!为您安排楼盘内场专业销售人员一对一接待!让你买的放心住的舒心!
温馨提示:本宣传资料为邀约邀请,针对本项目概况进行介绍,仅供参考不作为销售承诺。项目不排除因政府相关规划、规定及开发商未能控制的原因而发生变化,最终以双方签署的正式《商品房预售/销售合同》及其他相关协议文本为准。关于该房屋所在小区所属片区商业、学校等相关配套,其建设进度、规划方案等事项均由政府相关主管部门主导,资料中所示距离为地图直线距离及高德地图导航数据,最终以政府相关主管部门出具的书面文件为准。部分图片来源于网络,如有侵权,请联系删除。
声明:本文由入驻焦点开放平台的作者撰写,除焦点官方账号外,观点仅代表作者本人,不代表焦点立场。
