汉京金融中心售楼处电话→汉京金融中心售楼中心首页网站→楼盘百科
扫描到手机,新闻随时看
扫一扫,用手机看文章
更加方便分享给朋友
【汉京中心】深圳南山科技园写字楼租赁,汉京中心,一座将改变城市天际线的摩天建筑。作为深南大道,350米的地标建筑,汉京中心超越传统形式与材质的界限,突破现代主义与后现代主义的边界,以棱角和折线诠释独特的气质,让建筑与人与城市产生和谐共生的关系。
汉京中心坐落于南山科技园商务核心区,占领深南大道一线优质领地,享成熟配套与多维交通,快速通达三大口岸、高铁站、机场。由普利兹克奖获得者汤姆·梅恩倾力打造,采用独特的核心筒外置设计,成就办公区270度景观,三倍节能效果。项目荣获“金块奖”、”国际地产奖”、“深圳最佳创意建筑奖”及LEED铂金级认证和绿色建筑三星认证等多项荣誉,是深南道商务艺术地标名片。汉京中心总户数255套,当期户数可售办公101套。
汉京中心的整体雕塑感强,大胆、创新、国际范的特色,一气呵成的气势,彰显出大师一贯的国际风范。作为在深南大道上未来的创意地标,具有很高的识别度及昭示性。
项目信息
开发商:汉京集团
总面积:占地1.1万㎡,总建面16.6万㎡,其中写字楼10万㎡,商业3万㎡
网络:光纤入户,各大运营商均可接入
大堂高度:30米挑高大堂
电梯:22部客梯+2部货梯,单梯服务面积4100㎡
停车位:862个,负2—负5层,月卡1200元,临停10元/时,封顶60元/天
电力系统:双回路供电
幕墙系统:LOW--E中空玻璃幕墙,隔音隔热防辐射
汉京金融中心租售中心:4000-88-3336
【出售信息】
面积:单套390㎡起,整层1380—1800㎡,单层4个单位,全部朝南向
价格:中区均价6万/㎡,高区均价8万/㎡(该价格为参考价格,实际价格以开发商为准)
出售楼层:35-57楼,总高61层,地下5层,350m,深圳第七高楼,在售最高楼
深圳在售最高楼!科技园唯一在售超甲级写字楼!
装修:标准交付,天花地板,安装电动窗帘
层高:4.5m,净高3.2m
使用率:单套63—整层72%
管理费:48元/㎡/月(含工作日空调)
空调时间:工作日早8晚10,加班及周末收费0.35元/㎡/时
产权年限:40年(2013年—2053年)
交楼:现房,随时入驻
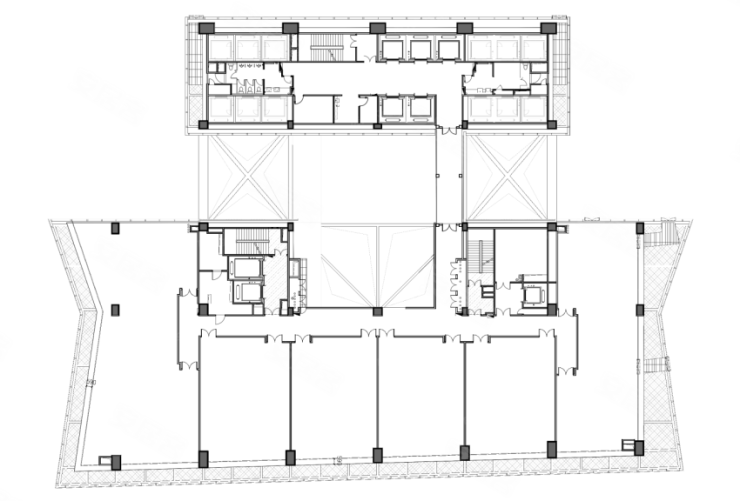
『汉京金融中心大厦』项目位于南山高新区,临深南大道北侧,总占地面积11017㎡,容积率10,建筑覆盖率60%,其中办公面积100170㎡,地下负二至五层为停车场,地上4层至负一层为大堂及商业配套,5层以上为办公,其中14-33层为出租楼层,35-57层为出售楼层,其余为开发商自持楼层。
区位介绍
汉京金融中心位于深圳南山高新区,项目附近有华润万象天地,新城花园商业街,自带底商等大型商业配套。交通有深南大道可通达各大机场、码头高铁站等;附近有地铁1号线高新园站,可快速通勤。
作为深南大道片区稀缺的可售型超甲级地标写字楼,汉京金融中心紧邻腾讯大厦,坐拥深南大道与科技园中区两项绝佳地段条件,已确定转型的前海蛇口自贸区也在不远处。
结构、户型图


免责声明:本文所有文章、图片、音频视频文件等资料版权归版权所有人所有,因非原创文章及图片等内容无法一一和版权者联系,如原作者或编辑认为作品不宜上网供大家浏览,请及时来电告之,我们将立即予以修改或删除。本文如无意中侵犯了某方的知识产权,告之即删。
声明:本文由入驻焦点开放平台的作者撰写,除焦点官方账号外,观点仅代表作者本人,不代表焦点立场。
