华侨城深圳湾新玺名苑售楼处(首页网站)华侨城深圳湾新玺名苑-楼盘详情-最新价格-户型图-容积率@售楼处
扫描到手机,新闻随时看
扫一扫,用手机看文章
更加方便分享给朋友
深圳【华侨城新玺】
开发商售楼处电话咨询/预约热线:400-088-3336【售楼中心】24小时热线
深圳【华侨城新玺】售楼处电话:400-088-3336【营销中心】中介勿扰
深圳华侨城新玺楼盘详情介绍,包含售楼处电话、地址、户型图、小区图片、区位优势、交通、周边商业配套等楼盘详细资料;更详细楼盘资料和最新折扣价格,请拨打售楼处电话,销售会为您详细介绍楼盘。
深圳【华侨城新玺】售楼处电话:400-088-3336【营销中心】中介勿扰
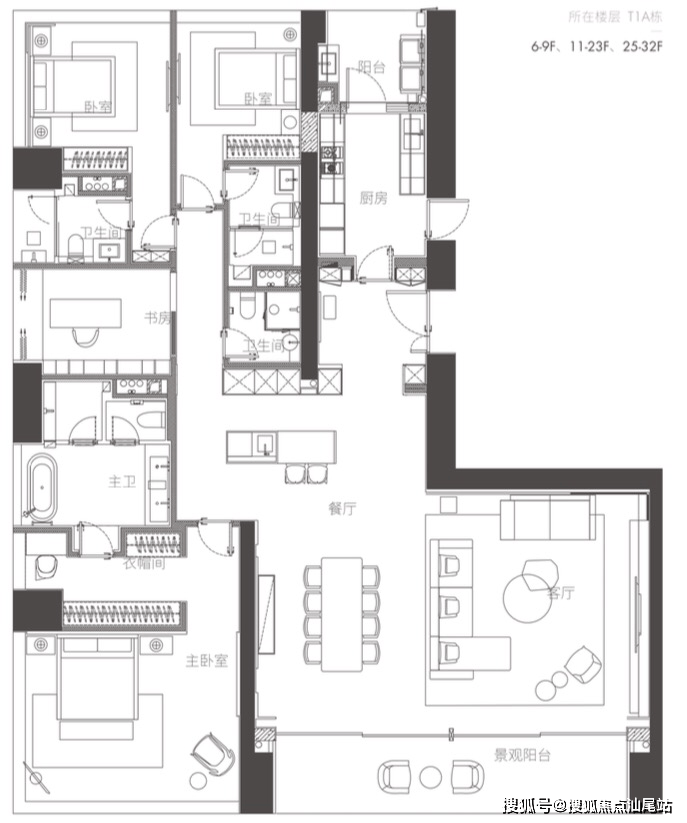
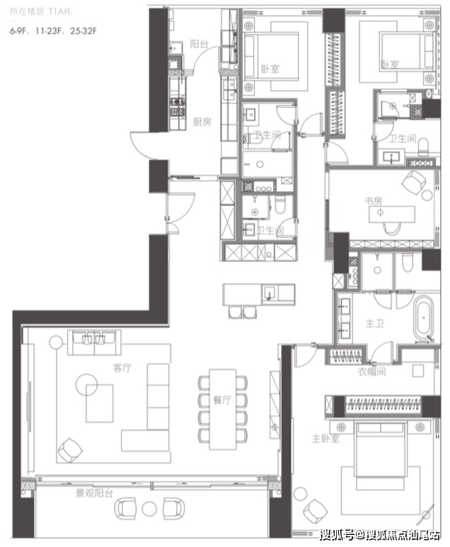
户型布局
华侨城新玺提供多种户型选择,满足不同购房者的需求。户型面积范围广泛,从232㎡到700㎡不等。具体户型包括1室1厅1卫、2室2厅2卫、3室2厅3卫、4室3厅5卫、5室3厅6卫以及6室3厅7卫等多种配置。户型设计合理,空间宽敞明亮,注重人性化需求。部分户型还配备了超大阳台和全景落地窗,让居民能够尽享海景和城市美景。
【一栋 一、二单元】
(6-32层)
三梯两户

深圳【华侨城新玺】售楼处电话:400-088-3336【营销中心】中介勿扰
01户型 西端户 约350㎡ 四房两厅四卫
(01、04镜像对称)
南、西、北,三面景观视野
看深圳湾海景、内海景、城市景观

04户型 东端户 约350㎡ 四房两厅四卫
(01、04镜像对称)
南、东、北,三面景观视野
看深圳湾海景、内海景、城市景观

深圳【华侨城新玺】售楼处电话:400-088-3336【营销中心】中介勿扰
交通枢纽,世界版图从容跨越:
太子湾邮轮母港华南地区唯一的集“海、路、空、铁”于一体的现代化国际邮轮母港,速达香港、达澳门,畅游日本、韩国、新加坡、马来西亚等多国,瞬接全球;
从华侨城新玺出发,沿望海路约3公里车程到太子湾邮轮母港——深圳连通港澳、走向世界的“海上门户”,从海上高效连通港珠澳及中山等城市,提供便捷商旅服务;更有3条“湾区海上游”航线,及3条不定期的国际邮轮航线,去往日本、越南、菲律宾,探索更广袤的世界。
商业配套:17964平米顶上商业+1800平米海洋博物馆+6200平米其它三面临海。
深圳【华侨城新玺】售楼处电话:400-088-3336【营销中心】中介勿扰
主要分布在地下1-4层,规划了下沉式广场、精致生态的融合式商业空间、小型快闪店的公共商业空间、服务于公寓及酒店客户的私密商业空间,
深圳【华侨城新玺】售楼处电话:400-088-3336【营销中心】中介勿扰
深圳【华侨城新玺】售楼处电话:400-088-3336【营销中心】中介勿扰
周边5-15分钟之内有海上世界、太子湾K11 ECOAST,中国一线城市首个临海K11,也是内地17家K11中面积最大的旗舰店。宝能All City、海岸城、深圳湾万象城,来福士广场,恒裕香悦里,后海汇等商业配套,购物选项丰富,商业氛围较浓。
深圳【华侨城新玺】售楼处电话:400-088-3336【营销中心】中介勿扰
花园中建城市,城市里造花园:
针对不同场景的需求以及景观优势,园林皆有呼应,观景空间、室外聚会空间、游乐空间、休闲空间,多元体验一站尽享。
深圳【华侨城新玺】
开发商售楼处电话咨询/预约热线:400-088-3336【售楼中心】24小时热线
深圳【华侨城新玺】售楼处电话:400-088-3336【营销中心】中介勿扰
深圳华侨城新玺楼盘详情介绍,包含售楼处电话、地址、户型图、小区图片、区位优势、交通、周边商业配套等楼盘详细资料;更详细楼盘资料和最新折扣价格,请拨打售楼处电话,销售会为您详细介绍楼盘。
免责声明:
以上所发布的关于楼盘相关图文信息仅供您买房前参考,以上所有关于本楼盘的图文资料及说明请以最终以项目批文及双方在楼盘营销中心现场签署的买卖最终合同为准;本图文内容如无意中侵犯到某方权益,请联系我们将会及时处理!
声明:本文由入驻焦点开放平台的作者撰写,除焦点官方账号外,观点仅代表作者本人,不代表焦点立场。
