深业颐樾府售楼处电话→深业颐樾府售楼中心电话→楼盘百科→深业颐樾府首页网站→楼盘百科→首页网站→24小时热线电话
扫描到手机,新闻随时看
扫一扫,用手机看文章
更加方便分享给朋友
🐳🐳 深业颐樾府🐳🐳
🐳🐳 售楼处24小时电话:400-088-3336【☎☎已认证】🐳🐳
🐳🐳 售楼中心24小时电话:400-088-3336【☎☎已认证】🐳🐳
🐳🐳 营销中心24小时电话:400-088-3336【☎☎已认证】🐳🐳
🐳🐳Vip贵宾/置业专属VIP/欢迎来电预约享内部优惠/恭迎您品鉴🐳🐳丨周边配套丨楼盘图丨沙盘图丨位置图丨配套图丨售楼处地址丨销售1V1讲解
4000883336
【项目名称】深业.颐樾府
【占地面积】约2.6万㎡
【建筑面积】约19.5万㎡
【推售产品】99-116㎡ 3-4房
【交付标准】精装交付
【交房时间】2026年9月
【房产性质】70年
【总 户 数】规划1410户
【车 位 数】约1400个
【物业公司】深业物业
【物 业 费】5.3元/㎡/月
【容 积 率】约5.4
【绿 化 率】约40%
【梯 户 比】3T6
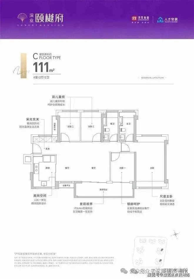
以下为在售一期户型:
上下滑动查看全部户型图
以下为待售二期户型:
周边配套
交通配套
项目周边有4号线、6号线2条地铁,其中距离4号线上塘站D1出口步行大概1.1公里,距离红山站A1出口步行约1.3公里,大概是介于上塘站和红山站中间的位置;距离6号线上芬站D出口步行约1公里。4号线和6号线都是天铁,项目离得太近会有天铁的噪音,离得远点,噪音是没有了
商业配套
项目自带2000㎡商业,项目旁边还有星河cocogarden商场,方便日常生活。北站红山龙华三大商圈,项目距离天虹购物中心(龙华店)约500m、华南首家costco距离约700米,距离红山6979商业中心约1.3公里。
Costco开市客是美国最大的连锁仓储式会员超市,目前在全球14个地区拥有870余家门店、1.2亿会员,是仅次于沃尔玛的全球第二大零售商。
开业当天Costco开市客深圳店会员开卡数量超14万人,居全球第一,销售额刷新中国Costco开业当日销售额数据,居全国第一。
教育配套
深业颐樾府自带1所6班制幼儿园,根据2024年龙华区教育局学区划分,学区划分在龙华实验学校教育集团至真校区(小学部),龙华实验学校教育集团至美校区(初中部),另外还有华东师范大学附属深圳龙华学校,是采用电脑随机派位的学区。
其中龙华实验学校是按照大学区划分录取,在2023年是小初都是A2类全部录取,即是深圳户籍+学区内购房就能读上。
医疗配套
新华医院三甲医疗资源保障,深圳首座“医疗综合体”新型智慧型医院,预计2024年初试运营。深圳市第二儿童医院(建设中),规模为深圳市儿童医院的两倍,预计今年底试运营。
🐳🐳 深业颐樾府🐳🐳
🐳🐳 售楼处24小时电话:400-088-3336【☎☎已认证】🐳🐳
🐳🐳 售楼中心24小时电话:400-088-3336【☎☎已认证】🐳🐳
🐳🐳 营销中心24小时电话:400-088-3336【☎☎已认证】🐳🐳
🐳🐳Vip贵宾/置业专属VIP/欢迎来电预约享内部优惠/恭迎您品鉴🐳🐳丨周边配套丨楼盘图丨沙盘图丨位置图丨配套图丨售楼处地址丨销售1V1讲解
免责声明:本文所有文章、图片、音频视频文件等资料版权归版权所有人所有,因非原创文章及图片等内容无法一一和版权者联系,如原作者或编辑认为作品不宜上网供大家浏览,请及时来电告之,我们将立即予以修改或删除。本文如无意中侵犯了某方的知识产权,告之即删。
声明:本文由入驻焦点开放平台的作者撰写,除焦点官方账号外,观点仅代表作者本人,不代表焦点立场。
