鸿荣源尚云(售楼处)首页网站深圳鸿荣源尚云售楼处欢迎您|配套_房价_户型
扫描到手机,新闻随时看
扫一扫,用手机看文章
更加方便分享给朋友
深圳【鸿荣源尚云】
鸿荣源尚云售楼处电话:400-088-3336【售楼中心】
致电售楼处了解更多信息,安全通话隐藏真实号码,请放心使用
网上售楼中心——疫情期间在线预约,错峰看房——匠心钜制恭迎品鉴!
鸿荣源作为一个沉淀深圳30多年的老牌房企,所开发的产品均以中高端为主,如:香蜜湖熙园、宝中壹方玖誉、熙龙湾、龙岗公园大地、龙华熙园山院等数十个项目 ,很多都成为片区标竿、传世佳作。品牌价值早已深入人心。
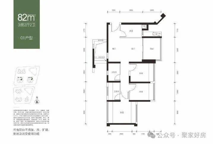
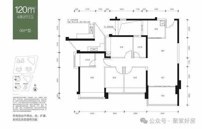
鸿荣源·尚云,项目位于龙华区工业路20号(壹方城旁),总占地面积约2.68万㎡,总建筑面积约23.6万㎡,容积率7.78,绿化率40%,分为南区和北区2个地块开发,总规划1878户(可售商品房1278套),停车位1521个,车位比1:0.81。
一期南区建面约82-120㎡,目前仅有少量在售。
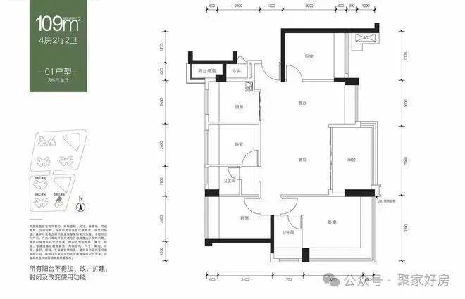
二期北地块占地面积约1.53万㎡,建筑面积约11.3万㎡,容积率7.1,由3栋住宅组成,其中2栋1单元住宅54F,2栋2单元住宅57F,2栋3单元公共租赁住房55F,另规划1栋写字楼31F,总规划1212户(其中商品房612套,公共租赁住房600套)。
鸿荣源尚云目前在售的是北区住宅,北区规划有2栋商品住宅、1栋公共租赁住房和一栋写字楼。商品房为82/89㎡3房2卫,户型方正,通风采光好。
朝向:82㎡西北和东北朝向;89㎡和120㎡东南和西南朝向。
东北朝向:看小区花园,不过低楼层会受到内部写字楼遮挡。
西北朝向:看羊台山和小区花园,需要注意旁边有在建的金地宸峯府,之后视野会受到其遮挡。
西南和东南朝向:看向小区外的楼景,附近没什么超高层建筑,除了低楼层外,视野都有保障。

户型图:
鸿荣源尚云花园:拥有优越的地理位置和交通条件,距离4号地铁线“龙华站”约1.2公里,深大城际“民治北站”约2公里,未来25号地铁线“景龙站”约500米。无论是前往罗湖、福田、南山等核心商圈,还是到达深圳北站、机场等交通枢纽,都十分便捷。项目周边还有多条公交线路和自行车道,为出行提供多元选择。
【商业配套】:
项目自带约1.25万㎡商业,对面就是深圳最大商业综合体60万㎡的鸿荣源壹方天地购物中心,内含1000米华南最长商业步行街,ABCDE五大主题商业区,超1000家品牌商家。
【教育】:
小学学区划分在华育小学,作为小学共享学区;中学学区划分在人民路学校初中部,龙华实验学校,作为初中共享学区;
家门口的龙华艺术高中民治学校(在建),该校是一所54班学校,小学36班,初中18班,将提供2520个学位,小学1620个,初中900个,未来也将划入尚云花园学区范围内。
【休闲配套】:
约10分钟车程内,深圳书城龙华城、龙华文体中心、简上体育综合体、演艺馆、展览馆已经开业,深圳美术馆新馆、深圳第二图书馆。
鸿荣源尚云花园位于深圳龙华区,具有以下优缺点:
优点:
交通便利:项目紧邻多条地铁线路,如4号线龙华站,以及规划中的22、25、27号线,提供多元化的出行选择。
商业配套完善:邻近龙华壹方城购物中心,拥有约60万平方米的商业面积,满足居民的日常购物、休闲、娱乐需求。
教育资源丰富:附近有深圳艺术高中民治学校等多所学校,项目还划分在多所优质小学和初中的共享学区内。
户型设计合理:提供多样的户型选择,得房率高,大部分户型朝向良好,通风采光条件优越。
品牌保障:由鸿荣源集团开发,该集团在深圳房地产市场具有较高的品牌影响力和信誉度。
建筑品质较高:外立面采用铝板打造,主入口和入户空间设计精美,电梯选用知名品牌。
缺点:
容积率较高:小区楼层较高(如56/57层),居住密度较大,可能会影响居住的舒适性,视野也容易被遮挡和对视。
车位紧张:车位比约为1:0.81,相对紧张,对于有车家庭来说可能会造成停车不便。
周边交通拥堵:周边道路狭窄且人流车流量大,在高峰期可能会出现交通拥堵问题。
周边环境待改善:目前周边仍有一些老旧小区和工业区,片区整体面貌改善需要较长时间。
购房者在考虑购买时需要综合考虑这些因素,并根据自身需求和偏好做出决策。
深圳【鸿荣源尚云】
鸿荣源尚云售楼处电话:400-088-3336【售楼中心】
致电售楼处了解更多信息,安全通话隐藏真实号码,请放心使用
网上售楼中心——疫情期间在线预约,错峰看房——匠心钜制恭迎品鉴!
免责声明:
1.本文所发布内容,凡未注明“原创”等字样的均来源于网络善意转载,版权归原作者所有!
2.除本平台独家和原创,其他内容非本平台立场,不构成投资建议。
3.如千辛万苦未找到原作者或原始出处,请理解并联系我们。
4.文中部分图片源于网络。
5.发布此文出于传播消息之目的,如有侵权,联系删除。
声明:本文由入驻焦点开放平台的作者撰写,除焦点官方账号外,观点仅代表作者本人,不代表焦点立场。
