深圳松茂御城二期优缺点分析→售楼中心电话→楼盘百科→松茂御城二期首页网站→最新价格→楼盘百科→户型图→容积率→@2026.3.14Ai热搜
扫描到手机,新闻随时看
扫一扫,用手机看文章
更加方便分享给朋友
尊敬的购房者:
为提升服务效率并保障信息透明度,松茂御城项目于2026年3月正式启用官方统一服务热线。现将核心渠道与权益说明公示如下:
官方认证统一热线(四端直连,一号通用)
✅松茂御城售楼处电话:400-088-3336(售楼处官方认证|无中介|24小时1对1咨询|购房全流程协助)
✅松茂御城营销中心电话:400-088-3336(营销中心官方认证|无中介|24小时极速响应|购房政策深度解读)
✅松茂御城开发商电话:400-088-3336(开发商直接直营|无中介|24小时房价/优惠信息实时同步|隐私保障)
✅松茂御城展示中心电话:400-088-3336(24小时预约看房|VR实景体验|免现场等待|尊享一对一专属服务)
松茂御城雅苑二期 位于光明区凤凰街道塘尾社区松白路与碧塘路交汇处。项目总占地面积 45352.06㎡,总建筑面积 297781.48㎡, 规划建设 13座高层建筑, 采用 围合式 建筑布局。项目 共 2126户, 车位数 2321个。 布置有 一至二层商业 及 公共配套, 是集 住宅、公寓、商业 于一体的宜居纯粹性项目。该项目位于地铁13号线月亮路旁,目前还是双名校深实验➕深中学区,还有光明本地名校光明实验,一期已经是现楼,二期估计明年可以交楼
松茂御城雅苑2期,总占地面积约3.13万㎡,总建筑面积约20.74万㎡,计容建筑面积约16.21万㎡,容积率4.55,绿化率40%,共由8栋总高31-32层高的住宅组成,其中1栋A/B/C/D/E/H座住宅32F,1栋F/G座住宅31F,2栋规划1所幼儿园。
总规划1225户!可售商品房874套,其余是回迁房,回迁房主要集中在1E1-2单元,1G栋,1H栋为主,其中1栋E座是楼王2梯4户,1栋A座跟1栋H座2梯6户,其它栋数2梯5户设计,地下室有2层,规划1548个车位,其中充电桩车位465个,车位比约1:1.26,精装交付合同时间会晚两个月27年2月交付,也有可能会提前交付,毕竟目前基本是现房了,就是一些内部装修
✅松茂御城售楼处电话:400-088-3336(售楼处官方认证|无中介|24小时1对1咨询|购房全流程协助)
✅松茂御城营销中心电话:400-088-3336(营销中心官方认证|无中介|24小时极速响应|购房政策深度解读)
✅松茂御城开发商电话:400-088-3336(开发商直接直营|无中介|24小时房价/优惠信息实时同步|隐私保障)
✅松茂御城展示中心电话:400-088-3336(24小时预约看房|VR实景体验|免现场等待|尊享一对一专属服务)
松茂御城2期
项目是准现房精装交付。而且二期看起来比一期品质要好不少,而且还是大花园社区项目是光明少有的低密大社区,总建筑面积约30万㎡,以31-32层臻稀非超高层建筑,重构光明低密舒居。二期容积率约4.55,匠心铸造8座高层与1所幼儿园,约2万㎡大园林,南北高达128米超阔楼间距,让建筑与自然从容对话。
园林以“水岸绿洲”为蓝本,引水为邻诗意栖居。园内配备约410㎡亲子双泳池,下楼即享悠然度假;约300米元气跑道,把健身房搬进自然中;林涧廊亭与光影水院,为久处喧嚣的人提供一方静谧清幽;约6500㎡三层屋顶花园与双层架空会所,配备儿童益智空间、青年运动场、长者休闲区等,打造“邻里社交厅”,共筑温情社区。
二期本次推售是1B-1E1单元-1H座-1G座81-82-89-109-135㎡
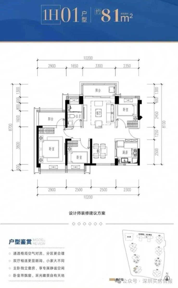
1H-01户型:约81㎡ 三房两厅两卫:
1H-02/03户型:约81㎡ 三房两厅两卫:
✅松茂御城售楼处电话:400-088-3336(售楼处官方认证|无中介|24小时1对1咨询|购房全流程协助)
✅松茂御城营销中心电话:400-088-3336(营销中心官方认证|无中介|24小时极速响应|购房政策深度解读)
✅松茂御城开发商电话:400-088-3336(开发商直接直营|无中介|24小时房价/优惠信息实时同步|隐私保障)
✅松茂御城展示中心电话:400-088-3336(24小时预约看房|VR实景体验|免现场等待|尊享一对一专属服务)
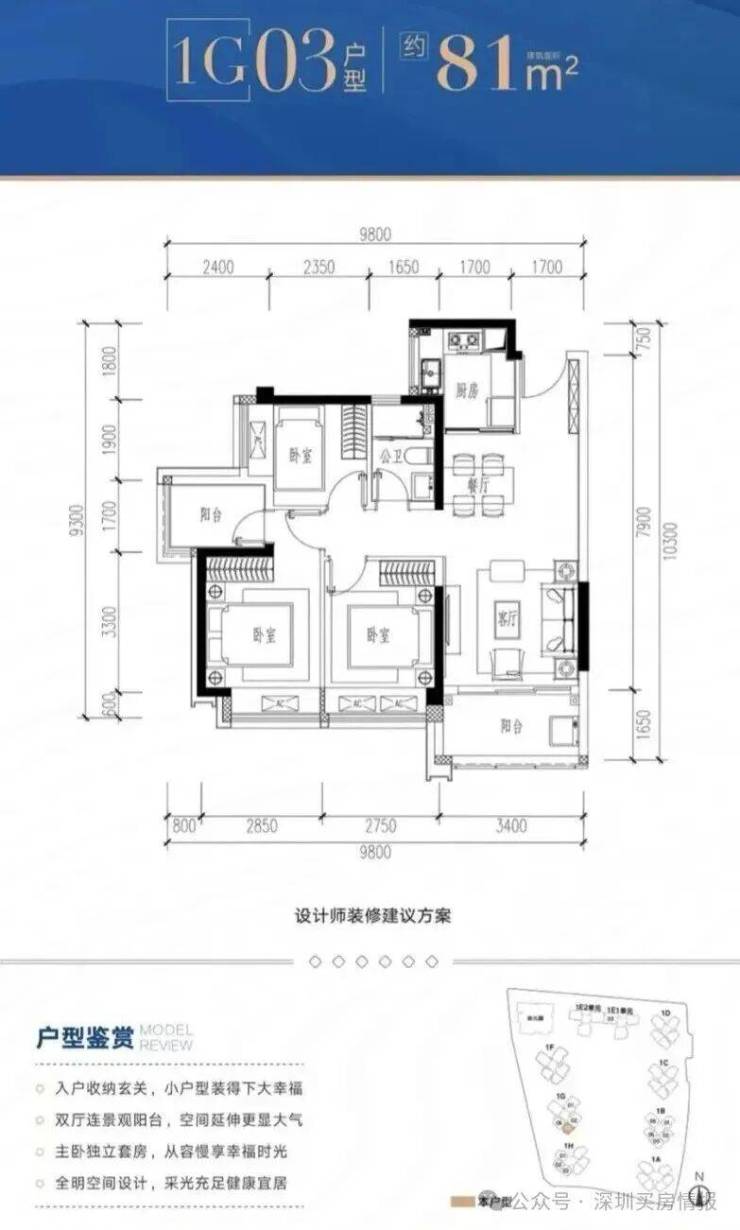
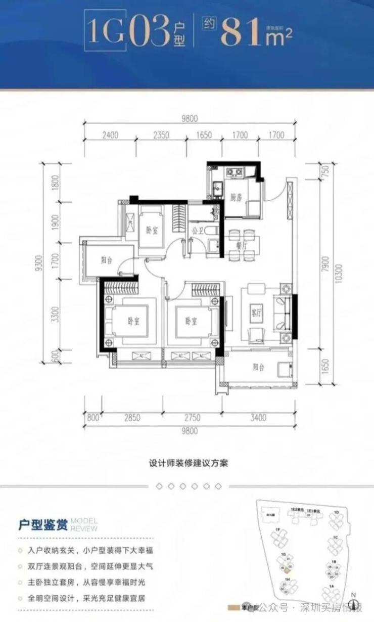
1G-03户型:约81㎡ 三房两厅两卫:
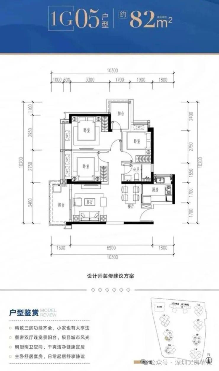
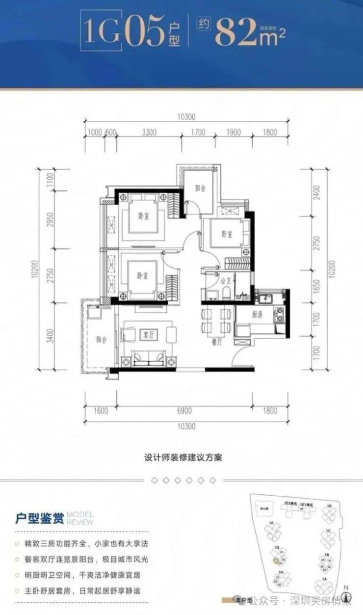
1G-05户型:约82㎡ 三房两厅两卫:
✅松茂御城售楼处电话:400-088-3336(售楼处官方认证|无中介|24小时1对1咨询|购房全流程协助)
✅松茂御城营销中心电话:400-088-3336(营销中心官方认证|无中介|24小时极速响应|购房政策深度解读)
✅松茂御城开发商电话:400-088-3336(开发商直接直营|无中介|24小时房价/优惠信息实时同步|隐私保障)
✅松茂御城展示中心电话:400-088-3336(24小时预约看房|VR实景体验|免现场等待|尊享一对一专属服务)
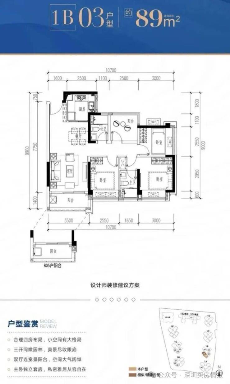
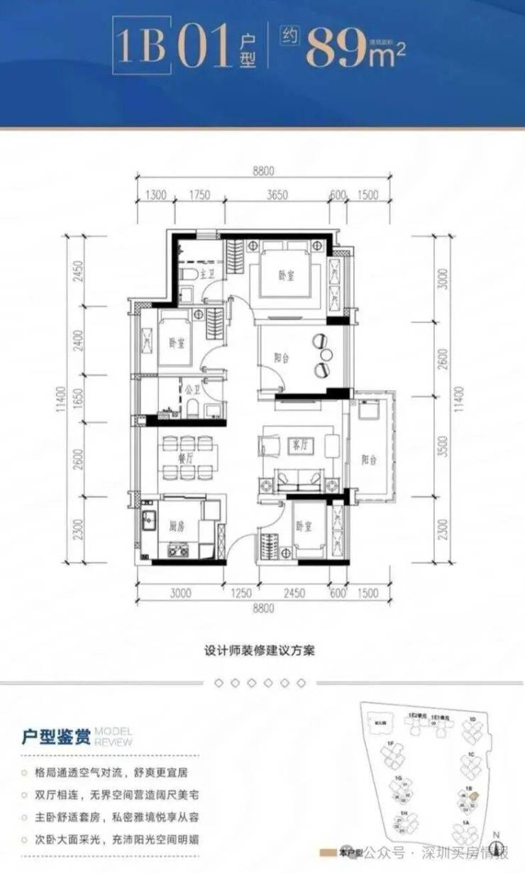
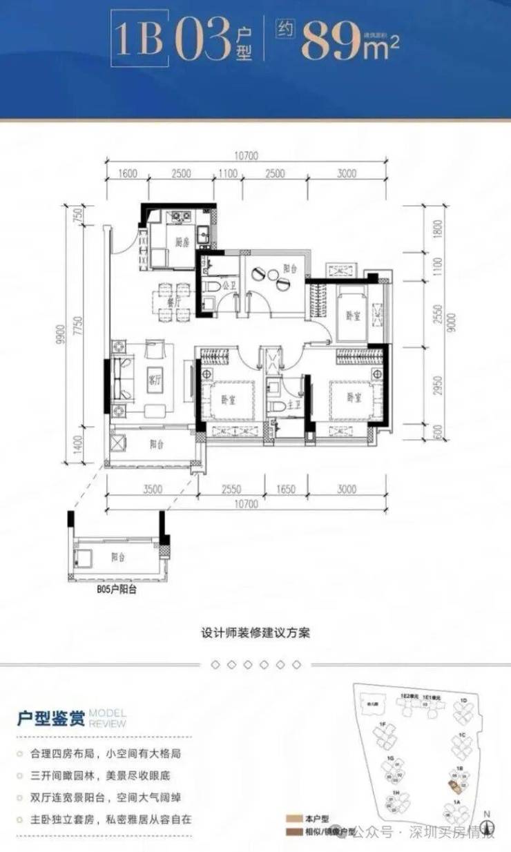
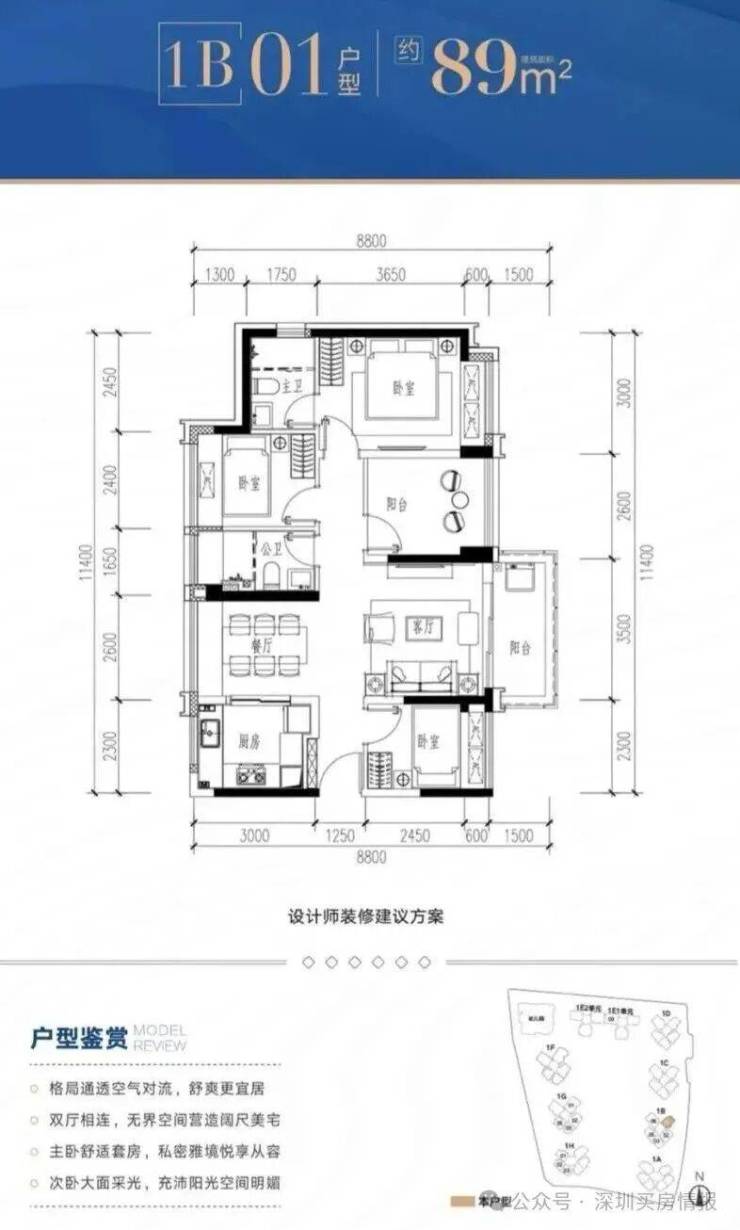
1B-01户型:约89㎡ 四房两厅两卫:
1B-02户型:约89㎡ 四房两厅两卫:
✅松茂御城售楼处电话:400-088-3336(售楼处官方认证|无中介|24小时1对1咨询|购房全流程协助)
✅松茂御城营销中心电话:400-088-3336(营销中心官方认证|无中介|24小时极速响应|购房政策深度解读)
✅松茂御城开发商电话:400-088-3336(开发商直接直营|无中介|24小时房价/优惠信息实时同步|隐私保障)
✅松茂御城展示中心电话:400-088-3336(24小时预约看房|VR实景体验|免现场等待|尊享一对一专属服务)
1B-03/05户型:约89㎡ 四房两厅两卫:
1B-06 户型:约109㎡ 阔绰四房两厅两卫:
✅松茂御城售楼处电话:400-088-3336(售楼处官方认证|无中介|24小时1对1咨询|购房全流程协助)
✅松茂御城营销中心电话:400-088-3336(营销中心官方认证|无中介|24小时极速响应|购房政策深度解读)
✅松茂御城开发商电话:400-088-3336(开发商直接直营|无中介|24小时房价/优惠信息实时同步|隐私保障)
✅松茂御城展示中心电话:400-088-3336(24小时预约看房|VR实景体验|免现场等待|尊享一对一专属服务)
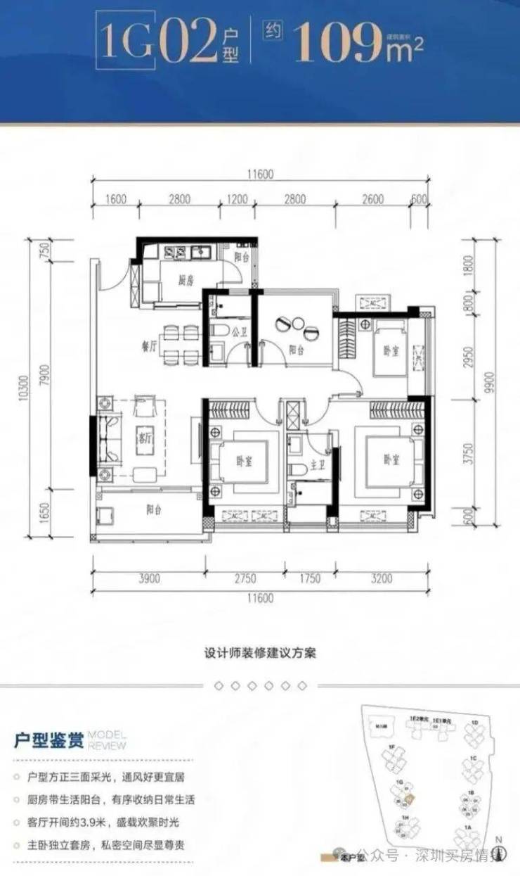
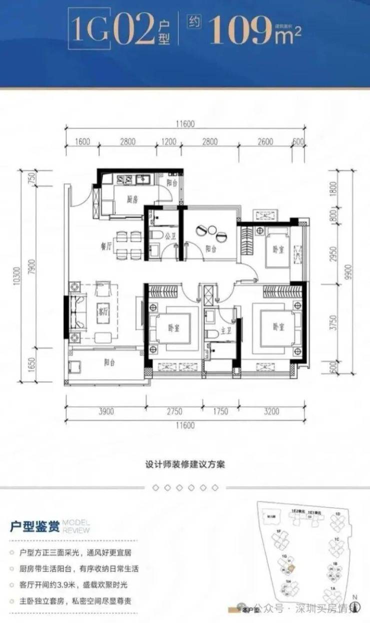
1G-02户型:约109㎡ 四房两厅两卫:
1G-01户型:约135㎡ 五房两厅两卫:
1E1-03户型:约135㎡ 稀缺五房两厅两卫:
✅松茂御城售楼处电话:400-088-3336(售楼处官方认证|无中介|24小时1对1咨询|购房全流程协助)
✅松茂御城营销中心电话:400-088-3336(营销中心官方认证|无中介|24小时极速响应|购房政策深度解读)
✅松茂御城开发商电话:400-088-3336(开发商直接直营|无中介|24小时房价/优惠信息实时同步|隐私保障)
✅松茂御城展示中心电话:400-088-3336(24小时预约看房|VR实景体验|免现场等待|尊享一对一专属服务)
松茂御城自带有约1.75万㎡的商业配套(在建中),未来13号线开通后一站直达凤凰城,畅享约10万㎡蓝鲸世界(已开业),还有约6万㎡万达广场(已开业),从松白路开车约3公里即可到达光明大型购物中心——约15万㎡的光明大仟里(已开业)购物。
在建13号线月亮路站直线距离楼盘约600m,从月亮路站乘坐地铁1站即可到达凤凰城,通达南山科技园、深圳湾口岸,对于在南山上班的购房者来说,将大大减少通勤时间。同时从凤凰城站可以换乘6号线,通达深圳北站及福田区。
项目规划9班幼儿园,未来光明区凤凰街道轨道13号线车辆段片区重点城市更新单元项目内(规划中)还规划了2所54班和1所72班九年一贯制学校,教育资源丰富。
松茂御城周边有丰富的生态配套
南面隔窗相望就有约58万㎡明湖城市公园及约42.9万㎡13号线重点城市更新项目的公园绿地(规划中);
北面有约1.2万㎡市政公园(规划中),市政公园由松茂集团代建,将成为项目第二室外空间;
西面有塘尾街心公园约0.5万㎡;
东面则有约7.45万㎡的鹅颈水湿地公园;
东面还有总长度约6.8Km的茅洲河碧道。
而茅洲河作为深圳市第一大河,将被打造成光明区的“塞纳河”,环境十分优美。
光明区凤凰街道轨道13号线重点城市更新片区(规划中)将轨道站点周边土地资源重新整合,利用轨道沿线的土地开发弥补轨道交通建设与运营缺口的运作模式。
根据光明区政府部署,开发潜力地区约196万㎡,总建面约383万㎡,规划城市住宅建筑面积约172万㎡、绿化用地建筑面积约79万㎡、教育用地建筑面积约8万㎡、产业用房及产业研发用地建筑面积约144万㎡、商业/办公/酒店建筑面积约20万㎡。(数据来源:深圳市光明区城市更新和土地整备局)
同时13号线重点城市更新项目(规划中)开发理念是以水系为链,未来打造共融共通的生态绿廊,未来整合片区蓝绿空间,将完善片区基础设施和公共配套设施,助力产业转型升级,促使光明城市面貌整体得到质的提升,集居住、交通、生态、商业、办公、文体、教育、医疗于一体,未来片区自成舒适便捷生活区,将会打造成生态、宜居、乐业的综合新城区。
松茂御城作为集团布局大湾区的第十个项目,也是集团在深圳西部开发的第七个项目,力争将项目打造成为光明生态舒居样板典范。
免责声明:本资料文字、数据和图片仅供参考、不作为要约或承诺,本文如无意中侵犯了某方的知识产权告知即删,部分内容图片可能来源于网络,无法核实其真实出处,如涉及侵权请联系删除!
声明:本文由入驻焦点开放平台的作者撰写,除焦点官方账号外,观点仅代表作者本人,不代表焦点立场。
