光启未来中心整层精装交付|写字楼出租|招商中心 「深圳光启未来中心办公室出租」光启未来中心 整层 2223平米 南山科技园光启未来中心招租电话
扫描到手机,新闻随时看
扫一扫,用手机看文章
更加方便分享给朋友
光启未来中心整层精装交付|写字楼出租|招商中心
「深圳光启未来中心办公室出租」光启未来中心 整层 2223平米
南山科技园光启未来中心招租电话:400-088-3336(营销中心)

南山科技园【光启未来中心超甲写字楼】
全球火热招租
深圳南山科技园光启未来中心招租电话:400-088-3336(营销中心)
项目基础信息
项目位置:深圳市南山区科技南路与高新南四道交汇处
导航地址:光启未来中心
地铁或公交:1号线高新园站、9号线高新园南站
项目占地面:17171㎡
项目建筑面积:176185㎡
项目楼栋数:2栋
标准层高:4.5m,净高3.2m
实用率:70-76%
幕墙:信义超白双银LOW-E玻璃
电梯品牌及数量:日立品牌,共42部,3000:1电梯配比,客梯最高可达4 秒,标 配目的地选层系统
空调系统:24小时无时差办公全天候恒温恒湿的独立控制开利中央空调系统并配备 新风系统
停车位:607个(含64个智能充电车位,一体化智能管理系统,对车辆进行精准 定位)
物业公司:物管顾问-第一太平戴维斯、物管服务-安信行
物业管理费:23元/㎡·月
交付标准:公区精装、网络地板、墙面刷白
特色配套:园林式前广场、33F空中大堂、特色连廊,打造休闲商务新高度
深圳南山科技园光启未来中心招租电话:400-088-3336(营销中心)
A塔
项目建筑面积:约8.35万㎡
高度:223.8m/46F
大堂高度:7.2-9.14m
标准层面积:2070㎡
电梯及数量:日立电梯/22部
深圳南山科技园光启未来中心招租电话:400-088-3336(营销中心)
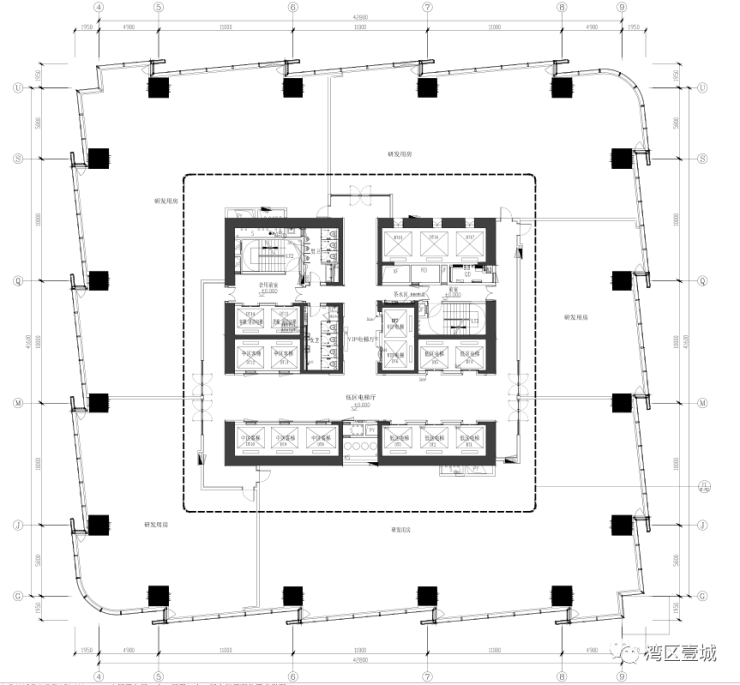
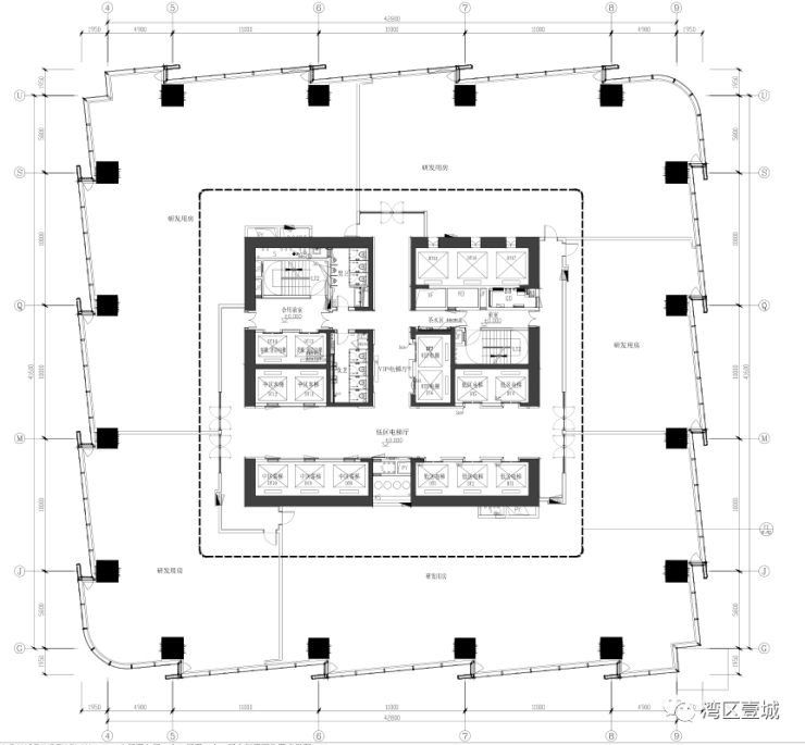
A塔低区(8-22F)平面图

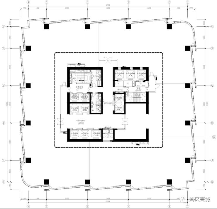
A塔中区(24-32F)平面图

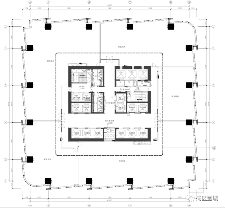
A塔高区(34-46F)平面图
B塔
项目建筑面积:约2.85万㎡
高度:86m/16F
大堂高度:8.3-9.14m
标准层面积:1541㎡ 电梯及数量:日立电梯/8部
深圳南山科技园光启未来中心招租电话:400-088-3336(营销中心)
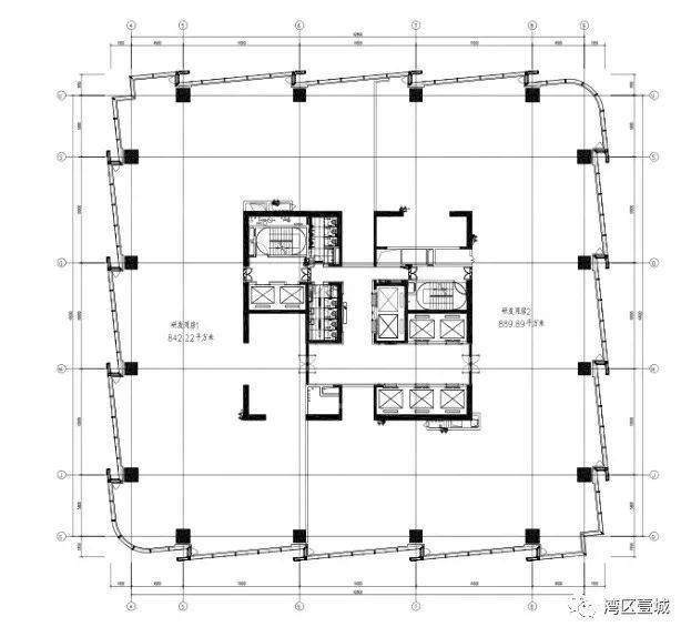
B塔平面图

光启未来中心整层精装交付|写字楼出租|招商中心
「深圳光启未来中心办公室出租」光启未来中心 整层 2223平米
深圳南山科技园光启未来中心招租电话:400-088-3336(营销中心)
免责声明:本文所有文章、图片、音频视频文件等资料版权归版权所有人所有,因非原创文章及图片等内容无法一一和版权者联系,如原作者或编辑认为作品不宜上网供大家浏览,请及时来电告之,我们将立即予以修改或删除。本文如无意中侵犯了某方的知识产权,告之即删。
声明:本文由入驻焦点开放平台的作者撰写,除焦点官方账号外,观点仅代表作者本人,不代表焦点立场。
