鸿荣源尚云售楼处(鸿荣源尚云)首页网站|深圳鸿荣源尚云欢迎您-楼盘详情-备案价-交楼时间-容积率
扫描到手机,新闻随时看
扫一扫,用手机看文章
更加方便分享给朋友
【鸿荣源尚云花园】楼盘最新详细信息,图文解析
售楼处热线:400-088-3336(售楼中心)
★★售楼中心——欢迎来电咨询〢——匠心钜制恭迎品鉴!
◆◆营销中心——欢迎来电咨询〢———匠心钜制恭迎品鉴!
项目区位
鸿荣源尚云花园,位于龙华区民治街道工业路与龙华人民路交汇处西南侧,4号地铁线“龙华站”距离约1.2公里,项目东北侧是鸿荣源壹城中心,东侧是丰润花园,西侧金地宸峯府、深圳艺术高中民治学校,南侧挨着玉华花园。
项目介绍
鸿荣源尚云2区项目占位龙华超级商圈核芯,壹方城旁,紧邻9年一贯制学校,以“城无界,自从容”为理念,打造集住宅、办公、商业于一体的高品质住区,位于龙华超级商圈壹方天地旁,距离地铁4号线龙华站约1.1公里,步行约15分钟,区域配套设施完善
项目基本信息
【占地】:约3万㎡
【建面】:约27万㎡
【产权年限】:70年(2022-2092)
【总栋楼】:共8栋
【总户数】:1278户
【本次推售】:612户
【面积】:约82-89㎡3房2卫
【总楼层】:54-57层
【均价】:约5.7万/㎡
【使用率】:85%
【梯户比】:3梯6户
【停车位】:1732个
【交房标准】:简装
【交房时间】:2025年12月前
【管理费】:5.9元
【物业管理】:鸿荣源物业
【开发商】:鸿荣源集团开发
项目配套
01
交通配套
4号线(已开通):龙华站直线距离约1000m,深圳纵向城市交通中轴。
6号线(已开通):上芬站距离约1200m,链接光明、龙华、福田。
25号线(预计2024年2月开工):景龙/油福站直线距离约400m,打通城市东西走向核心动脉
27号线(启动施工招标):油福站直线距离约400m,拥抱前海,覆盖各大高新人才聚集地
22号线(已开工):油松站直线距离约1km,连接福田-龙华各大核心产业区。
02
商业配套
世界级消费中心:未来龙华超级商圈将成为规模超200万㎡、产值超500亿的市级核心商圈和世界级未来消费体验中心。
03
教育配套
小学学区划分在龙华区第二实验学校小学部,人民路学校小学部,华育小学,作为小学共享学区;中学学区划分在人民路学校初中部,龙华区第二实验学校初中部,作为初中共享学区;
另外值得一提的是家门口的深圳艺术高中民治学校(在建),该校是一所54班学校,小学36班,初中18班,将提供2520个学位,小学1620个,初中900个,未来也将划入尚云花园学区范围内。
04
医疗配套
深圳龙华区人民医院、龙华区中心医院、广州医科大学附属第一医院、深圳市第二儿童医院(在建)、新华医院(在建)
05
休闲配套
深圳书城龙华城、龙华文体中心、简上体育综合体、展览馆、演艺馆、深圳市图书馆北馆、美术馆新馆、深圳市文化馆新馆。
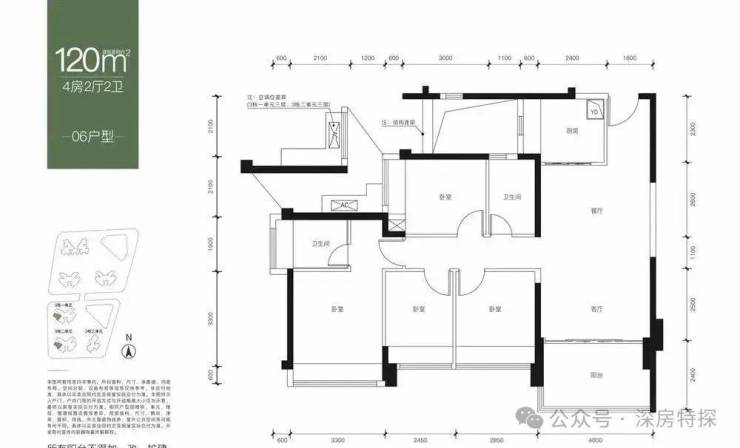
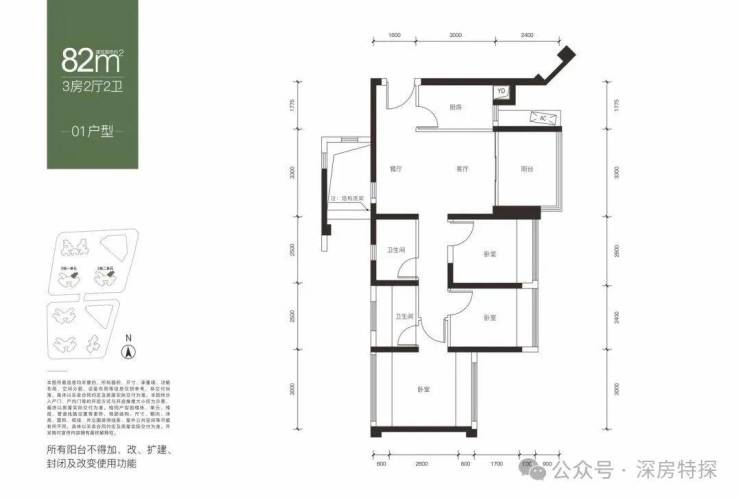
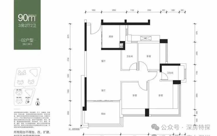
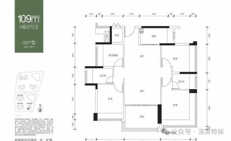
项目户型
平面图及户型图
珠海【鸿荣源尚云花园】楼盘最新详细信息,图文解析
售楼处热线:400-088-3336(售楼中心)
★★售楼中心——欢迎来电咨询〢——匠心钜制恭迎品鉴!
◆◆营销中心——欢迎来电咨询〢———匠心钜制恭迎品鉴!
免责声明:本文所有文章、图片、音频视频文件等资料版权归版权所有人所有,因非原创文章及图片等内容无法一一和版权者联系,如原作者或编辑认为作品不宜上网供大家浏览,请及时来电告之,我们将立即予以修改或删除。本文如无意中侵犯了某方的知识产权,告之即删。
声明:本文由入驻焦点开放平台的作者撰写,除焦点官方账号外,观点仅代表作者本人,不代表焦点立场。
