2025『前海瑧玺』首页网站|前海瑧玺售楼中心|前海瑧玺欢迎您
扫描到手机,新闻随时看
扫一扫,用手机看文章
更加方便分享给朋友
深圳南山区【前海瑧玺】
前海瑧玺售楼处电话:400-088-3336『售楼中心』
网上售楼中心〢安全通话隐藏真实号码〢欢迎来电咨询〢
开发商售楼处直销_欢迎来电预约尊享内部折扣_匠心钜制恭迎品鉴〢
◆提前来-预约登记尊享售楼处1v1销售专业讲解〢一对一热情服务〢
◆温馨提示:售楼中心〢预约可享内部优惠〢匠心钜制-恭迎品鉴〢

最新消息:前海瑧玺已经正式开放展厅,预计本周五开放样板间,10月左右取证入市。将推出共320套,建面约106/107㎡3房(约240套)和128㎡4房(约80套)。
根据户型图显示,传加上阳台半赠送飘窗全赠送拓展使用率高达约92%-97%,3.27容积率,23层水岸住宅,价格预计9字头起。据说这个盘是今年妈湾唯一入市新盘,也算是前海自贸区内难得的高品质项目,低密度纯住宅没有配建保障房。
当下前海新盘不再稀缺,作为新增10多块住宅用地的妈湾片区更是一种挑战,同片区今年入市新盘较为稀缺,价格定位不算特别有优势;相比前湾的成熟、妈湾的宜居,长远来讲,同样是招商的前湾片区壹湾臻邸面积段差不多,户型产品设计整体还不错,三期体量不大,128平米户型设计比较优秀。
项目位于前海妈湾片区梦海大道和港城路交汇处东北角,距离妈湾地铁站约200米距离,据了解是今年妈湾片区唯一一个待入市的纯住宅项目。


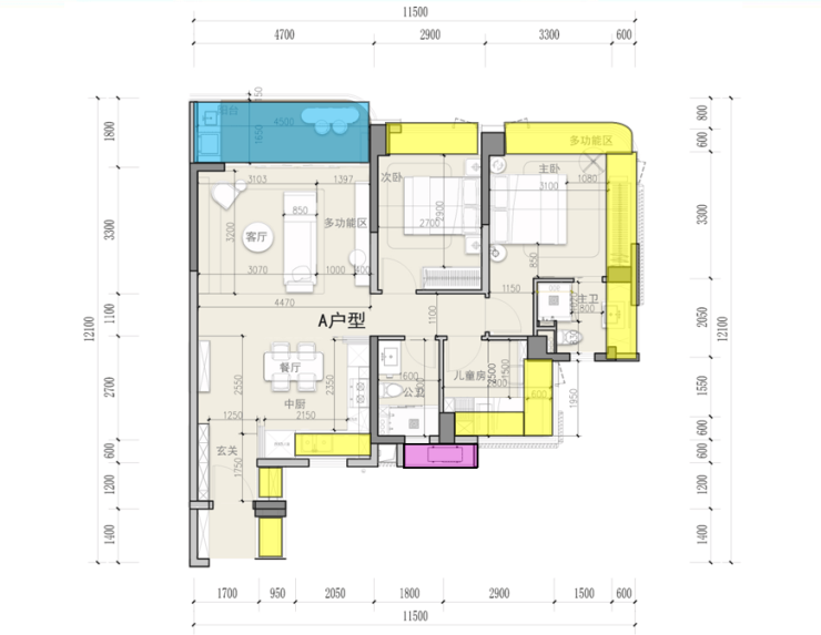
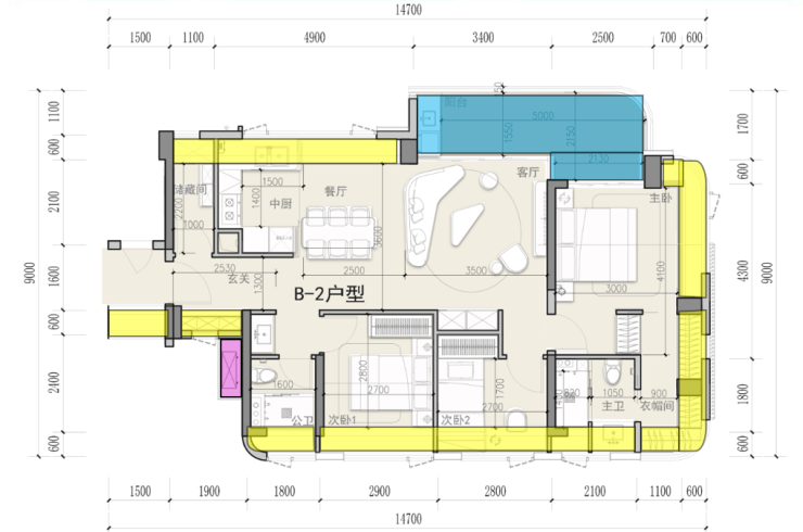
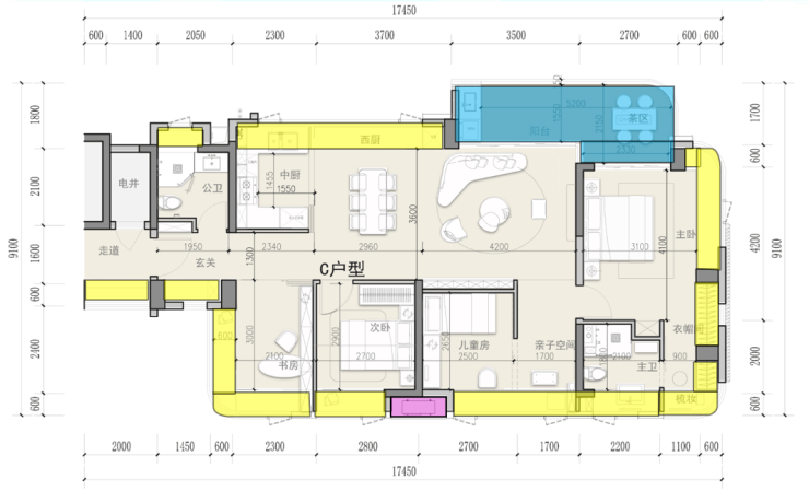
三期主要户型106-128㎡ 3-4房户型
建面约106㎡ 3房2厅2卫

建面约107㎡ 3房2厅2卫

建面约128㎡ 4房2厅3卫

项目介绍
在2023年4月27日,前海管理局对妈湾片区开发单元十四、十五、十六进行规划局部调整,经过调整后,妈湾一下新增了10块居住用地,宅地供应大爆发。这会给前海限价新房带来一定的影响;另外,片区内写字楼多,增加住宅也能改善居住氛围。
前海妈湾的新盘招商领玺三期今年预计要入市,项目正在动工中,最快今年四季度或将入市。招商领玺三期网传的产品面积段为107-128平,预计300套左右,(实际以官方消息为准)。

价格参考二期的备案均价约10.25万/平(毛坯),领玺三期届时能否延续一、二期的热销盛况?
招商领玺位于前海妈湾片区十九开发单元02街坊,妈湾一路以西,梦海大道以南。招商领玺三期项目即前海妈湾片区19单元05街坊05-01、05-03地块,总占地面积为14347平方米,总建筑面积约65000平方米,项目有两个地块,目前19-05-03地块已动工。

两个地块都不算大,已经动工的19-05-03地块更靠近前湾河,景观资源会更好。据家在深圳网友爆料,招商领玺三期项目基坑支护和土石方工程合同竣工日期为2023年07月28日。公示显示,建设规模为6.5万平方米。

2019年11月招商领玺一期开盘,推456套住宅,备案均价10.8万/㎡,单价8.7万-12.3万/㎡,含精装修交付,当时开盘4个半小时,房源全部售罄。
2021年9月底招商领玺二期开盘,推255套住宅,备案价约8.58-12.2万/平,均价10.25万/平,均为毛坯交付。入围最低积分为53.1分,657人选255套住宅,95人弃选,第350号选完最后一套房。
【交通】:
项目最近的地铁是5号线妈湾站,其次是5号线铁路公园站。铁路公园站还规划了5号线与9号线换乘,未来将于宝安新老中心、南山重点区、蛇口、西丽、前海片区串联起来,此外,将还有15、21、27、穗莞深城际等多条轨道交通串联前海与其他重点片区。

【商业】:
目前周边缺乏大型购物商场,这在后期规划起来后将会得到很大的弥补。项目自带16.7万平商业,加上不远处颐湾府底商,基本可以满足日常生活。印里首期商业(约3万平),今年9月正式开业,会有愈欣书店、SEESAW咖啡、罗森便利店、丘大叔柠檬茶等多个品牌入驻。
当前主要是商务,从铁路公园地铁出来可以看到世茂前海中心、前海自贸大厦、顺丰总部大厦、香江金融中心、平安智慧城市、深圳免税等高楼。这些写字楼也会有配套小型商业可供周边消费。
【教育】:
项目周边拥有15所幼儿园、4所义务教育学校,还有荔湾小学和深大附中等学校都在周边。此外项目靠近多所国际学校,拥有3000到5000个名额,包括荟同国际学校、礼德国际学校、英国国王学校(深圳分校)以及深圳哈罗国际学校。
【休闲娱乐】:
休闲资源方面,项目旁边即是河边公园,周边一个地铁站距离有月亮湾花园、青青世界、大南山公园等,也可快速抵达宝中滨海公园等。
深圳南山区【前海瑧玺】
前海瑧玺售楼处电话:400-088-3336『售楼中心』
网上售楼中心〢安全通话隐藏真实号码〢欢迎来电咨询〢
开发商售楼处直销_欢迎来电预约尊享内部折扣_匠心钜制恭迎品鉴〢
◆提前来-预约登记尊享售楼处1v1销售专业讲解〢一对一热情服务〢
◆温馨提示:售楼中心〢预约可享内部优惠〢匠心钜制-恭迎品鉴〢
免责声明:
1、内容部分来源网络,因编辑需要文字和图片之间亦无必然联系,仅供读者参考。
2、此号所转载的所有文章、图片、音频视频文件等资料版权归版权所有人所有,因非原创文章及图片等内容无法一一和版权者联系,如原作者或编辑认为作品不宜上网供大家浏览,或不应无偿使用,请及时来电告之,我们将立即予以修改或删除。
3、本网页如无意中侵犯媒体或个人的知识产权,请来电告之,我们将立即予以修改或删除。
声明:本文由入驻焦点开放平台的作者撰写,除焦点官方账号外,观点仅代表作者本人,不代表焦点立场。
