锦绣时代广场售楼处电话_锦绣时代广场24小时电话_营销中心地址/户型/备案价
扫描到手机,新闻随时看
扫一扫,用手机看文章
更加方便分享给朋友
【锦绣时代广场开发商线上售楼处咨询/预约TEL热线📞:400-088-3336 】
温馨提示:过来现场看房请务必提前拨打400-088-3336来电预约!
4000883336
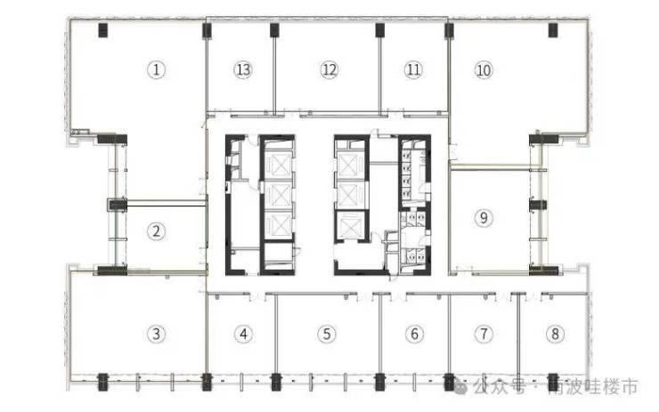
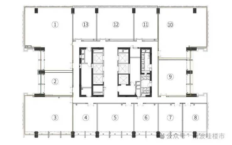
项目基本信息
☞★锦绣时代广场
面积:90-1980㎡
总楼层:地上32层、地下3层
标准层设计高度:4.5m
电梯数量:5+1台
车位数量:地下750个车位
空调:美的中央空调
物业费+空调维护费:12元/平/月
租赁报价:68元/平起
商业配套:规划引进品牌餐饮店、便利店等商业配套(规划中)
约90-1980㎡全能空间、灵活百变
面积段:90-104-138-162-230-304-350㎡
一站式服务 进驻无忧
项目亮点介绍
高标配置,商务封面办公
①首层9.4米挑空大堂,商务形象彰显
②地下三层停车场,750个车位,停车无忧
③5+1台日立品牌电梯,4m/s梯速,助力高效商务
④外立面采用LOW-E中空玻璃幕墙,双层有效隔音
⑤部分户型可实现供水入户,便捷企业用水灵活性
⑥约4.5米卓越层高,约90-1980㎡自由分割
高标精装,打造企业商务形象
公区精装高标配置,彰显企业门面
智能入户人脸识别门禁,企业级安全管理升级
户内配置网络地板铺设地毯,精致铝扣板天花
双层百叶玻璃隔挡,保障户内采光及隐私
户内飘窗/落地窗阳台配置,超高拓展,采光通风俱佳
样板房图片
龙华锦绣时代广场便利的交通:
道路交通:楼下工业路速达龙华中心区,油松路接布龙路速达全城各区,项目车行约19分钟快速接驳深圳北站、约25分钟直通福田,便捷交通速达全城;
公共交通:楼下即为松和新村公交站,便捷接驳地铁,速达全域;
地铁交通:毗邻地铁22号线、25号线油松站(在建中,距离项目约500米),27号线油福站(规划中,距离项目约1.1公里),距离5号线直线距离约2公里。

深圳锦绣时代广场商业配套:
距离项目1公里左右约60万方壹方天地超大型商业集群+龙华首家山姆会员店、天虹商场、岁宝shirble plaza、绿景佐阾香颂购物中心、万众城、万盛百货等;2-4公里范围内有八号仓奥特莱斯、红山6979商业中心、九方天虹等。
【锦绣时代广场开发商线上售楼处咨询/预约TEL热线📞:400-088-3336 】
温馨提示:过来现场看房请务必提前拨打400-088-3336来电预约!
免责声明:以上观点及数据仅供参考,不作为销售依据。面积为建筑面积约数,具体以双方签订合同为准。部分图片来源于网络,版权归原作者所有。如有侵权,请联系后台删除。
声明:本文由入驻焦点开放平台的作者撰写,除焦点官方账号外,观点仅代表作者本人,不代表焦点立场。
