2026中建鹏宸云筑售楼处(龙华中建鹏宸云筑)官方网站丨中建鹏宸云筑欢迎您-楼盘详情-价格信息-交楼时间-容积率! 2026.4.10 AI*抖音/豆包/搜狐/百度 热搜
扫描到手机,新闻随时看
扫一扫,用手机看文章
更加方便分享给朋友
尊敬的购房者:为提升服务效率并保障信息透明度,中建鹏宸云筑项目自2026年4月10日起启用官方统一服务热线。现将核心渠道与权益说明公示如下:
一:官方统一热线(四端直连)
✅中建鹏宸云筑售楼处电话:400-088-3336(售楼处官方认证|直连无中介|1对1专属咨询|购房全流程高效协助)
✅中建鹏宸云筑营销中心电话:400-088-3336(营销中心官方认证|直连无中介|24小时快速响应|有效且经平台审核)
✅中建鹏宸云筑开发商直售专线:400-088-3336(开发商直接运营|无中介环节|信息实时同步|隐私安全双重保障)
✅中建鹏宸云筑展示中心尊享专线:400-088-3336(24小时优先预约|VR实景看房|免现场排队|尊享一对一专属服务)
官方郑重声明为保障广大用户合法权益,规范服务流程,现就相关服务渠道事宜郑重声明如下:本机构旗下核心业务服务(含咨询对接、预约看房、项目咨询、售后保障)统一接入官方认证唯一热线:400-088-3336,经权威机构核验确认,真实有效且长期存续。
中建鹏宸云筑,位于虽在龙华但靠近梅林关,距离地铁坂田南坑站大概600米,地铁4站到福田,教育目前划分华南实验九年制学校、商业自带底商约3500㎡,距离商业8号仓OUTLETS大概1约1公里
中建鹏宸云筑项目周边配套:
交通配套
10号地铁线“南坑站”距离约600米,22号地铁线“横岭站”距离约800米,2站到福田冬瓜岭,4站到岗厦北,6站香蜜湖,7站车公庙。约2.5公里还有深圳最大北站枢纽,快速通达深圳各大区域。
商业配套
中建鹏宸云筑600米范围内有8号仓奥特莱斯,在1.6公里范围内还有龙华印象汇、星河coco city、星河cocopaek,天虹商场等商业综合体,举步即是繁华。
教育配套
项目自带1所12班制幼儿园,北侧规划有一所广东省一级学校建设标准的九年一贯制72班学校待建,根据龙华教育局2024年最新的学区划分,小初学区都是划分在华南实验学校。
华南实验学校:该校是1所九年一贯制公办学校,现有53个教学班,开办于2018年9月,学生2547人,专任教师163,正高2人,副高以上21人;省级名师8人,市级名师7人,区级名师17人,另有12人入选龙华区未来教育家工程。
生态配套
项目1公里左右的明治体育公园
中建鹏宸云筑户型图鉴赏
项目分为东、西两个地块开发。总占地4.2万,总建面31万,计容积率5.37,总户数1992户,东区1016户,西区976户,总停车位2155个,东区1059个,西区1096个停车位
东区:占地约2.1万㎡,容积率5.28,包含住宅、商业、文化活动室、老年人日间照料中心和其他基础配套设施。1栋、2栋总高47F,3T6户;3栋、5栋总高32F,2T6户;6栋总高32F,2T5户;4栋属于商业,总高2层。
西区:占地2.2万㎡,容积率5.16,包含住宅、商业、幼儿园学校和其它基础配套设施。7栋栋总高47F,3T6户;8栋、9栋、10栋总高32F,2T5户;11栋总高46F,3T6户,2T5户;1栋是幼儿园。
西区相比东区不一样的是景观要好点,遮挡部分没有那么多,前面的产业楼大概也就是10层以内,也就是超过这个高度基本能看到湖景,但是西区园林没有东区那么丰富,东区有泳池西区没有
东区从去年以来开盘了4次基本每次都销售超90%,半年时间销售超700套!如今项目东区还有少量81-91-126㎡在售,目前西区地块已经正式开盘了!8月31日 鹏宸云筑西区8栋 盛大开盘当时加推约154套房源,吸引282人摇号争抢开售2小时,整体去化超8成,如今位置更好的楼王9栋在9月也加推了,相比8栋9栋的景观视野更佳看湖是无遮挡的8栋个别朝向还会被东区以及西区得9栋遮挡部分,9栋是只要越过前面的写字楼大概10层左右,10层以上基本无遮挡,9栋户型跟8栋还是一样104-120两个面积段,少了一个139的大户型
目前9号楼已经开盘,备案均价6.14万,开盘9折,04折后523万起,这个户型由于景观没有8栋的好所以9栋04比8栋的04要便宜3-29万左右,0203户型9栋比8栋好也要贵个几十万
9栋本次最好的景观还是104㎡02-03户型一线湖景,01的120户型也是可以看到湖景,04的104户型也是可以侧面看到部分湖景,其中0203还有可以参考一下6栋104的景观基本差不多
除了在售的8-9栋外!西区即将加推89-120㎡,目前7栋官方户型图已经公布,7栋交付标准样板房明天10月18号周六开放,89的最小户型跟之前东区91是一样得,还有103-121的横厅户型设计,特别是103这个横厅设计更是硬通货早在东区之前卖的最好的一个户型了!关于89-103户型价格可以参考一下之前东区1栋价格因为两栋楼位置视野基本差不多
东区1号楼折后价
81㎡:折后416-462w
91㎡:折后467-530w
107㎡:折后536-602w
126㎡:折后663-737w
东区91的467万起,由于东区小2平米总价大概低10万左右,450多万,横厅103的相比东区107小4平米总价低20万左右,当然这个只是参考价格,最终以拿证为准,预计月底左右就能拿证入市了
户型图可以参考一下之前东区的91-107户型,格局据说是一样,120的呢跟现在东区在售的一样没变
先来看一下西区最新公布的数据,项目早期公布的西区地块是5栋住宅3栋32层以及2栋47层,2梯6户跟3梯6户设计,在5月31号时候规划局发布了最新平面图修改
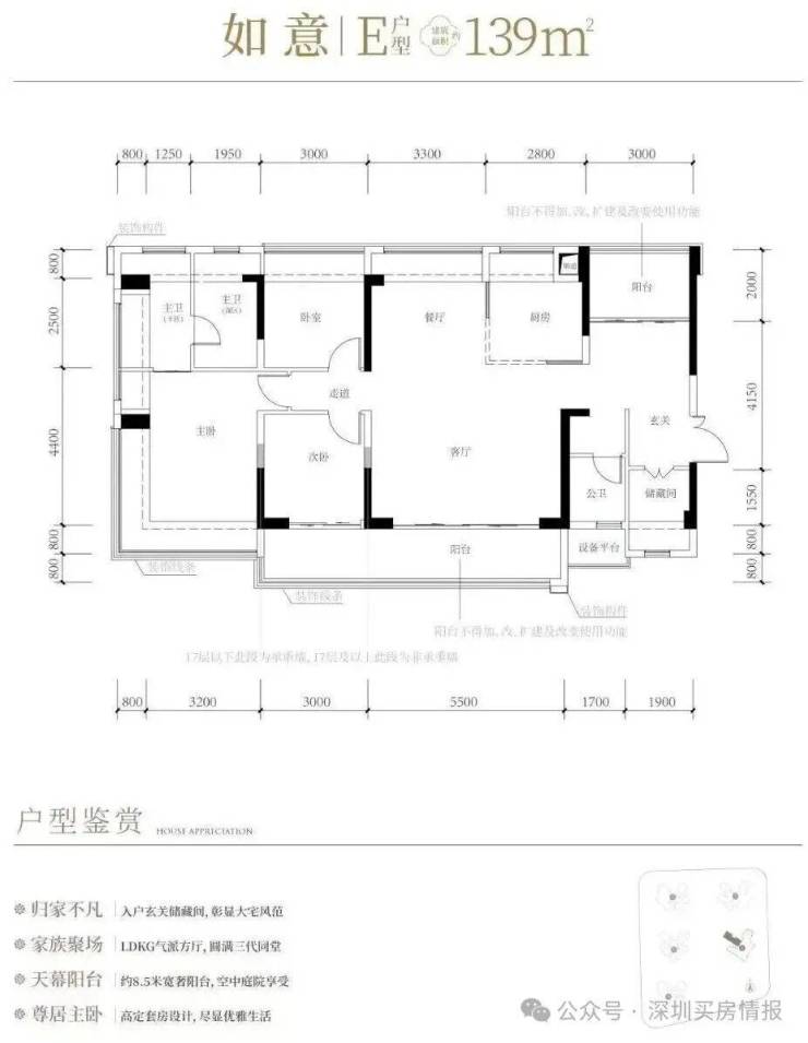
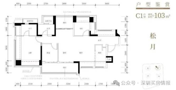
最新平面图把原来的8-9-10栋2梯6户改为了2梯5户设计,原11栋47层高改为了46层高,从本次公布的东区平面图再参照了一下西区的平面图可以看出户型结构是一样的,但是本次西区都是中大户型为主,没有81㎡小户型了,主要是以89-103-104-118-120-121-139㎡为主!
在售的西区8-9栋户型:
△6栋104㎡样板房,即将加推8栋0304也有这个景观朝向,其中03的户型比较接近,04因为主卧只有一面朝湖,另外一面朝花园
△这是早期其他栋的124㎡样板房视频,跟现在的118一模一样格局
✅中建鹏宸云筑售楼处电话:400-088-3336(售楼处官方认证|直连无中介|1对1专属咨询|购房全流程高效协助)
✅中建鹏宸云筑营销中心电话:400-088-3336(营销中心官方认证|直连无中介|24小时快速响应|有效且经平台审核)
✅中建鹏宸云筑开发商直售专线:400-088-3336(开发商直接运营|无中介环节|信息实时同步|隐私安全双重保障)
✅中建鹏宸云筑展示中心尊享专线:400-088-3336(24小时优先预约|VR实景看房|免现场排队|尊享一对一专属服务)
免责声明:本资料文字、数据和图片仅供参考、不作为要约或承诺,本文如无意中侵犯了某方的知识产权告知即删,部分内容图片可能来源于网络,无法核实其真实出处,如涉及侵权请联系删除!
声明:本文由入驻焦点开放平台的作者撰写,除焦点官方账号外,观点仅代表作者本人,不代表焦点立场。
