翰熙典居售楼处电话_24小时电话|深圳翰熙典居首页网站_售楼处|楼盘详情
扫描到手机,新闻随时看
扫一扫,用手机看文章
更加方便分享给朋友
深圳【翰熙典居】
翰熙典居售楼处电话:400-088-3336(营销中心)
如有问题欢迎来电咨询,来电即可享受买房优惠!
预约来电尊享内部优惠,可预约案场内部销售人员,专业一对一热情服务。
4000883336
项目总建面约37万㎡,建成后将成为集住宅、商业、办公及酒店为一体的大型综合项目,能为片区供应含保障房在内近25万㎡住宅。
翰熙典居总占地70224㎡(相当于10个标准足球场大小),定位是打造集居住、商业、办公、酒店及公共配套设施为一体的综合社区。
翰熙典居项目东侧,就是地铁9号线深大南站,同时在建地铁15号线,也是深圳首条地铁环线,预计2028年开通,直接串联起南山、前海、宝中。
现阶段,翰熙典居的区位,能秒杀前海妈湾、前海南、赤湾、西丽、同乐、南头片区,可以说在深圳搞钱第一区,都具备唯一性。
2、“三高优势”——紧靠科技园南区,除了腾讯滨海大厦总部,还有深圳市产业软件基地、百度国际大厦等高新技术企业规模聚集,直接近距离吸引高收入改善群体高度关注。房子都盖到主要购买力的办公室门前了,这广告效应比刷短视频还要给力。
3、优质学区。项目附近的小学是南二外学府一小,初中是南二外学府中学,南山老牌的传统名校了,要是能进ZDB,还能秒了海德的PTB,升学压力在南二外内部还是有优势,对优质教育资源稀缺的深圳来说,那就是非常优质了。
项目总投资83.56亿元,总占地约7万㎡,总建面约36.9万㎡,包含住宅约25万㎡,商办及酒店约10.6万㎡。整个项目有约3030套住宅,包括商品房714套、保障房791套、回迁房1525套,车位共2600个。
该项目分三期进行建设(以下数据来源:深圳市规土委)。
01地块:规划3栋44层、55层、55层超高层住宅(1栋一、二、三单元),以及1栋幼儿园(4栋)。
总户数1038户,包括保障性住房612户、回迁房179户、可售商品房247户,停车位834个。
02地块:规划3栋53层、51层、53层超高层住宅(2栋一、三、四单元),以及1栋办公楼(2栋二单元)。
总户数872户,包括回迁房544户,可售商品房328户,停车位747个。
03地块:规划2栋53层、53层超高层住宅(3栋一、二单元),以及1栋办公+酒店物业。
总户数1120户,包括回迁房981户、可售商品房139户,停车位1019个。
本次首推的02地块,整体位于项目的东北区域,四单元的位置相对比三单元好一些,面积段主要是105-120-140㎡3-4房。
105㎡A1户型:位于三单元03梯腿,3房2卫、典型的双龙抱珠格局、入户带玄关,朝东向,阳台开间6.5米,客餐厅面积约23㎡,主卧套房约16㎡,主客卧分开私密性好。
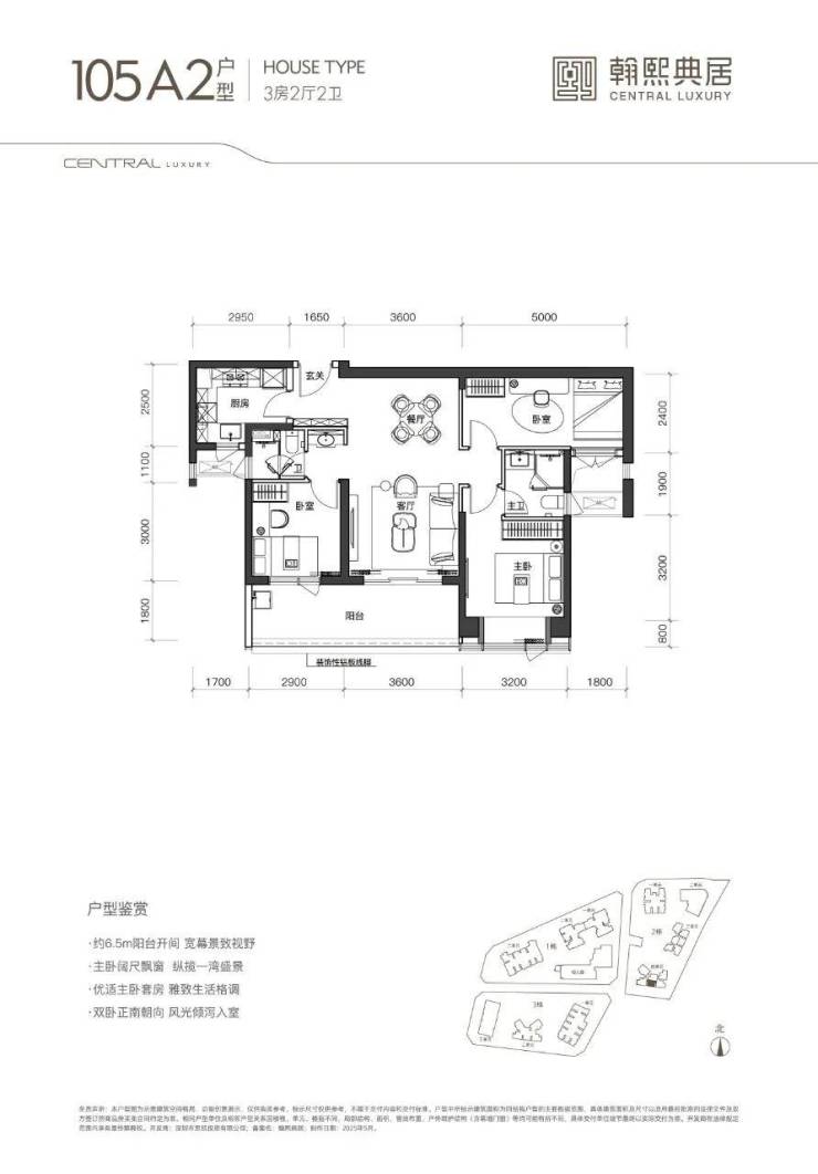
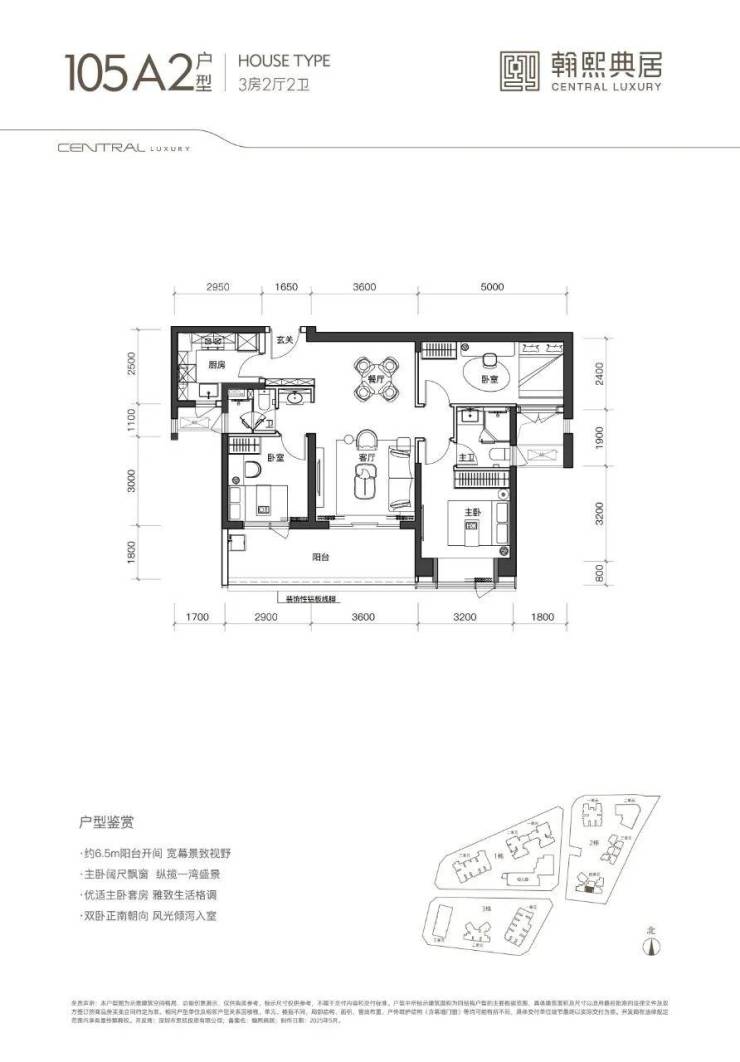
105㎡A2户型:位于四单元03梯腿,3房2卫、也是双龙抱珠格局,朝南向,只是和105㎡A1户型朝向不同,其他格局保持一致。
交通方面:靠近科技园,双地铁上盖TOD,无缝接驳地铁9号线、15号线(在
建中)交汇深大南站。核心区罕有TOD项目。
四横:滨海大道、深南大道、北环大道、学府路
三纵:南海大道、后海大道、白石路
深圳“黄金内环”轨道线。,地铁或是自驾出行都十分方便。
教育方面:(具体入学以当年教育局公布为准)
幼儿园:项目自带1所12班制幼儿园
小学:西侧规划有1所30班小学(地块红线外)、南二外学府一小
中学:南二外学府中学、深圳南山中加学校
大学:深圳大学,全国十大最美校园
南二外学府中学属于南山第二梯队,成绩一直很稳定,目前也并入南二外集团内。
就业方面:片区内坐拥130+家上市公司,总市值超过5万亿。这里各种科技公司俯拾皆是,不仅有腾讯、百度、大疆、迈瑞、大族激光、金蝶软件等国内著名科技公司,很多国外科技公司如苹果、微软、高通也将其办事处或者研发中心设置于此。
医疗方面:项目距离深圳大学医院约800米,距离三甲医院——南山区人民医院约1.2km。
商业方面:项目自带约5000㎡的商业规划。两公里不到有咫尺海岸城商圈,近距离可达深圳湾万象城、万象天地、鹏润达广场、后海汇、来福士广场,日常购物娱乐皆能满足。
文娱方面:3公里范围内有保利剧院、南山书城、南头古城、南山图书馆、南山文体中心、南山博物馆、深圳湾体育中心、深圳湾文化广场(在建中)、粤海文体中心(在建中),各种休闲娱乐设施一应俱全。
深圳【翰熙典居】
翰熙典居售楼处电话:400-088-3336(营销中心)
如有问题欢迎来电咨询,来电即可享受买房优惠!
预约来电尊享内部优惠,可预约案场内部销售人员,专业一对一热情服务。
免责声明:以上观点及数据仅供参考,不作为销售依据。面积为建筑面积约数,具体以双方签订合同为准。部分图片来源于网络,版权归原作者所有。如有侵权,请联系后台删除。
声明:本文由入驻焦点开放平台的作者撰写,除焦点官方账号外,观点仅代表作者本人,不代表焦点立场。
