深圳【中粮悦章凤凰里】售楼处-欢迎您-中粮悦章凤凰里首页网站/户型图/最新价格/售楼处地址/楼盘配套
扫描到手机,新闻随时看
扫一扫,用手机看文章
更加方便分享给朋友
🔵中粮悦章凤凰里售楼处电话☎:400-088-3336售楼处已认证】⚡⚡
◾在售户型图丨项目介绍丨最新房源丨周边配套丨详细解答〢
◾发商营销中心诚挚邀请,一键预约,尊享内部独家折扣!匠心独运的精品项目,恭候您的品鉴与选择。
🔵中粮悦章凤凰里发商电话☎:400-088-3336【开发商已认证】⚡⚡
🔵中粮悦章凤凰里售楼中心电话☎:400-088-3336【售楼中心已认证】⚡⚡
🔵中粮悦章凤凰里营销中心电话☎:400-088-3336营销中心已认证】⚡⚡
⚡本项目暂不接受临时到访,看房请提前预约,可尊享内部特惠!
⚡为您安排楼盘内场专业销售人员一对一接待服务,给您更贴心的看房体验!
项目全南向7栋围合布局,包括住宅、8600㎡特色社区商业及12班幼儿园配套,精装修交付。社区周边配套完善,临近立新湖公园,交通便利,距离地铁11号线桥头站约700米。教育资源丰富,社区内规划有幼儿园,周边多所学校环绕。整体品质较高,适合追求品质生活的购房者。
项目基本信息
【项目名称】中粮·凤凰里
【占地面积】约3.3万㎡
【建筑面积】约21.2万㎡
【推售产品】约84㎡-128㎡3房-4房
【交付标准】毛坯
【交房时间】2025.3
【产权年限】70年
【房产性质】住宅
【可售户数】758套
【车位数】1564个(1:1.096)
【使用率】78%
【容积率】4.62
【绿化率】40%
【梯户比】3T6户
【开发商】大悦城控股集团有限公司
【物业公司】中粮物业
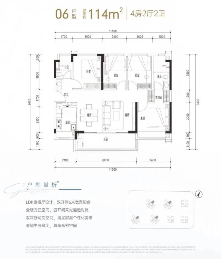
平面图及户型图:
其中,推出建面约84㎡三房两厅两卫,约98㎡三房两厅两卫,约114㎡四房两厅两卫,约128㎡四房两厅两卫,共计4个面积段产品。
建面约84㎡是传统竖厅动静分区格局,客厅进深7.55米(不含阳台),开间3.4米,主卧8.4㎡(不含主卫和飘窗),空间确实会偏紧凑一点,但没什么硬伤,实用性还是非常不错的。
建面约98㎡是传统竖厅动静分区格局,客厅进深7.55米(不含阳台),开间3.5米,配有6.5米宽景阳台,主卧13.18㎡(不含主卫和飘窗),客厅空间变化不大,但厨房和卧室空间要好很多,居住的舒适性会比较好。
建面约114㎡是传统短进深大开间横厅格局,通透性很好,客厅进深6米,开间4.3米(不含阳台),配有6米宽景阳台,主卧套间设计,配衣帽间和三段式卫生间,这个户型很比较讨喜年轻的购房群体。
交通配套
中粮悦章.凤凰里位于深圳市宝安区大洋路与塘新路交汇处西侧,距离地铁11号线桥头站约600米。交通地铁:项目与11号线桥头地铁站直线距离约600米,临近宝安大道和广深公路,无论是地铁出行还是自驾都比较便捷。
商业配套
项目自带1.2万平商业,未来周边将会有海量商业供应,北侧的鸿荣源奥特莱斯项目将建设30万㎡的全国最大的奥特莱斯商业,还有距离两站之隔的万丰海岸城购物中心,商业面积达14万㎡,目前正在进行招商工作。
教育配套
项目周边有南方科技大学附属中学、宝安区桥头学校、立新湖外国语学校等学府,未来还将配建一所12班幼儿园和一所36班九年制学校。
生态配套
目前周边只有南侧的300米与凤凰山立新湖公园,距离约6直线距离约4公里。
🔵中粮悦章凤凰里售楼处电话☎:400-088-3336售楼处已认证】⚡⚡
◾在售户型图丨项目介绍丨最新房源丨周边配套丨详细解答〢
◾发商营销中心诚挚邀请,一键预约,尊享内部独家折扣!匠心独运的精品项目,恭候您的品鉴与选择。
🔵中粮悦章凤凰里发商电话☎:400-088-3336【开发商已认证】⚡⚡
🔵中粮悦章凤凰里售楼中心电话☎:400-088-3336【售楼中心已认证】⚡⚡
🔵中粮悦章凤凰里营销中心电话☎:400-088-3336营销中心已认证】⚡⚡
⚡本项目暂不接受临时到访,看房请提前预约,可尊享内部特惠!
⚡为您安排楼盘内场专业销售人员一对一接待服务,给您更贴心的看房体验!
免责声明:本文所有文章、图片、音频视频文件等资料版权归版权所有人所有,因非原创文章及图片等内容无法一一和版权者联系,如原作者或编辑认为作品不宜上网供大家浏览,请及时来电告之,我们将立即予以修改或删除。本文如无意中侵犯了某方的知识产权,告之即删。
声明:本文由入驻焦点开放平台的作者撰写,除焦点官方账号外,观点仅代表作者本人,不代表焦点立场。
