热搜焦点:松茂御城二期售楼处电话→松茂御城二期首页热搜24小时电话→最新房价→楼盘百科详情→营销中心最新发布@售楼处中心2025.8.30
扫描到手机,新闻随时看
扫一扫,用手机看文章
更加方便分享给朋友
🏝️松茂御城二期【售楼中心&样板房,欢迎预约品鉴】
🏝️松茂御城二期售楼处电话: 400-088-3336☎开发商已认证❄️
🏝️松茂御城二期营销中心电话:400-088-3336☎营销中心已认证❄️
🏝️松茂御城二期售楼中心电话: 400-088-3336☎24小时预约热线❄️
➢ ➢本项目采用预约制,过来营销中心参观样板间请记得提前拨打开发商楼盘售楼处400热线电话在线预约,感谢您的配合
最新消息
81平做三房已经很牛了,没想到还有更厉害的,松茂御城81平居然做四房!
这简直是刚需客户的福音啊,预算有限也能一步到位,差不多的面积多一个房间,还带双四大名校学区。
2025年光明区新盘市场迎来了一颗“重磅炸弹”——松茂御城二期。价格已曝光,单价3.45万/㎡起,无敌性价比,明天正式认筹,诚意登记即可锁定房号,享开盘98折,认筹交5万诚意金享开盘95折,综合约91折优惠。
备案价格表
光明凤凰城,松茂御城雅苑2期将在2025年8月28日取证入市,同步开放二期实体样板间,同步认筹,下月初直接认购,目前户型图已曝光!81㎡三房二卫(可改四房),89㎡四房二卫,109㎡四房二卫,135㎡五房二卫,光明户型天花板,得房率最高100%。将推出1栋A座-1栋H座住宅,共1225套房源(有一部分回迁房),准现房精装交付。
重磅:松茂御城二期价格已出,比预期低了4千/㎡
81㎡三房两卫280-305万
88㎡四房两卫320-350万
109㎡四房两卫420-450万
137㎡五房两卫516-548万
项目区域及楼盘介绍
松茂御城2期,位于光明区凤凰街道塘尾社区松白路与塘尾路交汇处,光明对外交通便捷。区内南光、龙大2条高速北连东莞市,南接福田区、南山区,距深圳中心区、宝安国际机场、前海蛇口自贸片区仅30分钟车程;大外环高速贯穿深圳东西,地铁6号线串联宝安、光明、龙华、福田等区,6号线支线将与东莞市轨道交通衔接,13号线北延段将经光明直达东莞市松山湖;广深港客专与赣深客专、深莞增城际(规划中)途经光明,在光明城站乘坐高铁30分钟可达广州、香港。
松茂御城,由松茂集团开发,总占地面积约4.53万㎡,总建筑面积约29.78万㎡,容积率4.67,绿化率40%,共分2期开发打造,后期将会有风雨连廊连接在一起,总规划2130户,停车位2321个,车位占比约1:1.09。
首推的松茂御城1期,总占地面积约1.4万㎡,总建筑面积约10.21万㎡,共由4栋住宅组成,其中1栋A/B座住宅33F,1栋C座住宅32F,2栋公寓32F,共规划905户,其中商品房279套,回迁房112套,公租房124套,另外还有390套商务公寓,停车位773个。
本次将推出的松茂御城2期,总占地面积约3.13万㎡,总建筑面积约20.74万㎡,计容建筑面积约16.21万㎡,容积率4.55,绿化率40%,共由8栋总高31-32层高的住宅组成,其中1栋A/B/C/D/E/H座住宅32F,1栋F/G座住宅31F,2栋规划1所幼儿园。
总规划1225户,全部都是商品房,是否有回迁房暂不确定,大概率是没有的,其中1栋E座是楼王2梯4户,1栋A座跟1栋H座2梯6户,其它栋数2梯5户设计,地下室有2层,规划1548个车位,其中充电桩车位465个,车位比约1:1.26。
楼盘基础信息
1、开发商:深圳市松茂房地产集团有限公司
2、物业公司:深圳市海天泰物业管理有限公司
3、物业管理费:3.8元/㎡
4、总占地面积:84.53万/㎡
5、总建筑面积:29.78万/㎡
6、容积率:4.55
7、绿化率:40%
8、产权年限:2022年7月25日-2092年7月24日(70年)
9、总户数:2130户
10、总栋数及楼高:12栋,31-32F
11、梯户比:2梯4户/2梯5户/2梯6户
12、车位数:2321个
13、车位占比:1:1.09
14、交楼时间:一期现房,二期准现房
15、交楼标准: 精装
平面图及户型图
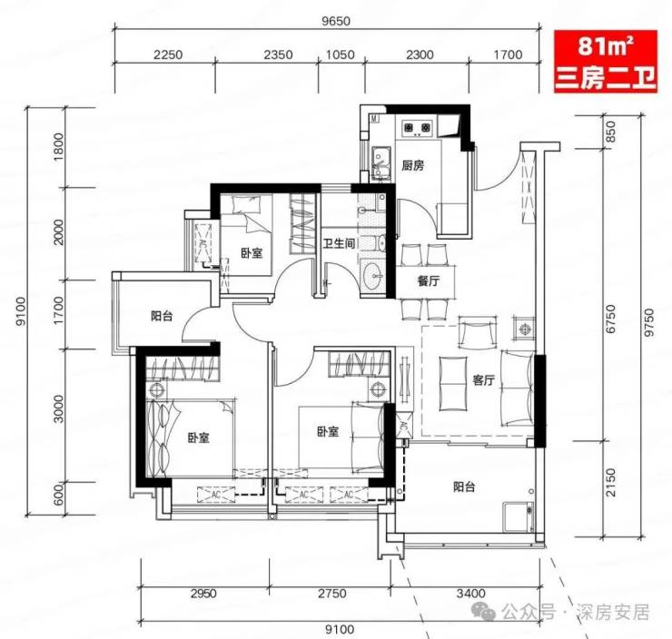
H01户型:81㎡三房二厅二卫
H02户型:81㎡三房二厅二卫
H03户型:81㎡三房二厅二卫
G01户型:82㎡三房二厅一卫
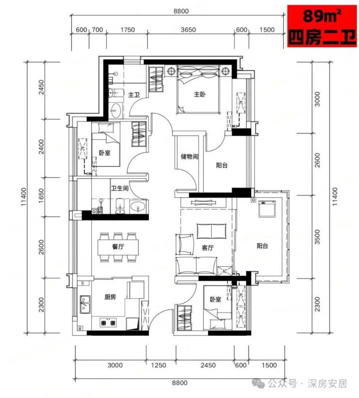
B01户型:89㎡四房二厅二卫
B02户型:89㎡四房二厅二卫
B03户型:109㎡四房二厅二卫
G01户型:109㎡四房二厅二卫
G02户型:135㎡五房二厅二卫
E户型:135㎡五房二厅二卫
项目周边配套
学校配套:
根据2024年光明区教育局最新的学区划分,小学学区划分在教科院实验小学,秋硕小学,龙豪小学,光明实验学校,初中学区划分在深圳中学光明科学城学校二初中部,凤凰城实验学校初中部。
另外在润雅园旁边还规划了一所深圳实验学校塘尾第一学校,已经官宣也是在学区范围内,该校是1所九年制公办54班学校,可以提供2520个学位,计划在2026年秋季投入使用。
交通配套:
目前距离在建的13号地铁线“月亮路站”约400米,3站到光明城站,5站到石岩上屋站,计划在2025年通车运营。
商业配套:项目自带4.6万㎡的底商商业,周边润宏城规划了万象商业,在20分钟车程范围内还有光明最大的蓝鲸世界购物中心,万达广场,包括公明最好的大仟里购物中心。
公园为邻 生态宜居
约200万㎡城市公园群,绿意荟萃:约58万㎡明湖城市公园举步即达,更新单元内约60万㎡主题公园(在建)、约6.8km茅洲河生态长廊等绿意荟萃。
🏝️松茂御城二期【售楼中心&样板房,欢迎预约品鉴】
🏝️松茂御城二期售楼处电话: 400-088-3336☎开发商已认证❄️
🏝️松茂御城二期营销中心电话:400-088-3336☎营销中心已认证❄️
🏝️松茂御城二期售楼中心电话: 400-088-3336☎24小时预约热线❄️
➢ ➢本项目采用预约制,过来营销中心参观样板间请记得提前拨打开发商楼盘售楼处400热线电话在线预约,感谢您的配合
免责声明:
本文网络转载,版权归原作者所有,本栏目所使用部分文字、图片来自互联网收集,主要用于供给大家学习、交流。我们尊重原创作者和单位,若本文侵犯了您的权益,请直接留言或电话联系我们,我们将立刻删除。
声明:本文由入驻焦点开放平台的作者撰写,除焦点官方账号外,观点仅代表作者本人,不代表焦点立场。
