最新消息:翰熙典居哪些优缺点,究竟值不值得购买?
扫描到手机,新闻随时看
扫一扫,用手机看文章
更加方便分享给朋友
深圳【深润大厦】
翰熙典居售楼处电话:400-088-3336(营销中心)
如有问题欢迎来电咨询,来电即可享受买房优惠!
预约来电尊享内部优惠,可预约案场内部销售人员,专业一对一热情服务。

翰熙典居堪称南山粤海街道的“旧改新规房型选手”——左手挽深圳大学的书香,右手牵科技园(中国硅谷)的钞票,脚踩双地铁,头戴学区房光环(南二外学府学校)。可惜身材略显“臃肿”(容积率8.9),停车位还得“抢凳子”(车位比1:0.86),身价千万起步,适合追求地段与配套的“实力派土豪”。若周边二手房是经济适用车,它就是顶配新能源车——贵但新潮。
作为粤海街道十年磨一剑的“旧改王者”,它用新规户型和学区光环,硬生生在科技园杀出一条“改善血路”,但高密度和回迁房混居的设定,也让它成了“西装暴徒与弄堂学霸共处一室”的魔幻现实
💡 一句话总结:翰熙典居以“全新户型+双地铁+综合体配套”碾压二手盘,但价格溢价约20%,适合粤海街道上班自住一族。
对比周边二手楼盘分析:
阳光粤海花园(楼龄20年,均价9万/㎡):像“退休老干部”,安静但设施老旧,缺少绿化,地铁站远。
桂庙新村所在的片区新房供应极少,目前周边二手住宅楼龄较老,如锦隆花园、学林雅院、海文花园,基本是2000年左右的房子。
二手均价在7-9万不等。
地址: 南山区粤海街道白石路3888号(深大南站旁)
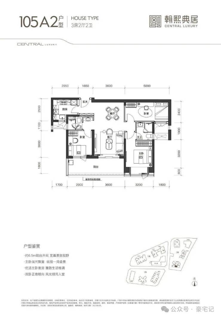
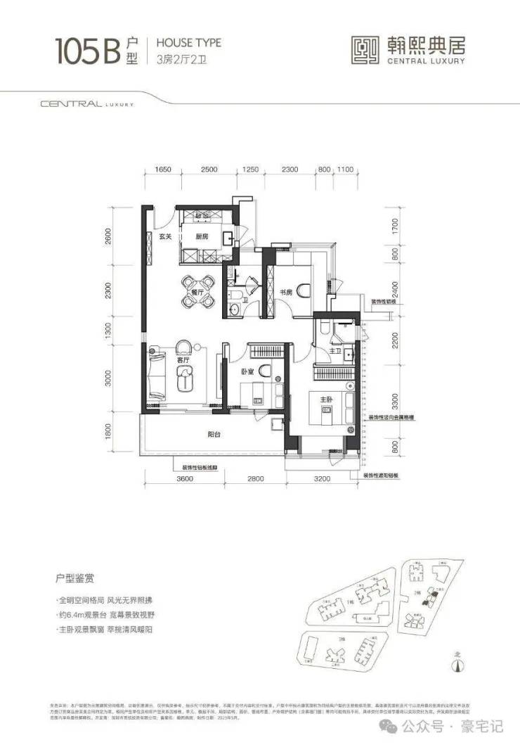
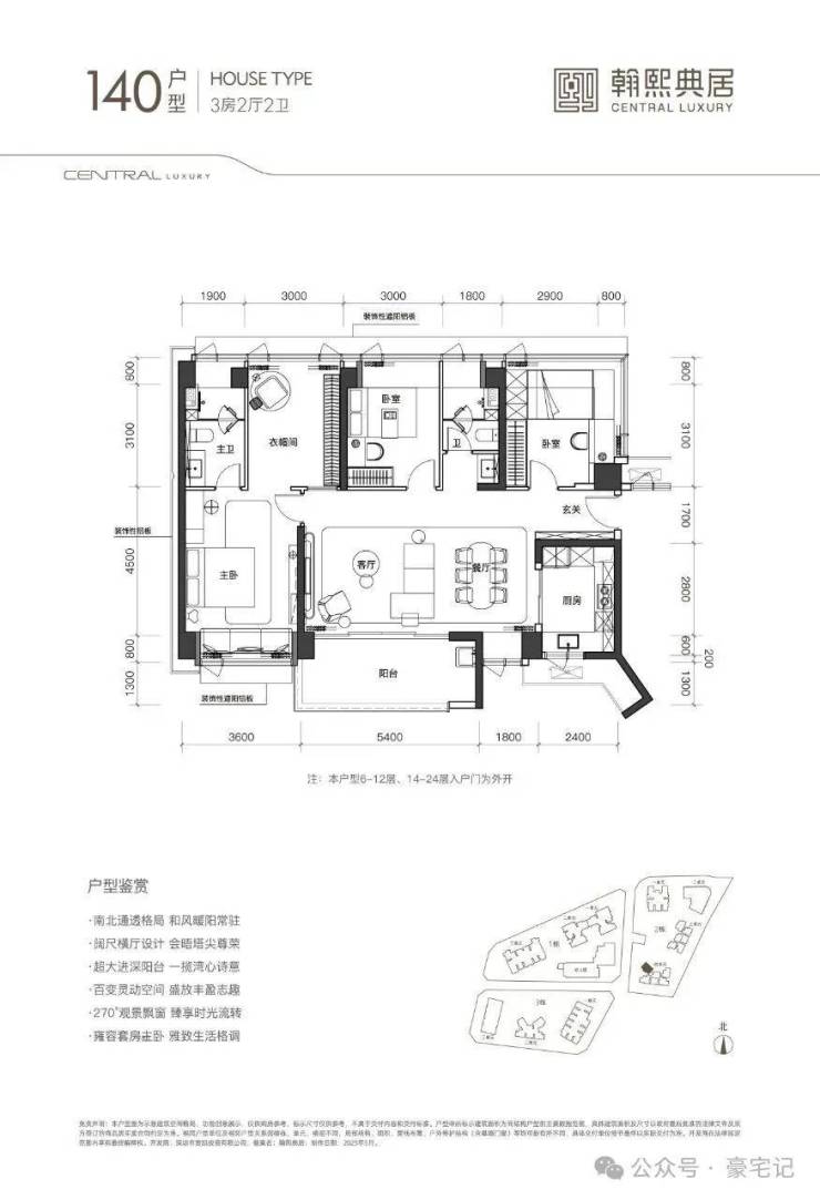
户型面积: 105-140㎡(3-4房),新规设计得房率85%-90%,实得面积“偷出10㎡”。
使用率: 约90%(套内),105㎡堪比120㎡,改善党直呼“真香”。
价格: 预计10-12万/㎡(总价千万起步),比隔壁二手贵1万/㎡,但自带“新房滤镜”。
开发商: 深圳市贯凯投资有限公司(阳光华艺集团操盘),旧改界“老司机”。
占地: 4.17万㎡,建面37万㎡
户数: 总2835户(商品房仅714户),回迁房1491户,保障房630户,堪称“社会实验样本”。
楼层: 43-55层超高层,站得高看得远,但恐高慎入。
层高: 约3米,勉强告别“压抑感”,但不及低密社区舒爽。
梯户比: 3梯5户
车位: 2600个(车位比1:0.91),有点紧张
容积率: 8.9
绿化率: 约35%
商业:
1. 社区商业: 自带约5,000㎡底商 + 5.7万㎡潮流街区(规划)
2. 高端商圈: 海岸城(30万㎡)、深圳湾万象城(8万㎡),步行800米开启“剁手模式”。
3. 重点规划: 西侧规划30班小学,未来或引入深大附属学校,学区房“期货”潜力大。目前学校:
翰熙典居售楼处电话:400-088-3336(营销中心)
医疗:
深圳大学医院(800米)、南山人民医院(1.2km),日常身体养护“五分钟生活圈”。
土地年限: 70年(2023年拿地)
开盘时间: 2025年6月(样板间已开)
入伙时间: 2028年3月(精装交付)
产权性质: 住宅(商品房占比25.1%)
管理费: 7.5元/㎡·月
物管: 深圳市丹枫物业管理有限公司,“中规中矩,主打科技园区服务经验”。
户型图
总结:
翰熙典居是“地段与密度的矛盾体”——一边是科技园新贵的社交货币,一边是回迁房的烟火气。适合两类人:
1. 科技新贵:为学位和通勤牺牲一点居住品质。
2. 学位刚需:赌学区房“期货”,提前锁定深大附属入场券。
若预算充足且能接受“高密度社交”,这里堪称粤海街道“退而求其次的最优解”;若追求纯粹改善舒适,建议转头看看深圳湾真豪宅。
翰熙典居售楼处电话:400-088-3336(营销中心)
免责声明:本文部分内容来源于网络,如有侵权,请联系小编删除。
声明:本文由入驻焦点开放平台的作者撰写,除焦点官方账号外,观点仅代表作者本人,不代表焦点立场。
