锦绣时代广场售楼处电话_锦绣时代广场24小时电话_营销中心地址/户型/备案价
扫描到手机,新闻随时看
扫一扫,用手机看文章
更加方便分享给朋友
深圳【锦绣时代广场】
锦绣时代广场售楼处电话:400-088-3336(营销中心)
如有问题欢迎来电咨询,来电即可享受买房优惠!
预约来电尊享内部优惠,可预约案场内部销售人员,专业一对一热情服务。
✅ 锦绣时代广场·写字楼 ✅
👑 龙华芯·双地铁·实景现楼
‼️ 高区办公映献 盛世启售 ‼️
👏均价约2.5万/㎡ 即买即用
👉约78-1980㎡灵动办公空间
🔥🔥火热租售中🔥🔥
======================
🌇带阳台/飘窗配置 公区高配品质
🔥龙华核心商圈C位🔥速抢‼️
🚇约300米直达双地铁🚇22&25号线油松站,👉10分钟速达🛣️深圳北站枢纽
🌟9.4米云端大堂/中空Low-E玻璃幕墙,定义商务新高度
======项目基本指标======
🎖开发商:锦绣江南集团
🎖总建筑面积:约13万㎡
🎖总占地面积:约1.32万㎡
🎖总楼层:地上32层、地下3层
🎖标准层层高:4.5m
🎖电梯数量:5+1部日立品牌电梯
🎖车位数量:地下750个车位
💎【锦绣时代广场】 办公租售-
👑 时代封面资产 定序城芯商务
🏆 龙华芯·双地铁·实景现楼
【项目基本信息】
总建筑面积:129479.9㎡
总占地面积:13174.88㎡
办公建筑面积:53887㎡
容积率:7.39
绿化率:30.01%
建筑高度:148m
总楼层:地上32层、地下3层
标准层设计高度:4.5m
面积段:78-1980
使用率:63%
大堂:约9.4m挑高
电梯:5+1部4m/s日立品牌电梯
停车位:地下三层停车场,共750个车位
产权:40年
交楼标准:毛坯
【区域配套优势】
✅ 鼎配区位·擎立中轴
占位深圳六大总部基地——龙华核心区总部基地,定位深圳中部综合服务中心、数字先行示范区、新兴产业高地。
✅ 鼎配产业·双区交汇
雄踞龙华北站商务核心区与坂田坂雪岗科技城交汇核心区,承接产业布局规划利好,抢占未来发展机遇
数字龙华:2024年龙华区GDP超3154亿,稳居全国工业百强区第10;千亿资金打造“数字龙华”,超670家国家高新企业落户龙华民治。
科创产业:北站商务核心区与坂田坂雪岗科技城双区交汇,集聚美团、深圳通、华为、富士康等龙头产业,形成超密集企业矩阵。
低空经济:民治作为深圳低空经济示范区,美团无人机、南航低空智联创新中心等项目落地,近享板块发展红利。
✅ 鼎配效率·极速出行
双线地铁交汇:临近地铁22/25号线油松站(建设中),未来开通后,地铁约15分钟即达深圳最大交通枢纽——深圳北站,约25分钟可达福田、南山核心区。
立体交通出行:项目位于工业路与油松路交汇处,紧扼布龙路、龙华大道、梅观高速黄金交汇点,约15分钟可达福田中心区,约30分钟覆盖广深企业聚集带,跨区商务资源随时调度。
公交路网环伺:项目楼下即是松和新村公交站,无缝接驳龙华/坂田/宝安等产城居住带,便捷企业员工高效通勤。
✅ 鼎配商圈·多元生态
雄踞龙华国际商圈核芯,万亿级商务规划区,自带3500㎡商业街区,外部优享超60万㎡商圈,以3km为半径向外辐射,周边汇聚旗舰商业、高端酒店及娱乐配套等多元场所,一站式满足商务宴请、会务接待、员工休闲娱乐。
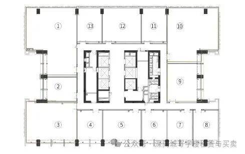
【租售面积】
约78-1980㎡现楼办公,户型方正可灵活布局
平面图
【项目亮点介绍】
鼎配品质·实景现楼
1️⃣约9.4m挑空大堂
首层9.4米挑空大堂,以现代轻奢商务风格塑造高端、典雅的企业商务形象
2️⃣品牌日立电梯配置
5+1台日立品牌电梯,4m/s高效垂直通勤!满足大规模人流同行,助力企业高效办公
3️⃣高标玻璃幕墙配置
外立面采用LOW-E中空玻璃幕墙,双层有效隔音隔热
4️⃣三层地下车库配置
地下三层停车场,共750个车位,商务接待、员工通勤,均可无忧停车
园区图片
深圳【锦绣时代广场】
锦绣时代广场售楼处电话:400-088-3336(营销中心)
如有问题欢迎来电咨询,来电即可享受买房优惠!
预约来电尊享内部优惠,可预约案场内部销售人员,专业一对一热情服务。
免责声明:
1、内容部分来源网络,因编辑需要文字和图片之间亦无必然联系,仅供读者参考。
2、此号所转载的所有文章、图片、音频视频文件等资料版权归版权所有人所有,因非原创文章及图片等内容无法一一和版权者联系,如原作者或编辑认为作品不宜上网供大家浏览,或不应无偿使用,请及时来电告之,我们将立即予以修改或删除。
3、本网页如无意中侵犯媒体或个人的知识产权,请来电告之,我们将立即予以修改或删除。
声明:本文由入驻焦点开放平台的作者撰写,除焦点官方账号外,观点仅代表作者本人,不代表焦点立场。
